














Book your tour. Save an average of $18,473. We'll handle the rest.
We collect exclusive builder offers, book your tours, and support you from start to housewarming.
- Confirmed tours
- Get matched & compare top deals
- Expert help, no pressure
- No added fees
Estimated value based on Jome data, T&C apply













- 4 bd
- 3.5 ba
- 3,543 sqft
Mykonos plan in Kreymer at the Park by K. Hovnanian® Homes
Visit the community to experience this floor plan
Why tour with Jome?
- No pressure toursTour at your own pace with no sales pressure
- Expert guidanceGet insights from our home buying experts
- Exclusive accessSee homes and deals not available elsewhere
Jome is featured in
Plan description
May also be listed on the K. Hovnanian® Homes website
Information last verified by Jome: Today at 5:52 PM (March 4, 2026)
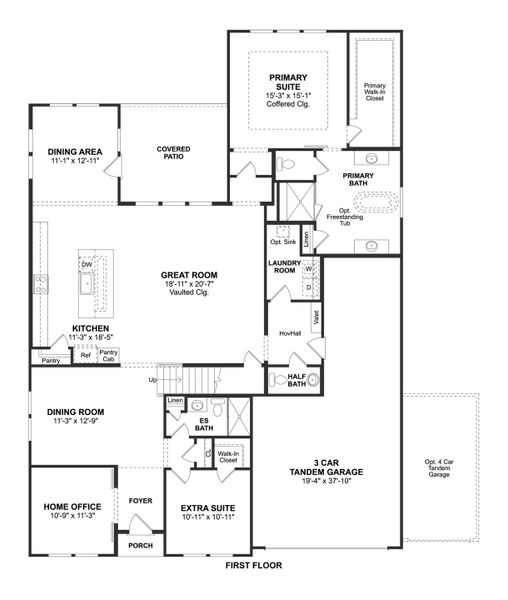
Plan details
- Name:
- Mykonos
- Property type:
- Floor plan
- Community:
- Kreymer at the Park
- Builder:
- K. Hovnanian® Homes
- Size:
- 3,543 sqft
- Stories:
- 2
- Beds:
- 4
- Baths:
- 3.5
- Garage spaces:
- 3
Plan features & finishes
- Garage/Parking:
- GarageAttached GarageTandem Parking
- Interior Features:
- Walk-In ClosetFoyerPantryLoft
- Kitchen:
- Kitchen Island
- Laundry facilities:
- Utility/Laundry Room
- Property amenities:
- PatioPorch
- Rooms:
- Bonus RoomPrimary Bedroom On MainKitchenOffice/StudyDining RoomFamily RoomPrimary Bedroom Downstairs
- Upgrade Options:
- Freestanding TubOptional Multi-Gen SuiteGarage BayMulti-Slide DoorsFireplace

Get a consultation with our New Homes Expert
- See how your home builds wealth
- Plan your home-buying roadmap
- Discover hidden gems
See the full plan layout
Download the floor plan PDF with room dimensions and home design details.

Instant download, no cost

Community details
Kreymer at the Park
by K. Hovnanian® Homes, Wylie, TX
- 9 homes
- 7 plans
- 2,842 - 3,687 sqft
View Kreymer at the Park details
Want to know more about what's around here?
The Mykonos floor plan is part of Kreymer at the Park, a new home community by K. Hovnanian® Homes, located in Wylie, TX. Visit the Kreymer at the Park community page for full neighborhood insights, including nearby schools, shopping, walk & bike-scores, commuting, air quality & natural hazards.

Homes built from this plan
Available homes in Kreymer at the Park
- Home at address 2601 Waverly Dr, Wylie, TX 75098

Omaha
$555,000
- 4 bd
- 3.5 ba
- 2,878 sqft
2601 Waverly Dr, Wylie, TX 75098
- Home at address 2609 Waverly Dr, Wylie, TX 75098

Omaha
$605,000
- 4 bd
- 3.5 ba
- 2,878 sqft
2609 Waverly Dr, Wylie, TX 75098
- Home at address 2603 Waverly Dr, Wylie, TX 75098

Rotterdam
$610,000
- 5 bd
- 3.5 ba
- 3,662 sqft
2603 Waverly Dr, Wylie, TX 75098
- Home at address 2609 Ackley Ln, Wylie, TX 75098

Cordoba
$638,000
- 4 bd
- 3.5 ba
- 2,842 sqft
2609 Ackley Ln, Wylie, TX 75098
- Home at address 2606 Waverly Dr, Wylie, TX 75098

Santa Fe
$643,000
- 5 bd
- 4 ba
- 3,159 sqft
2606 Waverly Dr, Wylie, TX 75098
- Home at address 2603 Ackley Ln, Wylie, TX 75098

Santa Fe
$655,000
- 5 bd
- 4 ba
- 3,159 sqft
2603 Ackley Ln, Wylie, TX 75098
More floor plans in Kreymer at the Park

Considering this plan?
Our expert will guide your tour, in-person or virtual
Need more information?
Text or call (888) 488-9243
Financials
Estimated monthly payment
Let us help you find your dream home
How many bedrooms are you looking for?
Similar homes nearby
Recently added communities in this area
Nearby communities in Wylie
New homes in nearby cities
More New Homes in Wylie, TX
- Jome
- New homes search
- Texas
- Dallas-Fort Worth Area
- Collin County
- Wylie
- Kreymer at the Park
- 2613 Ackley Ln, Wylie, TX 75098































