












Book your tour. Save an average of $18,473. We'll handle the rest.
We collect exclusive builder offers, book your tours, and support you from start to housewarming.
- Confirmed tours
- Get matched & compare top deals
- Expert help, no pressure
- No added fees
Estimated value based on Jome data, T&C apply


























































- 4 bd
- 4 ba
- 2,676 sqft
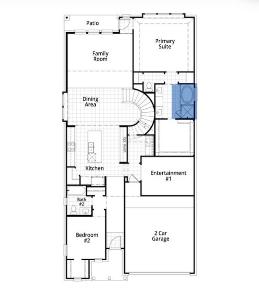
Panamera plan in Devonshire by Highland Homes
Visit the community to experience this floor plan
Why tour with Jome?
- No pressure toursTour at your own pace with no sales pressure
- Expert guidanceGet insights from our home buying experts
- Exclusive accessSee homes and deals not available elsewhere
Jome is featured in
Plan description
May also be listed on the Highland Homes website
Information last verified by Jome: Today at 1:20 AM (March 3, 2026)
Plan details
- Name:
- Panamera
- Property type:
- Floor plan
- Community:
- Devonshire
- Builder:
- Highland Homes
- Collection:
- Devonshire: 60ft. lots
- Lot width (feet):
- 60
- Size:
- 2,676 sqft
- Stories:
- 2
- Beds from:
- 4
- Beds to:
- 5
- Baths from:
- 4
- Baths to:
- 5
- Garage spaces:
- 2
Plan features & finishes
- Garage/Parking:
- GarageAttached Garage
- Interior Features:
- Walk-In ClosetPantryLoft
- Kitchen:
- Kitchen Island
- Laundry facilities:
- Utility/Laundry Room
- Property amenities:
- Patio
- Rooms:
- Primary Bedroom On MainKitchenDining RoomFamily RoomOpen Concept FloorplanPrimary Bedroom Downstairs
- Upgrade Options:
- Bay WindowsFreestanding TubExtended Outdoor LivingOffice/StudySliding Glass DoorsAlternate Primary BathShower in Primary BathExtra BathroomExtra BedroomFireplace

Get a consultation with our New Homes Expert
- See how your home builds wealth
- Plan your home-buying roadmap
- Discover hidden gems
See the full plan layout
Download the floor plan PDF with room dimensions and home design details.

Instant download, no cost

Community details
Devonshire at Devonshire
by Highland Homes, Forney, TX
- 4 homes
- 14 plans
- 2,131 - 3,630 sqft
View Devonshire details
Want to know more about what's around here?
The Panamera floor plan is part of Devonshire, a new home community by Highland Homes, located in Forney, TX. Visit the Devonshire community page for full neighborhood insights, including nearby schools, shopping, walk & bike-scores, commuting, air quality & natural hazards.

Available homes in Devonshire
- Home at address 1222 Abbeygreen Rd, Forney, TX 75126

Amberley
Devonshire: 50ft. lots
$399,000
- 4 bd
- 2.5 ba
- 2,131 sqft
1222 Abbeygreen Rd, Forney, TX 75126
- Home at address 1801 Crofthill Gln, Forney, TX 75126

Denton
Devonshire: 60ft. lots
$483,180
- 4 bd
- 3 ba
- 2,305 sqft
1801 Crofthill Gln, Forney, TX 75126
- Home at address 2162 Charming Forge Rd, Forney, TX 75126

Denton
Devonshire: 60ft. lots
$484,480
- 4 bd
- 3 ba
- 2,285 sqft
2162 Charming Forge Rd, Forney, TX 75126
- Home at address 2164 Charming Forge Rd, Forney, TX 75126

Chesterfield
Devonshire: 60ft. lots
$532,392
- 4 bd
- 3.5 ba
- 2,882 sqft
2164 Charming Forge Rd, Forney, TX 75126
More floor plans in Devonshire

Considering this plan?
Our expert will guide your tour, in-person or virtual
Need more information?
Text or call (888) 488-9243
Financials
Estimated monthly payment
Let us help you find your dream home
How many bedrooms are you looking for?
Similar homes nearby
Recently added communities in this area
Nearby communities in Forney
New homes in nearby cities
More New Homes in Forney, TX
- Jome
- New homes search
- Texas
- Dallas-Fort Worth Area
- Kaufman County
- Forney
- Devonshire
- Devonshire: 60ft. lots
- 1222 Abbeygreen Rd, Forney, TX 75126
































