




Book your tour. Save an average of $18,473. We'll handle the rest.
- Confirmed tours
- Get matched & compare top deals
- Expert help, no pressure
- No added fees
Estimated value based on Jome data, T&C apply
- 4 bd
- 3 ba
- 3,132 sqft
The Merlot plan in Rancho Ladera by Remington Custom Homes
Visit the community to experience this floor plan
Why tour with Jome?
- No pressure toursTour at your own pace with no sales pressure
- Expert guidanceGet insights from our home buying experts
- Exclusive accessSee homes and deals not available elsewhere
Jome is featured in
Plan description
May also be listed on the Remington Custom Homes website
Information last verified by Jome: Wednesday at 1:16 PM (January 14, 2026)
Plan details
- Name:
- The Merlot
- Property status:
- Floor plan
- Size:
- 3,132 sqft
- Stories:
- 2
- Beds:
- 4
- Baths:
- 3
- Garage spaces:
- 2
Plan features & finishes
- Garage/Parking:
- GarageAttached Garage
- Interior Features:
- Walk-In Closet
- Laundry facilities:
- Utility/Laundry Room
- Rooms:
- Bonus RoomMudroomDining RoomFamily RoomPrimary Bedroom Downstairs

Get a consultation with our New Homes Expert
- See how your home builds wealth
- Plan your home-buying roadmap
- Discover hidden gems
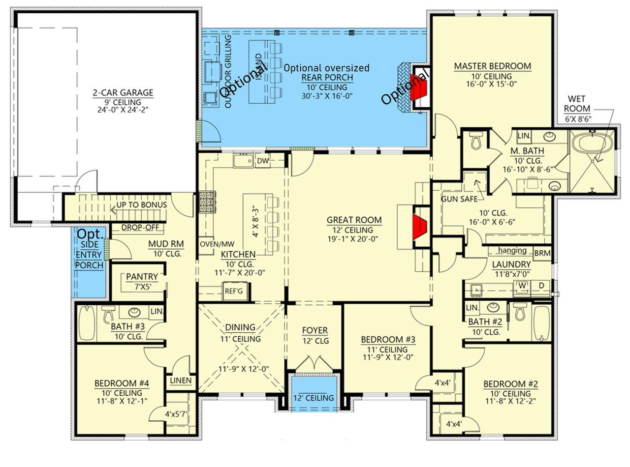
See the full plan layout
Download the floor plan PDF with room dimensions and home design details.

Instant download, no cost

Community details
Rancho Ladera
by Remington Custom Homes, Aledo, TX
- 58 plans
- 2,589 - 7,149 sqft
View Rancho Ladera details
Want to know more about what's around here?
The The Merlot floor plan is part of Rancho Ladera, a new home community by Remington Custom Homes, located in Aledo, TX. Visit the Rancho Ladera community page for full neighborhood insights, including nearby schools, shopping, walk & bike-scores, commuting, air quality & natural hazards.

More floor plans in Rancho Ladera

Considering this plan?
Our expert will guide your tour, in-person or virtual
Need more information?
Text or call (888) 486-2818
Financials
Let us help you find your dream home
How many bedrooms are you looking for?



































