














Book your tour. Save an average of $18,473. We'll handle the rest.
- Confirmed tours
- Get matched & compare top deals
- Expert help, no pressure
- No added fees
Estimated value based on Jome data, T&C apply











































- 5 bd
- 3.5 ba
- 3,133 sqft
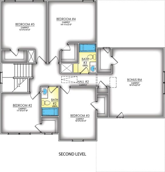
Sonoma II plan in Edwards Ridge by Great Southern Homes
Visit the community to experience this floor plan
Why tour with Jome?
- No pressure toursTour at your own pace with no sales pressure
- Expert guidanceGet insights from our home buying experts
- Exclusive accessSee homes and deals not available elsewhere
Jome is featured in
Plan description
May also be listed on the Great Southern Homes website
Information last verified by Jome: Yesterday at 6:35 AM (January 19, 2026)
Book your tour. Save an average of $18,473. We'll handle the rest.
We collect exclusive builder offers, book your tours, and support you from start to housewarming.
- Confirmed tours
- Get matched & compare top deals
- Expert help, no pressure
- No added fees
Estimated value based on Jome data, T&C apply
Plan details
- Name:
- Sonoma II
- Property status:
- Floor plan
- Size:
- 3,133 sqft
- Stories:
- 2
- Beds:
- 5
- Baths:
- 3
- Half baths:
- 1
- Garage spaces:
- 2
Plan features & finishes
- Garage/Parking:
- Garage

Get a consultation with our New Homes Expert
- See how your home builds wealth
- Plan your home-buying roadmap
- Discover hidden gems

Community details
Edwards Ridge
by Great Southern Homes, Central, SC
- 6 homes
- 7 plans
- 2,077 - 4,188 sqft
View Edwards Ridge details
Want to know more about what's around here?
The Sonoma II floor plan is part of Edwards Ridge, a new home community by Great Southern Homes, located in Central, SC. Visit the Edwards Ridge community page for full neighborhood insights, including nearby schools, shopping, walk & bike-scores, commuting, air quality & natural hazards.

Available homes in Edwards Ridge
- Home at address 108 Shale Dr, Central, SC 29630

Madeline II
$459,900
- 4 bd
- 3 ba
- 2,570 sqft
108 Shale Dr, Central, SC 29630
- Home at address 114 Shale Dr, Central, SC 29630

Audrey II
$469,900
- 3 bd
- 2.5 ba
- 2,680 sqft
114 Shale Dr, Central, SC 29630
- Home at address 102 Shale Dr, Central, SC 29630

Audrey II
$469,900
- 3 bd
- 2.5 ba
- 2,680 sqft
102 Shale Dr, Central, SC 29630
- Home at address 136 Shale Dr, Central, SC 29630

Madeline II
$499,900
- 4 bd
- 3 ba
- 2,510 sqft
136 Shale Dr, Central, SC 29630
- Home at address 134 Shale Dr, Central, SC 29630

Audrey II
$519,900
- 3 bd
- 2.5 ba
- 2,678 sqft
134 Shale Dr, Central, SC 29630
- Home at address 138 Shale Dr, Central, SC 29630

Ariel II
$559,900
- 4 bd
- 4 ba
- 2,950 sqft
138 Shale Dr, Central, SC 29630
More floor plans in Edwards Ridge

Considering this plan?
Our expert will guide your tour, in-person or virtual
Need more information?
Text or call (888) 486-2818
Financials
Estimated monthly payment
Let us help you find your dream home
How many bedrooms are you looking for?
Similar homes nearby
Recently added communities in this area
Nearby communities in Central
New homes in nearby cities
More New Homes in Central, SC
- Jome
- New homes search
- South Carolina
- Pickens County
- Central
- Edwards Ridge
- 102 Shale Dr, Central, SC 29630



























