








Book your tour. Save an average of $18,473. We'll handle the rest.
We collect exclusive builder offers, book your tours, and support you from start to housewarming.
- Confirmed tours
- Get matched & compare top deals
- Expert help, no pressure
- No added fees
Estimated value based on Jome data, T&C apply




































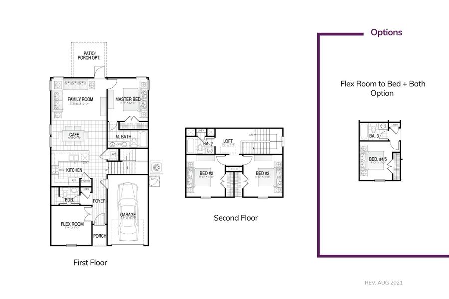
- 4 bd
- 2.5 ba
- 1,725 sqft
Adger plan in Founder's Park by Hunter Quinn Homes
Visit the community to experience this floor plan
Why tour with Jome?
- No pressure toursTour at your own pace with no sales pressure
- Expert guidanceGet insights from our home buying experts
- Exclusive accessSee homes and deals not available elsewhere
Jome is featured in
Plan description
May also be listed on the Hunter Quinn Homes website
Information last verified by Jome: Today at 6:13 AM (May 19, 2026)
Book your tour. Save an average of $18,473. We'll handle the rest.
We collect exclusive builder offers, book your tours, and support you from start to housewarming.
- Confirmed tours
- Get matched & compare top deals
- Expert help, no pressure
- No added fees
Estimated value based on Jome data, T&C apply
Plan details
- Name:
- Adger
- Property type:
- Floor plan
- Community:
- Founder's Park
- Builder:
- Hunter Quinn Homes
- Size:
- 1,725 sqft
- Stories:
- 2
- Beds:
- 4
- Baths:
- 2
- Half baths:
- 1
- Garage spaces:
- 1
Plan features & finishes
- Garage/Parking:
- GarageAttached Garage
- Interior Features:
- Walk-In ClosetFoyerPantryLoft
- Laundry facilities:
- Utility/Laundry Room
- Property amenities:
- PatioPorch
- Rooms:
- Primary Bedroom On MainKitchenPowder RoomFamily RoomBreakfast AreaOpen Concept FloorplanPrimary Bedroom Downstairs
- Upgrade Options:
- Extra Bedroom

Get a consultation with our New Homes Expert
- See how your home builds wealth
- Plan your home-buying roadmap
- Discover hidden gems

Community details
Founder's Park
by Hunter Quinn Homes, Summerville, SC
- 18 homes
- 5 plans
- 1,275 - 1,842 sqft
View Founder's Park details
Want to know more about what's around here?
The Adger floor plan is part of Founder's Park, a new home community by Hunter Quinn Homes, located in Summerville, SC. Visit the Founder's Park community page for full neighborhood insights, including nearby schools, shopping, walk & bike-scores, commuting, air quality & natural hazards.

Homes built from this plan
Available homes in Founder's Park
- Home at address 3000 Buggs Ln, Lincolnville, SC 29485

Home
$345,900
- 4 bd
- 2.5 ba
- 1,725 sqft
3000 Buggs Ln, Lincolnville, SC 29485
- Home at address 5016 Buggs Ln, Summerville, SC 29485

Home
$372,500
- 4 bd
- 3 ba
- 1,736 sqft
5016 Buggs Ln, Summerville, SC 29485
- Home at address 5020 Buggs Ln, Summerville, SC 29485

Home
$374,000
- 5 bd
- 3.5 ba
- 1,725 sqft
5020 Buggs Ln, Summerville, SC 29485
- Home at address 5073 Buggs Ln, Summerville, SC 29485

Home
$375,900
- 4 bd
- 2.5 ba
- 1,736 sqft
5073 Buggs Ln, Summerville, SC 29485
- Home at address 5004 Buggs Ln, Summerville, SC 29485

Home
$375,999
- 4 bd
- 3 ba
- 1,736 sqft
5004 Buggs Ln, Summerville, SC 29485
- Home at address 3403 Evergreen Oak Rd, Summerville, SC 29485

Home
$379,250
- 4 bd
- 2.5 ba
- 1,736 sqft
3403 Evergreen Oak Rd, Summerville, SC 29485
More floor plans in Founder's Park

Considering this plan?
Our expert will guide your tour, in-person or virtual
Need more information?
Text or call (888) 545-5198
Financials
Estimated monthly payment
Let us help you find your dream home
How many bedrooms are you looking for?
Similar homes nearby
Recently added communities in this area
Nearby communities in Summerville
New homes in nearby cities
More New Homes in Summerville, SC
- Jome
- New homes search
- South Carolina
- Charleston Metropolitan Area
- Charleston County
- Summerville
- Founder's Park
- 302 Dunmeyer Hill Rd, Summerville, SC 29485





























