









Book your tour. Save an average of $18,473. We'll handle the rest.
We collect exclusive builder offers, book your tours, and support you from start to housewarming.
- Confirmed tours
- Get matched & compare top deals
- Expert help, no pressure
- No added fees
Estimated value based on Jome data, T&C apply






- 3 bd
- 3 ba
- 1,898 sqft
The Armfield plan in Essence at Elms Glen Townhomes by Stanley Martin Homes
Visit the community to experience this floor plan
Why tour with Jome?
- No pressure toursTour at your own pace with no sales pressure
- Expert guidanceGet insights from our home buying experts
- Exclusive accessSee homes and deals not available elsewhere
Jome is featured in
Plan description
May also be listed on the Stanley Martin Homes website
Information last verified by Jome: Today at 8:15 AM (March 20, 2026)
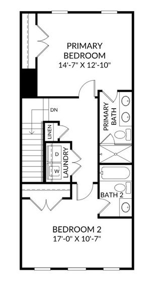
Plan details
- Name:
- The Armfield
- Property type:
- Floor plan
- Community:
- Essence at Elms Glen Townhomes
- Builder:
- Stanley Martin Homes
- Size from:
- 1,898 sqft
- Size to:
- 1,917 sqft
- Stories:
- 3+
- Beds:
- 3
- Baths:
- 3
- Half baths:
- 1
- Garage spaces:
- 1
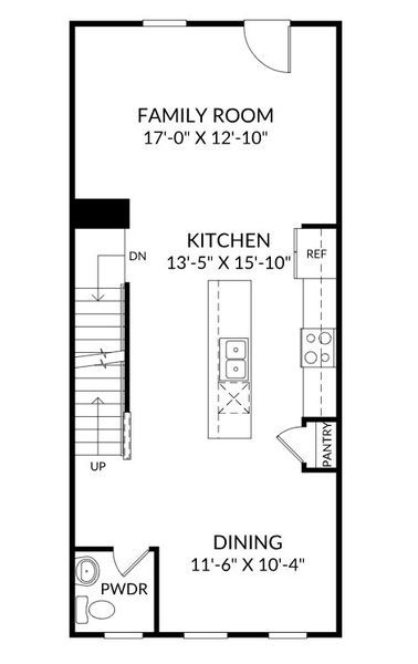
Plan features & finishes
- Garage/Parking:
- GarageAttached Garage
- Interior Features:
- Walk-In ClosetFoyerPantry
- Kitchen:
- Kitchen Island
- Laundry facilities:
- Utility/Laundry Room
- Property amenities:
- Porch
- Rooms:
- KitchenDining AreaPowder RoomDining RoomFamily RoomOpen Concept FloorplanPrimary Bedroom Upstairs

Get a consultation with our New Homes Expert
- See how your home builds wealth
- Plan your home-buying roadmap
- Discover hidden gems
See the full plan layout
Download the floor plan PDF with room dimensions and home design details.

Instant download, no cost

Community details
Essence at Elms Glen Townhomes
by Stanley Martin Homes, Ladson, SC
- 9 homes
- 1 plan
- 1,878 - 1,918 sqft
View Essence at Elms Glen Townhomes details
Want to know more about what's around here?
The The Armfield floor plan is part of Essence at Elms Glen Townhomes, a new home community by Stanley Martin Homes, located in Ladson, SC. Visit the Essence at Elms Glen Townhomes community page for full neighborhood insights, including nearby schools, shopping, walk & bike-scores, commuting, air quality & natural hazards.

Homes built from this plan
Available homes in Essence at Elms Glen Townhomes
- Home at address 8003 Caswell Ct, Ladson, SC 29456

Home
$292,990
- 3 bd
- 3.5 ba
- 1,918 sqft
8003 Caswell Ct, Ladson, SC 29456

Considering this plan?
Our expert will guide your tour, in-person or virtual
Need more information?
Text or call (888) 545-5198
Financials
Let us help you find your dream home
How many bedrooms are you looking for?
Similar homes nearby
Recently added communities in this area
Nearby communities in Ladson
New homes in nearby cities
More New Homes in Ladson, SC
- Jome
- New homes search
- South Carolina
- Charleston Metropolitan Area
- Charleston County
- Ladson
- Essence at Elms Glen Townhomes
- 6060 Halifax St, Ladson, SC 29456



























