








Book your tour. Save an average of $18,473. We'll handle the rest.
We collect exclusive builder offers, book your tours, and support you from start to housewarming.
- Confirmed tours
- Get matched & compare top deals
- Expert help, no pressure
- No added fees
Estimated value based on Jome data, T&C apply







































- 3 bd
- 3 ba
- 1,796 sqft
The Parker plan in Westpark at Cane Bay by Stanley Martin Homes
Visit the community to experience this floor plan
Why tour with Jome?
- No pressure toursTour at your own pace with no sales pressure
- Expert guidanceGet insights from our home buying experts
- Exclusive accessSee homes and deals not available elsewhere
Jome is featured in
Plan description
May also be listed on the Stanley Martin Homes website
Information last verified by Jome: Yesterday at 8:16 AM (May 27, 2026)
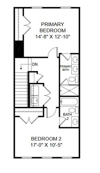
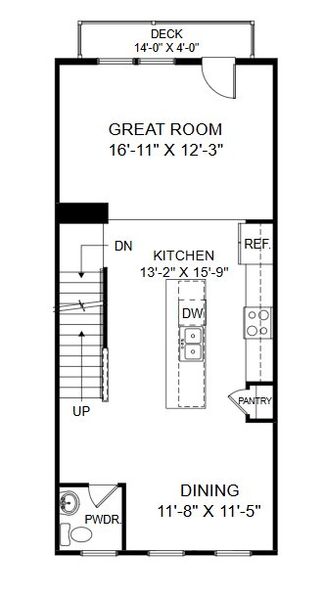
Plan details
- Name:
- The Parker
- Property type:
- Floor plan
- Community:
- Westpark at Cane Bay
- Builder:
- Stanley Martin Homes
- Size from:
- 1,796 sqft
- Size to:
- 1,818 sqft
- Stories:
- 3+
- Beds:
- 3
- Baths:
- 3
- Half baths:
- 1
- Garage spaces:
- 1
Plan features & finishes
- Garage/Parking:
- GarageAttached Garage
- Interior Features:
- Walk-In ClosetFoyerPantryStorageLoft
- Laundry facilities:
- Utility/Laundry Room
- Property amenities:
- DeckPorch
- Rooms:
- Great RoomKitchenPowder RoomDining RoomFamily RoomOpen Concept FloorplanPrimary Bedroom Upstairs
- Upgrade Options:
- Extra Bathroom

Get a consultation with our New Homes Expert
- See how your home builds wealth
- Plan your home-buying roadmap
- Discover hidden gems
See the full plan layout
Download the floor plan PDF with room dimensions and home design details.

Instant download, no cost

Community details
Westpark at Cane Bay at Cane Bay Plantation
by Stanley Martin Homes, Summerville, SC
- 11 homes
- 4 plans
- 1,796 - 2,125 sqft
View Westpark at Cane Bay details
Want to know more about what's around here?
The The Parker floor plan is part of Westpark at Cane Bay, a new home community by Stanley Martin Homes, located in Summerville, SC. Visit the Westpark at Cane Bay community page for full neighborhood insights, including nearby schools, shopping, walk & bike-scores, commuting, air quality & natural hazards.

Homes built from this plan
Available homes in Westpark at Cane Bay
- Home at address 144 Buck Fever Ln, Summerville, SC 29486

Home
$324,990
- 3 bd
- 3.5 ba
- 1,818 sqft
144 Buck Fever Ln, Summerville, SC 29486
- Home at address 140 Buck Fever Ln, Summerville, SC 29486

Home
$324,990
- 3 bd
- 3.5 ba
- 1,818 sqft
140 Buck Fever Ln, Summerville, SC 29486
- Home at address 534 Heathwood Wy, Summerville, SC 29486

Armfield
$346,490
- 3 bd
- 3.5 ba
- 1,878 sqft
534 Heathwood Wy, Summerville, SC 29486
- Home at address 530 Heathwood Wy, Summerville, SC 29486

Armfield
$358,990
- 3 bd
- 3.5 ba
- 1,878 sqft
530 Heathwood Wy, Summerville, SC 29486
- Home at address 347 Rosehaven Ln, Summerville, SC 29486

Jenkins
$359,990
- 4 bd
- 3 ba
- 1,943 sqft
347 Rosehaven Ln, Summerville, SC 29486
- Home at address 339 Rosehaven Ln, Summerville, SC 29486

Jenkins
$369,990
- 3 bd
- 2 ba
- 1,943 sqft
339 Rosehaven Ln, Summerville, SC 29486
More floor plans in Westpark at Cane Bay

Considering this plan?
Our expert will guide your tour, in-person or virtual
Need more information?
Text or call (888) 545-5198
Financials
Let us help you find your dream home
How many bedrooms are you looking for?
Similar homes nearby
Recently added communities in this area
Nearby communities in Summerville
New homes in nearby cities
More New Homes in Summerville, SC
- Jome
- New homes search
- South Carolina
- Charleston Metropolitan Area
- Berkeley County
- Summerville
- Westpark at Cane Bay
- 110 Buck Fever Ln, Summerville, SC 29486
































