













Book your tour. Save an average of $18,473. We'll handle the rest.
- Confirmed tours
- Get matched & compare top deals
- Expert help, no pressure
- No added fees
Estimated value based on Jome data, T&C apply



- 5 bd
- 3 ba
- 2,661 sqft
Atherton plan in Twin Creek Forsyth by Eastwood Homes
Visit the community to experience this floor plan
Why tour with Jome?
- No pressure toursTour at your own pace with no sales pressure
- Expert guidanceGet insights from our home buying experts
- Exclusive accessSee homes and deals not available elsewhere
Jome is featured in
Plan description
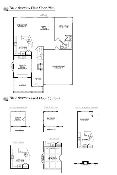
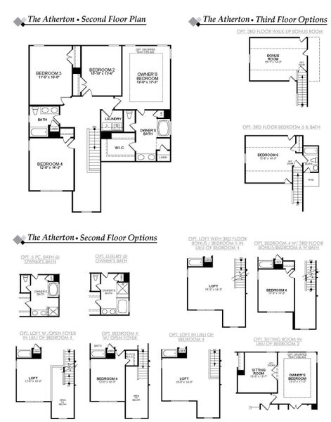
The Atherton is a two-story, five-bedroom, three-bath home with a side-load garage, formal dining room, spacious family room and kitchen, first-floor bedroom and bath, and second floor with four bedrooms, including the primary bedroom with attached bath.
Options available to personalize this home include a sunroom, covered porch, or screen porch, an office with French doors, a sitting area in the primary bedroom, two loft area layouts, and the third floor with a bonus room or bedroom and full bath.
May also be listed on the Eastwood Homes website
Information last verified by Jome: Today at 6:42 AM (December 17, 2025)
Plan highlights
Book your tour. Save an average of $18,473. We'll handle the rest.
We collect exclusive builder offers, book your tours, and support you from start to housewarming.
- Confirmed tours
- Get matched & compare top deals
- Expert help, no pressure
- No added fees
Estimated value based on Jome data, T&C apply
Plan details
- Name:
- Atherton
- Property status:
- Floor plan
- Size:
- 2,661 sqft
- Stories:
- 2
- Beds:
- 5
- Baths:
- 3
- Garage spaces:
- 2
Plan features & finishes
- Garage/Parking:
- GarageSide Entry Garage/ParkingAttached Garage
- Rooms:
- Dining Room
- Upgrade Options:
- Sitting Room

Get a consultation with our New Homes Expert
- See how your home builds wealth
- Plan your home-buying roadmap
- Discover hidden gems

Community details
Twin Creek Forsyth
by Eastwood Homes, Kernersville, NC
- 6 plans
- 1,955 - 3,483 sqft
View Twin Creek Forsyth details
Want to know more about what's around here?
The Atherton floor plan is part of Twin Creek Forsyth, a new home community by Eastwood Homes, located in Kernersville, NC. Visit the Twin Creek Forsyth community page for full neighborhood insights, including nearby schools, shopping, walk & bike-scores, commuting, air quality & natural hazards.


Considering this plan?
Our expert will guide your tour, in-person or virtual
Need more information?
Text or call (888) 486-2818
Financials
Let us help you find your dream home
How many bedrooms are you looking for?
Similar homes nearby
Recently added communities in this area
Nearby communities in Kernersville
New homes in nearby cities
More New Homes in Kernersville, NC
- Jome
- New homes search
- North Carolina
- Forsyth County
- Kernersville
- Twin Creek Forsyth
- 857 Twin Creek Rd, Kernersville, NC 27284


























