




Book your tour. Save an average of $18,473. We'll handle the rest.
- Confirmed tours
- Get matched & compare top deals
- Expert help, no pressure
- No added fees
Estimated value based on Jome data, T&C apply
- 3 bd
- 2.5 ba
- 2,140 sqft
Lumen A plan in NoVi Chatham Park by Homes by Dickerson
Visit the community to experience this floor plan
Why tour with Jome?
- No pressure toursTour at your own pace with no sales pressure
- Expert guidanceGet insights from our home buying experts
- Exclusive accessSee homes and deals not available elsewhere
Jome is featured in
Plan description
May also be listed on the Homes by Dickerson website
Information last verified by Jome: Thursday at 10:18 PM (November 6, 2025)
Plan highlights
Plan details
- Name:
- Lumen A
- Property status:
- Floor plan
- Size:
- 2,140 sqft
- Stories:
- 2
- Beds:
- 3
- Baths:
- 2.5
- Garage spaces:
- 2
Plan features & finishes
- Garage/Parking:
- Garage
- Interior Features:
- Walk-In ClosetPantryLoft
- Laundry facilities:
- Utility/Laundry Room
- Property amenities:
- Covered PatioPorch
- Rooms:
- Primary Bedroom On MainKitchenDining RoomFamily RoomOpen Concept FloorplanPrimary Bedroom Downstairs
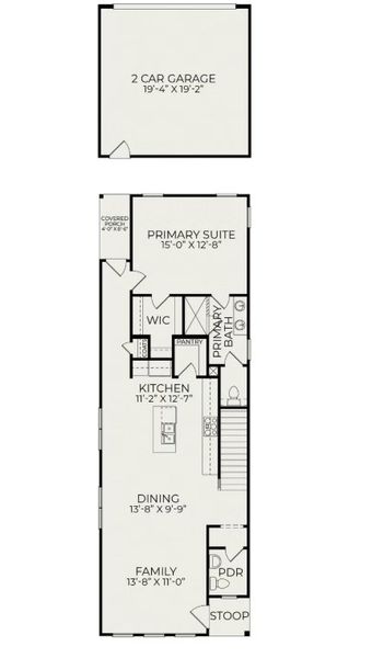
See the full plan layout
Download the floor plan PDF with room dimensions and home design details.

Instant download, no cost

Community details
NoVi Chatham Park at Chatham Park
by Homes by Dickerson, Pittsboro, NC
- 7 homes
- 16 plans
- 1,565 - 2,140 sqft
View NoVi Chatham Park details
Want to know more about what's around here?
The Lumen A floor plan is part of NoVi Chatham Park, a new home community by Homes by Dickerson, located in Pittsboro, NC. Visit the NoVi Chatham Park community page for full neighborhood insights, including nearby schools, shopping, walk & bike-scores, commuting, air quality & natural hazards.

Homes built from this plan
Available homes in NoVi Chatham Park
More floor plans in NoVi Chatham Park

Considering this plan?
Our expert will guide your tour, in-person or virtual
Need more information?
Text or call (888) 486-2818
Financials
Estimated monthly payment
Similar homes nearby
Recently added communities in this area
Nearby communities in Pittsboro
New homes in nearby cities
More New Homes in Pittsboro, NC
- Home
- New homes
- North Carolina
- Raleigh-Durham Area
- Chatham County
- Pittsboro
- NoVi Chatham Park
- 113 Parkland Dr, Pittsboro, NC 27312









































