






























- 2 bd
- 2 ba
- 918 sqft
Ellis plan in Middle Creek Village Single Family Homes by Ryan Homes
New Homes for Sale Near 1124 Middle Crest Drive NE, Bolivia, NC 28422
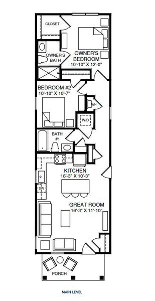
About this Plan
Welcome to Middle Creek Village! The only community in the area where you can craft your dream home from a variety of home types. Enjoy resort-style amenities, conveniently located near HWY 17 for easy commutes to Wilmington, and just 15 minutes from Oak Island and Southport.
Get to know The Ellis, a conveniently designed cottage that offers an overabundance of style. After relaxing with a morning coffee on your cozy front porch, step inside to a welcoming great room. The adjoining gourmet kitchen with a central island makes it the perfect spot for gathering with loved ones. Behind the kitchen, a spacious bedroom and full bath provides privacy and comfort for guests. At the back of the home, your desirable owner’s suite includes a large walk-in closet and ensuite bath. The Ellis has everything you could want from cottage-style living.
Schedule a visit today to learn more about the Ellis at Middle Creek Village!
May also be listed on the Ryan Homes website
Information last verified by Jome: Friday at 1:33 AM (August 8, 2025)
Plan details
- Name:
- Ellis
- Property status:
- Sold
- Size:
- 918 sqft
- Stories:
- 1
- Beds:
- 2
- Baths:
- 2
Plan features & finishes
- Interior Features:
- Walk-In Closet
- Laundry facilities:
- DryerWasherUtility/Laundry Room
- Property amenities:
- Porch
- Rooms:
- Great RoomPrimary Bedroom On MainKitchenFamily RoomPrimary Bedroom Downstairs
See the full plan layout
Download the floor plan PDF with room dimensions and home design details.

Instant download, no cost

Community details
Middle Creek Village Single Family Homes
by Ryan Homes, Bolivia, NC
- 2 plans
- 1,601 - 2,294 sqft
View Middle Creek Village Single Family Homes details
Want to know more about what's around here?
The Ellis floor plan is part of Middle Creek Village Single Family Homes, a new home community by Ryan Homes, located in Bolivia, NC. Visit the Middle Creek Village Single Family Homes community page for full neighborhood insights, including nearby schools, shopping, walk & bike-scores, commuting, air quality & natural hazards.

More floor plans in Middle Creek Village Single Family Homes
Financials
Nearby communities in Bolivia
Homes in Bolivia by Ryan Homes
Recently added communities in this area
Other Builders in Bolivia, NC
Nearby sold homes
New homes in nearby cities
More New Homes in Bolivia, NC
- Jome
- New homes search
- North Carolina
- Brunswick County
- Bolivia
- Middle Creek Village Single Family Homes
- 1124 Middle Crest Drive NE, Bolivia, NC 28422





















































