














Book your tour. Save an average of $18,473. We'll handle the rest.
We collect exclusive builder offers, book your tours, and support you from start to housewarming.
- Confirmed tours
- Get matched & compare top deals
- Expert help, no pressure
- No added fees
Estimated value based on Jome data, T&C apply






























- 3 bd
- 2 ba
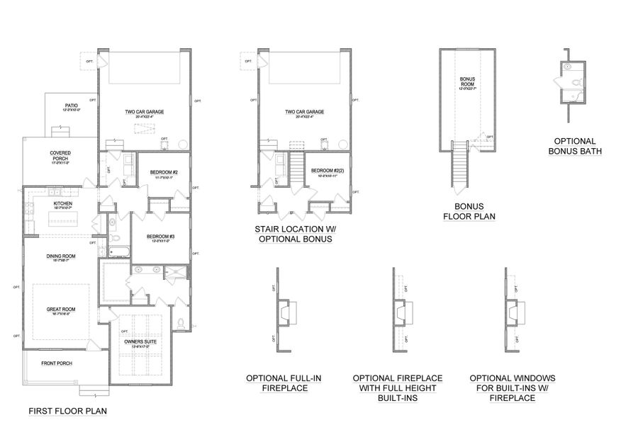
Grantville plan in The Sanctuary at Sunset Beach by Bill Clark Homes
Visit the community to experience this floor plan
Why tour with Jome?
- No pressure toursTour at your own pace with no sales pressure
- Expert guidanceGet insights from our home buying experts
- Exclusive accessSee homes and deals not available elsewhere
Jome is featured in
Plan description
May also be listed on the Bill Clark Homes website
Information last verified by Jome: Today at 9:09 AM (February 26, 2026)
Book your tour. Save an average of $18,473. We'll handle the rest.
We collect exclusive builder offers, book your tours, and support you from start to housewarming.
- Confirmed tours
- Get matched & compare top deals
- Expert help, no pressure
- No added fees
Estimated value based on Jome data, T&C apply
Plan details
- Name:
- Grantville
- Property status:
- Floor plan
- Beds:
- 3
- Baths from:
- 2
- Baths to:
- 3
- Garage spaces:
- 2
Plan features & finishes
- Garage/Parking:
- Garage

Get a consultation with our New Homes Expert
- See how your home builds wealth
- Plan your home-buying roadmap
- Discover hidden gems

Community details
The Sanctuary at Sunset Beach
by Bill Clark Homes, Sunset Beach, NC
- 6 homes
- 28 plans
- 1,489 - 3,048 sqft
View The Sanctuary at Sunset Beach details
Want to know more about what's around here?
The Grantville floor plan is part of The Sanctuary at Sunset Beach, a new home community by Bill Clark Homes, located in Sunset Beach, NC. Visit the The Sanctuary at Sunset Beach community page for full neighborhood insights, including nearby schools, shopping, walk & bike-scores, commuting, air quality & natural hazards.

Homes built from this plan
Available homes in The Sanctuary at Sunset Beach
- Home at address 1522 Manta Ray Wy, Sunset Beach, NC 28468

Ivy
$507,168
- 3 bd
- 2 ba
- 1,615 sqft
1522 Manta Ray Wy, Sunset Beach, NC 28468
- Home at address 1514 Manta Ray Wy, Sunset Beach, NC 28468

Scout
$564,900
- 3 bd
- 2.5 ba
- 2,033 sqft
1514 Manta Ray Wy, Sunset Beach, NC 28468
- Home at address 1478 Manta Ray Wy, Sunset Beach, NC 28468

Claremont
$574,000
- 3 bd
- 3 ba
- 2,205 sqft
1478 Manta Ray Wy, Sunset Beach, NC 28468
- Home at address 2006 Scup Pl, Sunset Beach, NC 28468

Beckett
Contact for price
- 3 bd
- 3 ba
- 2,658 sqft
2006 Scup Pl, Sunset Beach, NC 28468
More floor plans in The Sanctuary at Sunset Beach

Considering this plan?
Our expert will guide your tour, in-person or virtual
Need more information?
Text or call (888) 488-9243
Financials
Estimated monthly payment
Let us help you find your dream home
How many bedrooms are you looking for?


































