














Book your tour. Save an average of $18,473. We'll handle the rest.
- Confirmed tours
- Get matched & compare top deals
- Expert help, no pressure
- No added fees
Estimated value based on Jome data, T&C apply















- 4 bd
- 2.5 ba
- 2,771 sqft
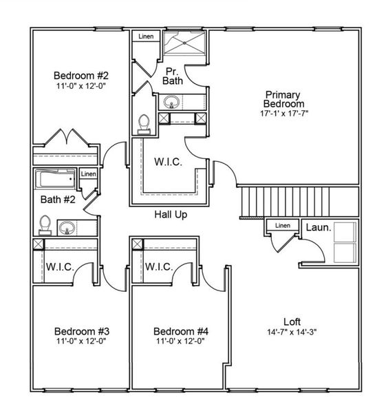
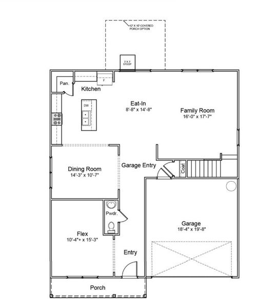
Telfair - Genesis Value Collection plan in Leander Lee Preserve by Mungo Homes
Visit the community to experience this floor plan
Why tour with Jome?
- No pressure toursTour at your own pace with no sales pressure
- Expert guidanceGet insights from our home buying experts
- Exclusive accessSee homes and deals not available elsewhere
Jome is featured in
Plan description
May also be listed on the Mungo Homes website
Information last verified by Jome: Today at 5:51 AM (February 5, 2026)
Plan details
- Name:
- Telfair - Genesis Value Collection
- Property status:
- Floor plan
- Size:
- 2,771 sqft
- Stories:
- 2
- Beds:
- 4
- Baths from:
- 2
- Baths to:
- 4
- Half baths:
- 1
- Garage spaces:
- 2
Plan features & finishes
- Garage/Parking:
- GarageAttached Garage
- Interior Features:
- Walk-In ClosetFoyerPantryLoft
- Laundry facilities:
- Utility/Laundry Room
- Property amenities:
- Porch
- Rooms:
- Flex RoomKitchenPowder RoomDining RoomFamily RoomBreakfast AreaOpen Concept FloorplanPrimary Bedroom Upstairs
- Upgrade Options:
- Garden TubCovered Porch

Get a consultation with our New Homes Expert
- See how your home builds wealth
- Plan your home-buying roadmap
- Discover hidden gems
See the full plan layout
Download the floor plan PDF with room dimensions and home design details.

Instant download, no cost

Community details
Leander Lee Preserve
by Mungo Homes, Lillington, NC
- 10 homes
- 10 plans
- 1,017 - 3,033 sqft
View Leander Lee Preserve details
Want to know more about what's around here?
The Telfair - Genesis Value Collection floor plan is part of Leander Lee Preserve, a new home community by Mungo Homes, located in Lillington, NC. Visit the Leander Lee Preserve community page for full neighborhood insights, including nearby schools, shopping, walk & bike-scores, commuting, air quality & natural hazards.

Available homes in Leander Lee Preserve
- Home at address 174 Harriette Ct, Lillington, NC 27546

Telfair
$369,000
- 4 bd
- 2.5 ba
- 2,833 sqft
174 Harriette Ct, Lillington, NC 27546
- Home at address 138 Harriette Ct, Lillington, NC 27546

Telfair
$379,000
- 4 bd
- 2.5 ba
- 2,771 sqft
138 Harriette Ct, Lillington, NC 27546
- Home at address 94 Harriette Ct, Lillington, NC 27546

Telfair
$381,686
- 4 bd
- 2.5 ba
- 2,771 sqft
94 Harriette Ct, Lillington, NC 27546
- Home at address 122 Harriette Ct, Lillington, NC 27546

Telfair
$385,000
- 4 bd
- 2.5 ba
- 2,771 sqft
122 Harriette Ct, Lillington, NC 27546
- Home at address 108 Harriette Ct, Lillington, NC 27546

Turner
$399,446
- 5 bd
- 2.5 ba
- 3,033 sqft
108 Harriette Ct, Lillington, NC 27546
- Home at address 109 Thomas Trl, Lillington, NC 27546

Telfair
$400,459
- 4 bd
- 2.5 ba
- 2,833 sqft
109 Thomas Trl, Lillington, NC 27546
More floor plans in Leander Lee Preserve
- View details for Guilford - Genesis Value Collection

Guilford - Genesis Value Collection
$281,000+- 4 bd
- 2.5 ba
- 1,772 sqft
- View details for McDowell - Genesis Value Collection

McDowell - Genesis Value Collection
$295,000+- 4 bd
- 2.5 ba
- 2,218 sqft

Considering this plan?
Our expert will guide your tour, in-person or virtual
Need more information?
Text or call (888) 486-2818
Financials
Estimated monthly payment
Let us help you find your dream home
How many bedrooms are you looking for?




























