








Book your tour. Save an average of $18,473. We'll handle the rest.
We collect exclusive builder offers, book your tours, and support you from start to housewarming.
- Confirmed tours
- Get matched & compare top deals
- Expert help, no pressure
- No added fees
Estimated value based on Jome data, T&C apply











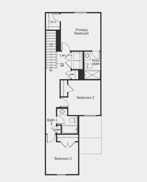
- 3 bd
- 2.5 ba
- 1,359 sqft
1359 Modeled plan in Richland Reserve by KB Home
Visit the community to experience this floor plan
Why tour with Jome?
- No pressure toursTour at your own pace with no sales pressure
- Expert guidanceGet insights from our home buying experts
- Exclusive accessSee homes and deals not available elsewhere
Jome is featured in
Plan description
May also be listed on the KB Home website
Information last verified by Jome: Today at 1:07 AM (May 18, 2026)
Plan details
- Name:
- 1359 Modeled
- Property type:
- Floor plan
- Community:
- Richland Reserve
- Builder:
- KB Home
- Size:
- 1,359 sqft
- Stories:
- 2
- Beds:
- 3
- Baths:
- 2.5
- Garage spaces:
- 1
Plan features & finishes
- Garage/Parking:
- GarageAttached Garage
- Home amenities:
- ENERGY STAR Certified
- Interior Features:
- Walk-In ClosetFoyerPantryStaircases
- Laundry facilities:
- Utility/Laundry Room
- Property amenities:
- Porch
- Rooms:
- KitchenPowder RoomDining RoomFamily RoomBreakfast AreaOpen Concept FloorplanPrimary Bedroom Upstairs

Get a consultation with our New Homes Expert
- See how your home builds wealth
- Plan your home-buying roadmap
- Discover hidden gems
See the full plan layout
Download the floor plan PDF with room dimensions and home design details.

Instant download, no cost

Community details
Richland Reserve
by KB Home, Raleigh, NC
- 4 homes
- 3 plans
- 1,155 - 1,601 sqft
View Richland Reserve details
Want to know more about what's around here?
The 1359 Modeled floor plan is part of Richland Reserve, a new home community by KB Home, located in Raleigh, NC. Visit the Richland Reserve community page for full neighborhood insights, including nearby schools, shopping, walk & bike-scores, commuting, air quality & natural hazards.

Available homes in Richland Reserve
- Home at address 10633 Brookside Reserve Rd, Raleigh, NC 27614

Home
$289,804
- 3 bd
- 2.5 ba
- 1,359 sqft
10633 Brookside Reserve Rd, Raleigh, NC 27614
- Home at address 10512 Brookside Reserve Rd, Raleigh, NC 27614

Home
$305,950
- 3 bd
- 2.5 ba
- 1,359 sqft
10512 Brookside Reserve Rd, Raleigh, NC 27614
More floor plans in Richland Reserve

Considering this plan?
Our expert will guide your tour, in-person or virtual
Need more information?
Text or call (888) 545-5198
Financials
Estimated monthly payment
Let us help you find your dream home
How many bedrooms are you looking for?
Similar homes nearby
Recently added communities in this area
Nearby communities in Raleigh
New homes in nearby cities
More New Homes in Raleigh, NC
- Jome
- New homes search
- North Carolina
- Raleigh-Durham Area
- Wake County
- Raleigh
- Richland Reserve
- 10508 Brookside Reserve Rd, Raleigh, NC 27614
























