












































- 4 bd
- 2.5 ba
- 2,203 sqft
Elder plan in Reserve At Four Oaks by Ryan Homes
New Homes for Sale Near 121 N Coral Bells Wy, Four Oaks, NC 27524
About this Plan
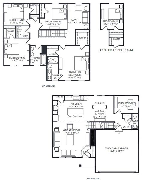
Welcome to Ryan Homes at Reserve at Four Oaks! Enter the Elder floorplan through the garage past the flex room and the powder room. The great room, kitchen, and dining area have an open concept. The kitchen features stainless steel appliances and an island. Upstairs are 4 spacious bedrooms with the option to add a 5th bedroom or include a loft. The Owner's bedroom includes an ensuite bath and walk-in closet. The laundry center is upstairs and includes a washer and dryer.
At Reserve at Four Oaks, a small addition to your commute can save you big! Your new home will be located less than 1 mile from Hwy 301. You will also have access to I-95, making it easy to get to all the different shopping and dining options you need! Ready to learn more? Schedule your visit today!
May also be listed on the Ryan Homes website
Information last verified by Jome: Friday at 1:31 AM (July 11, 2025)
Plan details
- Name:
- Elder
- Property status:
- Sold
- Size:
- 2,203 sqft
- Stories:
- 2
- Beds:
- 4
- Baths:
- 2
- Half baths:
- 1
- Garage spaces:
- 2
Plan features & finishes
- Garage/Parking:
- GarageAttached Garage
- Interior Features:
- Walk-In ClosetLoft
- Laundry facilities:
- Utility/Laundry Room
- Rooms:
- Flex RoomDining RoomFamily RoomPrimary Bedroom Upstairs

Community details
Reserve At Four Oaks
by Ryan Homes, Four Oaks, NC
View Reserve At Four Oaks details
Want to know more about what's around here?
The Elder floor plan is part of Reserve At Four Oaks, a new home community by Ryan Homes, located in Four Oaks, NC. Visit the Reserve At Four Oaks community page for full neighborhood insights, including nearby schools, shopping, walk & bike-scores, commuting, air quality & natural hazards.

Financials
Nearby communities in Four Oaks
Recently added communities in this area
Other Builders in Four Oaks, NC
Nearby sold homes
New homes in nearby cities
More New Homes in Four Oaks, NC
- Jome
- New homes search
- North Carolina
- Raleigh-Durham Area
- Johnston County
- Four Oaks
- Reserve At Four Oaks
- 121 N Coral Bells Wy, Four Oaks, NC 27524






















































