














Book your tour. Save an average of $18,473. We'll handle the rest.
- Confirmed tours
- Get matched & compare top deals
- Expert help, no pressure
- No added fees
Estimated value based on Jome data, T&C apply



















- 3 bd
- 2.5 ba
- 1,696 sqft
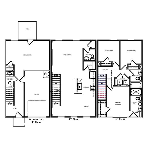
Aspen 3 Interior plan in Liberty Village by McGuinn Homes
Visit the community to experience this floor plan
Why tour with Jome?
- No pressure toursTour at your own pace with no sales pressure
- Expert guidanceGet insights from our home buying experts
- Exclusive accessSee homes and deals not available elsewhere
Jome is featured in
Plan description
May also be listed on the McGuinn Homes website
Information last verified by Jome: Today at 6:02 AM (February 3, 2026)
Book your tour. Save an average of $18,473. We'll handle the rest.
We collect exclusive builder offers, book your tours, and support you from start to housewarming.
- Confirmed tours
- Get matched & compare top deals
- Expert help, no pressure
- No added fees
Estimated value based on Jome data, T&C apply
Plan details
- Name:
- Aspen 3 Interior
- Property status:
- Floor plan
- Size:
- 1,696 sqft
- Stories:
- 3+
- Beds:
- 3
- Baths:
- 2
- Half baths:
- 2
- Garage spaces:
- 1
Plan features & finishes
- Garage/Parking:
- Garage

Get a consultation with our New Homes Expert
- See how your home builds wealth
- Plan your home-buying roadmap
- Discover hidden gems

Community details
Liberty Village
by McGuinn Homes, Hinesville, GA
- 3 homes
- 2 plans
- 1,696 - 1,696 sqft
View Liberty Village details
Want to know more about what's around here?
The Aspen 3 Interior floor plan is part of Liberty Village, a new home community by McGuinn Homes, located in Flemington, GA. Visit the Liberty Village community page for full neighborhood insights, including nearby schools, shopping, walk & bike-scores, commuting, air quality & natural hazards.

Homes built from this plan
Available homes in Liberty Village
- Home at address 117 Simms Wy (17), Flemington, GA 31313

Aspen 3 Exterior
$246,990
- 4 bd
- 3.5 ba
- 1,696 sqft
117 Simms Wy (17), Flemington, GA 31313
More floor plans in Liberty Village

Considering this plan?
Our expert will guide your tour, in-person or virtual
Need more information?
Text or call (888) 486-2818
Financials
Estimated monthly payment
Let us help you find your dream home
How many bedrooms are you looking for?
Similar homes nearby
Recently added communities in this area
Nearby communities in Flemington
New homes in nearby cities
More New Homes in Flemington, GA
- Jome
- New homes search
- Georgia
- Liberty County
- Flemington
- Liberty Village
- OC Martin Jr Dr, Flemington, GA 31313


















