








Book your tour. Save an average of $18,473. We'll handle the rest.
We collect exclusive builder offers, book your tours, and support you from start to housewarming.
- Confirmed tours
- Get matched & compare top deals
- Expert help, no pressure
- No added fees
Estimated value based on Jome data, T&C apply





- 4 bd
- 3.5 ba
- 2,860 sqft
Mira - Single Family Homes plan in Conner Springs by Dream Finders Homes
Visit the community to experience this floor plan
Why tour with Jome?
- No pressure toursTour at your own pace with no sales pressure
- Expert guidanceGet insights from our home buying experts
- Exclusive accessSee homes and deals not available elsewhere
Jome is featured in
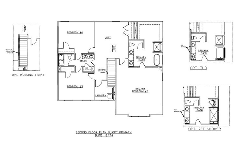
Plan description
May also be listed on the Dream Finders Homes website
Information last verified by Jome: Today at 5:55 AM (March 30, 2026)
Plan details
- Name:
- Mira - Single Family Homes
- Property type:
- Floor plan
- Community:
- Conner Springs
- Builder:
- Dream Finders Homes
- Size:
- 2,860 sqft
- Stories:
- 2
- Beds:
- 4
- Baths:
- 3
- Half baths:
- 1
- Garage spaces:
- 2
Plan features & finishes
- Garage/Parking:
- GarageAttached Garage
- Interior Features:
- Walk-In ClosetFoyerPantryLoft
- Laundry facilities:
- Utility/Laundry Room
- Property amenities:
- Porch
- Rooms:
- KitchenPowder RoomDining RoomFamily RoomOpen Concept FloorplanPrimary Bedroom Upstairs
- Upgrade Options:
- Gourmet Kitchen

Get a consultation with our New Homes Expert
- See how your home builds wealth
- Plan your home-buying roadmap
- Discover hidden gems
See the full plan layout
Download the floor plan PDF with room dimensions and home design details.

Instant download, no cost

Community details
Conner Springs
by Dream Finders Homes, Social Circle, GA
- 7 homes
- 7 plans
- 2,000 - 2,860 sqft
View Conner Springs details
Want to know more about what's around here?
The Mira - Single Family Homes floor plan is part of Conner Springs, a new home community by Dream Finders Homes, located in Social Circle, GA. Visit the Conner Springs community page for full neighborhood insights, including nearby schools, shopping, walk & bike-scores, commuting, air quality & natural hazards.

Available homes in Conner Springs
- Home at address 88 Faulkner Cir, Social Circle, GA 30025

Home
$365,440
- 4 bd
- 3 ba
- 2,000 sqft
88 Faulkner Cir, Social Circle, GA 30025
- Home at address 88 Faulkner Circle Social Cir, Social Circle, GA 30025

Shiloh
$371,440
- 4 bd
- 3 ba
- 2,000 sqft
88 Faulkner Circle Social Cir, Social Circle, GA 30025
- Home at address 87 Faulkner Circle Social Cir, Social Circle, GA 30025

Sinclair
$387,190
- 4 bd
- 3 ba
- 2,685 sqft
87 Faulkner Circle Social Cir, Social Circle, GA 30025
- Home at address 101 Faulkner Circle Social Cir, Social Circle, GA 30025

Harding
$390,690
- 4 bd
- 3 ba
- 2,700 sqft
101 Faulkner Circle Social Cir, Social Circle, GA 30025
- Home at address 371 Orwell Dr, Social Circle, GA 30025

Tucker
$401,890
- 4 bd
- 3.5 ba
- 2,860 sqft
371 Orwell Dr, Social Circle, GA 30025
- Home at address 231D Orwell Dr, Social Circle, GA 30025

Harding - Single Family Homes
$429,590
- 4 bd
- 3 ba
- 2,700 sqft
231D Orwell Dr, Social Circle, GA 30025
More floor plans in Conner Springs
- View details for Tucker Front Porch - Single Family Homes

Tucker Front Porch - Single Family Homes
$351,990+- 4 bd
- 2.5 ba
- 2,300 sqft
- View details for Shiloh - Single Family Homes

Shiloh - Single Family Homes
$356,990+- 4 bd
- 3 ba
- 2,000 sqft

Considering this plan?
Our expert will guide your tour, in-person or virtual
Need more information?
Text or call (888) 545-5198
Financials
Estimated monthly payment
Let us help you find your dream home
How many bedrooms are you looking for?
Similar homes nearby
Recently added communities in this area
Nearby communities in Social Circle
New homes in nearby cities
More New Homes in Social Circle, GA
- Jome
- New homes search
- Georgia
- Walton County
- Social Circle
- Conner Springs
- 353 Spring St, Social Circle, GA 30025






























