



Book your tour. Save an average of $18,473. We'll handle the rest.
- Confirmed tours
- Get matched & compare top deals
- Expert help, no pressure
- No added fees
Estimated value based on Jome data, T&C apply
- 3 bd
- 2.5 ba
- 1,837 sqft
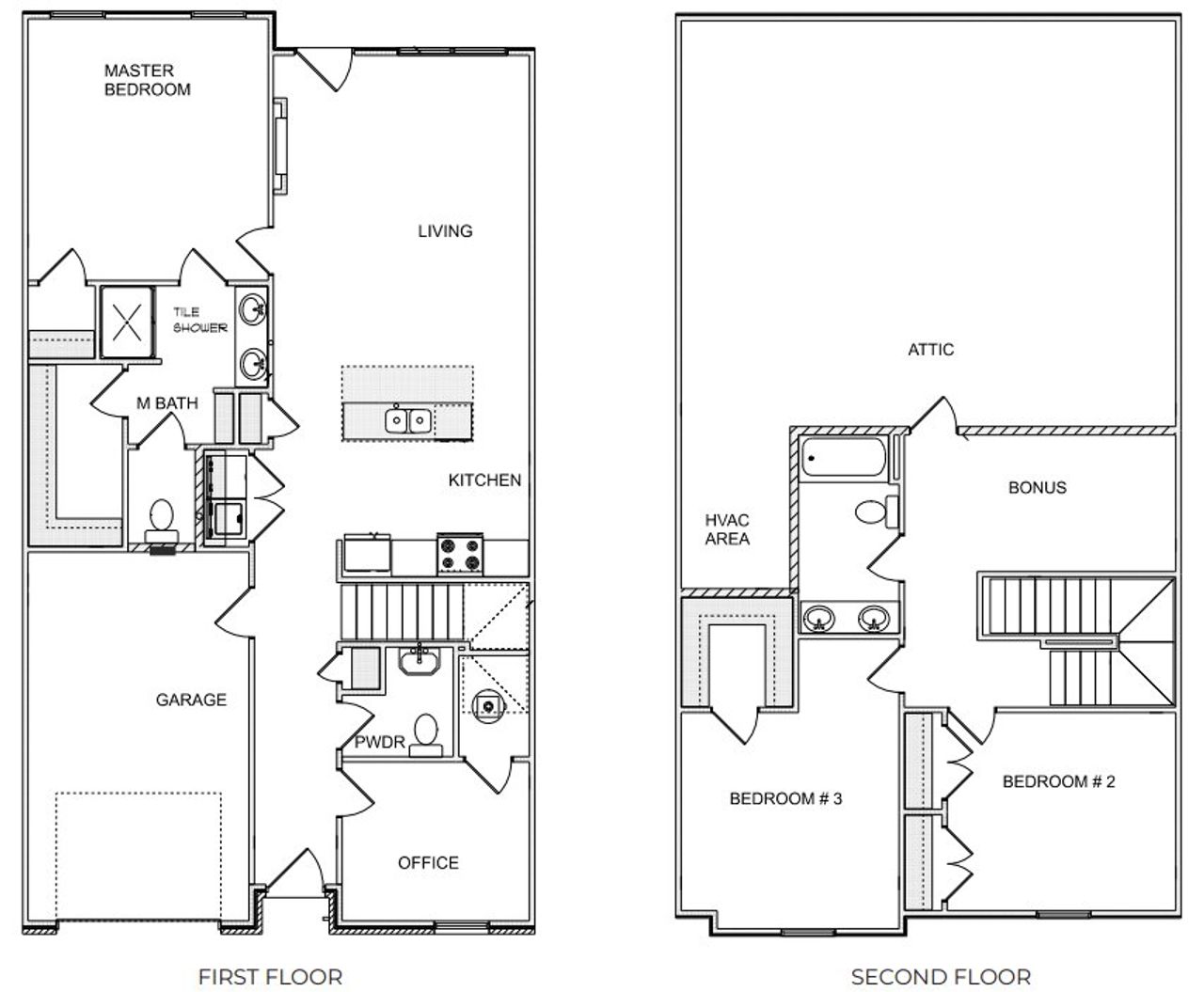
The Townsend plan in The Village at Maple Street by EMC Homes, LLC
Visit the community to experience this floor plan
Why tour with Jome?
- No pressure toursTour at your own pace with no sales pressure
- Expert guidanceGet insights from our home buying experts
- Exclusive accessSee homes and deals not available elsewhere
Jome is featured in
Plan description
May also be listed on the EMC Homes, LLC website
Information last verified by Jome: Tuesday at 4:30 PM (December 23, 2025)
Plan highlights
Plan details
- Name:
- The Townsend
- Property status:
- Floor plan
- Size:
- 1,837 sqft
- Stories:
- 2
- Beds:
- 3
- Baths:
- 2.5
- Garage spaces:
- 1
Plan features & finishes
- Garage/Parking:
- GarageAttached Garage
- Interior Features:
- Walk-In ClosetFoyerPantry
- Laundry facilities:
- Utility/Laundry Room
- Property amenities:
- Porch
- Rooms:
- AtticBonus RoomPrimary Bedroom On MainKitchenPowder RoomOffice/StudyLiving RoomOpen Concept FloorplanPrimary Bedroom DownstairsPrimary Bedroom Upstairs

Get a consultation with our New Homes Expert
- See how your home builds wealth
- Plan your home-buying roadmap
- Discover hidden gems
See the full plan layout
Download the floor plan PDF with room dimensions and home design details.

Instant download, no cost

Community details
The Village at Maple Street
by EMC Homes, LLC, Dawsonville, GA
- 2 plans
- 1,837 - 2,575 sqft
View The Village at Maple Street details
Want to know more about what's around here?
The The Townsend floor plan is part of The Village at Maple Street, a new home community by EMC Homes, LLC, located in Dawsonville, GA. Visit the The Village at Maple Street community page for full neighborhood insights, including nearby schools, shopping, walk & bike-scores, commuting, air quality & natural hazards.


Considering this plan?
Our expert will guide your tour, in-person or virtual
Need more information?
Text or call (888) 486-2818
Financials
Estimated monthly payment
Let us help you find your dream home
How many bedrooms are you looking for?




























