














Book your tour. Save an average of $18,473. We'll handle the rest.
- Confirmed tours
- Get matched & compare top deals
- Expert help, no pressure
- No added fees
Estimated value based on Jome data, T&C apply

















- 3 bd
- 2.5 ba
- 1,598 sqft
Jasmine - Townhomes plan in The Grove At Mundy Mill by Dream Finders Homes
Visit the community to experience this floor plan
Why tour with Jome?
- No pressure toursTour at your own pace with no sales pressure
- Expert guidanceGet insights from our home buying experts
- Exclusive accessSee homes and deals not available elsewhere
Jome is featured in
Plan description
May also be listed on the Dream Finders Homes website
Information last verified by Jome: Today at 5:22 AM (February 3, 2026)
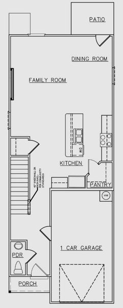
Plan details
- Name:
- Jasmine - Townhomes
- Property status:
- Floor plan
- Size:
- 1,598 sqft
- Stories:
- 2
- Beds:
- 3
- Baths:
- 2
- Half baths:
- 1
- Garage spaces:
- 1
Plan features & finishes
- Garage/Parking:
- GarageAttached Garage
- Interior Features:
- Walk-In ClosetFoyerPantryLoft
- Laundry facilities:
- Utility/Laundry Room
- Property amenities:
- PatioPorch
- Rooms:
- KitchenPowder RoomDining RoomFamily RoomOpen Concept FloorplanPrimary Bedroom Upstairs

Get a consultation with our New Homes Expert
- See how your home builds wealth
- Plan your home-buying roadmap
- Discover hidden gems
See the full plan layout
Download the floor plan PDF with room dimensions and home design details.

Instant download, no cost

Community details
The Grove At Mundy Mill
by Dream Finders Homes, Gainesville, GA
- 8 homes
- 3 plans
- 1,598 - 1,636 sqft
View The Grove At Mundy Mill details
Want to know more about what's around here?
The Jasmine - Townhomes floor plan is part of The Grove At Mundy Mill, a new home community by Dream Finders Homes, located in Gainesville, GA. Visit the The Grove At Mundy Mill community page for full neighborhood insights, including nearby schools, shopping, walk & bike-scores, commuting, air quality & natural hazards.

Available homes in The Grove At Mundy Mill
- Home at address 5304 Magnolia Grove Wy, Gainesville, GA 30504

Jasmine
$313,990
- 3 bd
- 2.5 ba
- 1,598 sqft
5304 Magnolia Grove Wy, Gainesville, GA 30504
- Home at address 5299 Magnolia Grove Wy, Gainesville, GA 30504

Jasmine
$313,990
- 3 bd
- 2.5 ba
- 1,598 sqft
5299 Magnolia Grove Wy, Gainesville, GA 30504
- Home at address 5296 Magnolia Grove Wy, Gainesville, GA 30504

Jasmine
$313,990
- 3 bd
- 2.5 ba
- 1,598 sqft
5296 Magnolia Grove Wy, Gainesville, GA 30504
- Home at address 4809 Orchard Grove Wy, Unit 182, Gainesville, GA 30504

Home
$313,990
- 3 bd
- 2.5 ba
- 1,600 sqft
4809 Orchard Grove Wy, Unit 182, Gainesville, GA 30504
- Home at address 4840 Orchard Wy, Gainesville, GA 30504

Jade II - Townhomes
$319,990
- 4 bd
- 2.5 ba
- 1,600 sqft
4840 Orchard Wy, Gainesville, GA 30504
- Home at address 5287 Magnolia Grove Wy, Gainesville, GA 30504

Jade I
$319,990
- 4 bd
- 2.5 ba
- 1,623 sqft
5287 Magnolia Grove Wy, Gainesville, GA 30504
More floor plans in The Grove At Mundy Mill

Considering this plan?
Our expert will guide your tour, in-person or virtual
Need more information?
Text or call (888) 486-2818
Financials
Estimated monthly payment
Let us help you find your dream home
How many bedrooms are you looking for?
Similar homes nearby
Recently added communities in this area
Nearby communities in Gainesville
New homes in nearby cities
More New Homes in Gainesville, GA
- Jome
- New homes search
- Georgia
- Atlanta Metropolitan Area
- Hall County
- Gainesville
- The Grove At Mundy Mill
- 4817 Orchard Grove Wy, Gainesville, GA 30504




























