














Book your tour. Save an average of $18,473. We'll handle the rest.
We collect exclusive builder offers, book your tours, and support you from start to housewarming.
- Confirmed tours
- Get matched & compare top deals
- Expert help, no pressure
- No added fees
Estimated value based on Jome data, T&C apply





- 3 bd
- 3 ba
- 2,499 sqft
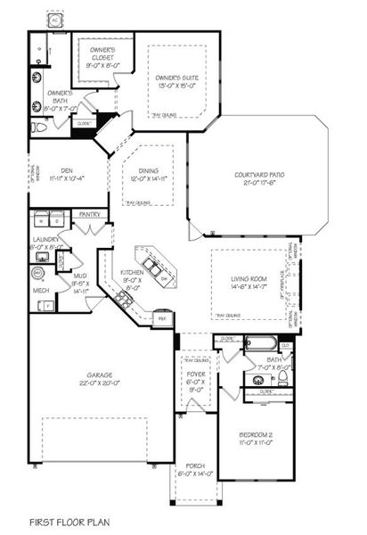
Portico plan in The Courtyards by The Manor by Epcon Communities
Visit the community to experience this floor plan
Why tour with Jome?
- No pressure toursTour at your own pace with no sales pressure
- Expert guidanceGet insights from our home buying experts
- Exclusive accessSee homes and deals not available elsewhere
Jome is featured in
Plan description
May also be listed on the Epcon Communities website
Information last verified by Jome: Sunday at 1:39 PM (February 15, 2026)
Plan highlights
Plan details
- Name:
- Portico
- Property type:
- Floor plan
- Community:
- The Courtyards by The Manor
- Builder:
- Epcon Communities
- Size from:
- 2,499 sqft
- Size to:
- 2,615 sqft
- Stories:
- 2
- Beds:
- 3
- Baths:
- 3
- Garage spaces:
- 2.5
Plan features & finishes
- Garage/Parking:
- GarageAttached Garage
- Interior Features:
- Walk-In ClosetFoyer
- Laundry facilities:
- Utility/Laundry Room
- Property amenities:
- PatioPorch
- Rooms:
- KitchenDen RoomMudroomDining RoomLiving RoomPrimary Bedroom Downstairs

Get a consultation with our New Homes Expert
- See how your home builds wealth
- Plan your home-buying roadmap
- Discover hidden gems
See the full plan layout
Download the floor plan PDF with room dimensions and home design details.

Instant download, no cost

Community details
The Courtyards by The Manor
by Epcon Communities, Alpharetta, GA
- 1 home
- 4 plans
- 2,000 - 2,832 sqft
View The Courtyards by The Manor details
Want to know more about what's around here?
The Portico floor plan is part of The Courtyards by The Manor, a new home community by Epcon Communities, located in Alpharetta, GA. Visit the The Courtyards by The Manor community page for full neighborhood insights, including nearby schools, shopping, walk & bike-scores, commuting, air quality & natural hazards.

Available homes in The Courtyards by The Manor
- Home at address 3580 Manor Court Dr, Alpharetta, GA 30004

Palazzo
$799,904
- 2 bd
- 3 ba
- 2,202 sqft
3580 Manor Court Dr, Alpharetta, GA 30004
More floor plans in The Courtyards by The Manor

Considering this plan?
Our expert will guide your tour, in-person or virtual
Need more information?
Text or call (888) 488-9243
Financials
Estimated monthly payment
Let us help you find your dream home
How many bedrooms are you looking for?
Similar homes nearby
Recently added communities in this area
Nearby communities in Alpharetta
New homes in nearby cities
More New Homes in Alpharetta, GA
- Jome
- New homes search
- Georgia
- Atlanta Metropolitan Area
- Forsyth County
- Alpharetta
- The Courtyards by The Manor
- 3525 Longstreet Church Rd, Alpharetta, GA 30004



























