






















- 4 bd
- 4 ba
- 3,302 sqft
The Pembrook plan in The Beacon at Old Peachtree Single Family Homes by Stanley Martin Homes
New Homes for Sale Near 2315 Whistler Wy Ne, Lawrenceville, GA 30043
About this Plan
May also be listed on the Stanley Martin Homes website
Information last verified by Jome: Monday at 1:03 PM (February 16, 2026)
Plan details
- Name:
- The Pembrook
- Property status:
- Sold
- Size from:
- 3,302 sqft
- Size to:
- 4,436 sqft
- Stories:
- 2
- Beds:
- 4
- Baths:
- 4
- Half baths:
- 1
- Garage spaces:
- 3
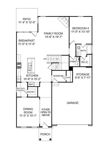
Plan features & finishes
- Garage/Parking:
- GarageGarage StorageAttached Garage
- Interior Features:
- Walk-In ClosetFoyerPantryLoft
- Kitchen:
- Kitchen Island
- Laundry facilities:
- Utility/Laundry Room
- Property amenities:
- Butler's PantryPatioFireplacePorch
- Rooms:
- KitchenPowder RoomMudroomDining RoomFamily RoomBreakfast AreaOpen Concept FloorplanPrimary Bedroom Upstairs
See the full plan layout
Download the floor plan PDF with room dimensions and home design details.

Instant download, no cost

Community details
The Beacon at Old Peachtree Single Family Homes
by Stanley Martin Homes, Lawrenceville, GA
- 3 plans
- 1,897 - 2,729 sqft
View The Beacon at Old Peachtree Single Family Homes details
Want to know more about what's around here?
The The Pembrook floor plan is part of The Beacon at Old Peachtree Single Family Homes, a new home community by Stanley Martin Homes, located in Lawrenceville, GA. Visit the The Beacon at Old Peachtree Single Family Homes community page for full neighborhood insights, including nearby schools, shopping, walk & bike-scores, commuting, air quality & natural hazards.

More floor plans in The Beacon at Old Peachtree Single Family Homes
Financials
Nearby communities in Lawrenceville
Homes in Lawrenceville by Stanley Martin Homes
Recently added communities in this area
Other Builders in Lawrenceville, GA
Nearby sold homes
New homes in nearby cities
More New Homes in Lawrenceville, GA
- Jome
- New homes search
- Georgia
- Atlanta Metropolitan Area
- Gwinnett County
- Lawrenceville
- The Beacon at Old Peachtree Single Family Homes
- 2315 Whistler Wy Ne, Lawrenceville, GA 30043






























































