



- 4 bd
- 3.5 ba
- 2,595 sqft
The Ansley plan in Creekside by MacBuilt Homes
New Homes for Sale Near 2626 Radvell Ct, Decatur, GA 30034
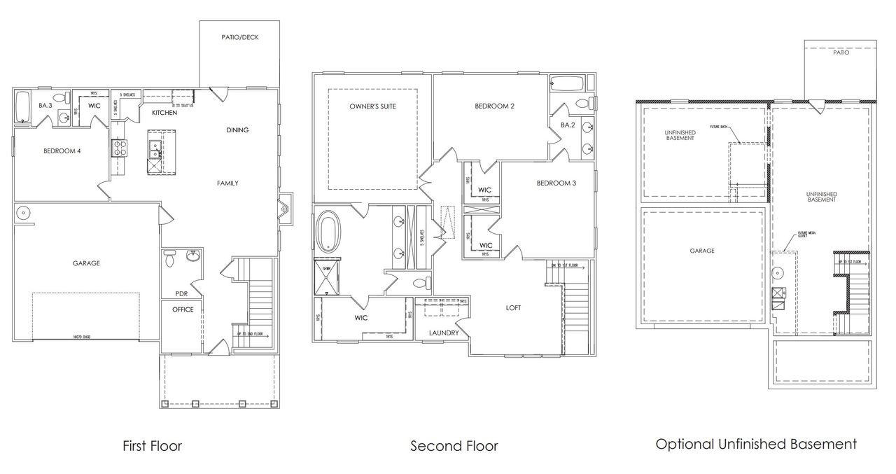
About this Plan
May also be listed on the MacBuilt Homes website
Information last verified by Jome: Monday at 2:46 PM (August 18, 2025)
Plan details
- Name:
- The Ansley
- Property type:
- Sold
- Community:
- Creekside
- Builder:
- MacBuilt Homes
- Size:
- 2,595 sqft
- Stories:
- 2
- Beds:
- 4
- Baths:
- 3.5
- Garage spaces:
- 2
Plan features & finishes
- Garage/Parking:
- GarageAttached Garage
- Interior Features:
- Walk-In ClosetFoyerPantryLoft
- Kitchen:
- Gas Cooktop
- Laundry facilities:
- Utility/Laundry Room
- Property amenities:
- BasementBathtub in primaryPatioFireplacePorch
- Rooms:
- KitchenPowder RoomOffice/StudyDining RoomFamily RoomOpen Concept FloorplanPrimary Bedroom Upstairs

Community details
Creekside
by MacBuilt Homes, Decatur, GA
- 2 homes
- 2,508 - 2,595 sqft
View Creekside details
Want to know more about what's around here?
The The Ansley floor plan is part of Creekside, a new home community by MacBuilt Homes, located in Decatur, GA. Visit the Creekside community page for full neighborhood insights, including nearby schools, shopping, walk & bike-scores, commuting, air quality & natural hazards.

Homes built from this plan
Available homes in Creekside
- Home at address 2635 Radvell Ct, Decatur, GA 30034

$524,721
Move-in ready- 5 bd
- 4 ba
- 2,554 sqft
2635 Radvell Ct, Decatur, GA 30034
Financials
Nearby communities in Decatur
Homes in Decatur Neighborhoods
Homes in Decatur by MacBuilt Homes
Recently added communities in this area
Other Builders in Decatur, GA
Nearby sold homes
New homes in nearby cities
More New Homes in Decatur, GA
- Jome
- New homes search
- Georgia
- Atlanta Metropolitan Area
- Decatur
- Creekside
- 2626 Radvell Ct, Decatur, GA 30034






















































