




- 4 bd
- 4 ba
- 3,512 sqft
The Allyson plan in The Springs of Chateau by Walker Anderson Homes
New Homes for Sale Near 1809 Sauterne Dr, Hoschton, GA 30548
About this Plan
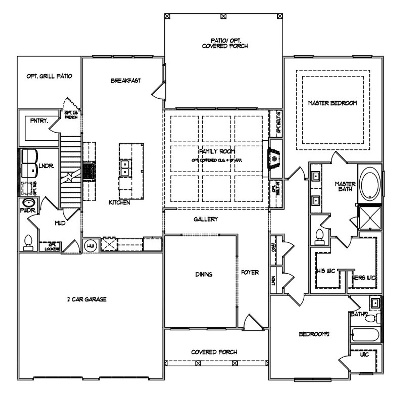
Discover the The Allyson floor plan in The Springs of Chateau, an outstanding community designed by Walker Anderson Homes in the city of Hoschton. This plan uses high-quality materials and finishes to create a luxurious ambiance you'll love coming home to for years.
Located at 1809 Sauterne Drive, Hoschton, GA 30548 in the prestigious The Springs of Chateau, you'll find a collection of other new construction homes created with various layouts, along with a welcoming community of neighbors and a variety of amenities to enrich your lifestyle.
The The Allyson is a beautiful 2-story floor plan with 4 spacious bedrooms, and 4 modern bathrooms spread over 3,512 square feet. This plan also includes a garage with 2 spaces for parking vehicles, extra storage, or hobby essentials.
You'll love the convenience of being close to fantastic shopping, top-notch dining options, entertainment, and opportunities for outdoor adventures. Plus, The Springs of Chateau is zoned to the reputable Barrow County School District, providing easy access to the best schools in the area.
Does The Allyson sound like your dream floor plan? Work with Jome to make it a reality. Contact a New Construction Specialist to take the first step towards a lifestyle of convenience and luxury in your future home.
May also be listed on the Walker Anderson Homes website
Information last verified by Jome: Wednesday at 10:08 AM (July 23, 2025)
Plan details
- Name:
- The Allyson
- Property status:
- Sold
- Size:
- 3,512 sqft
- Stories:
- 2
- Beds:
- 4
- Baths:
- 4
- Garage spaces:
- 2
Plan features & finishes
- Garage/Parking:
- GarageAttached Garage
- Interior Features:
- Walk-In ClosetFoyerLoft
- Laundry facilities:
- Utility/Laundry Room
- Property amenities:
- Porch
- Rooms:
- GalleryKitchenMudroomDining RoomFamily RoomBreakfast AreaPrimary Bedroom Downstairs
See the full plan layout
Download the floor plan PDF with room dimensions and home design details.

Instant download, no cost

Community details
The Springs of Chateau
by Walker Anderson Homes, Hoschton, GA
View The Springs of Chateau details
Want to know more about what's around here?
The The Allyson floor plan is part of The Springs of Chateau, a new home community by Walker Anderson Homes, located in Hoschton, GA. Visit the The Springs of Chateau community page for full neighborhood insights, including nearby schools, shopping, walk & bike-scores, commuting, air quality & natural hazards.

Financials
Nearby communities in Hoschton
Recently added communities in this area
Other Builders in Hoschton, GA
Nearby sold homes
New homes in nearby cities
More New Homes in Hoschton, GA
- Jome
- New homes search
- Georgia
- Atlanta Metropolitan Area
- Barrow County
- Hoschton
- The Springs of Chateau
- 1809 Sauterne Dr, Hoschton, GA 30548























































