



- 5 bd
- 4 ba
- 3,480 sqft
Somerset III plan in Palmer Falls by Kerley Family Homes
New Homes for Sale Near 3522 Providence Pl, Douglasville, GA 30135
About this Plan
May also be listed on the Kerley Family Homes website
Information last verified by Jome: Thursday at 2:39 PM (January 29, 2026)
Plan details
- Name:
- Somerset III
- Property type:
- Sold
- Community:
- Palmer Falls
- Builder:
- Kerley Family Homes
- Size:
- 3,480 sqft
- Stories:
- 2
- Beds:
- 5
- Baths:
- 4
- Garage spaces:
- 2
Plan features & finishes
- Garage/Parking:
- GarageAttached Garage
- Interior Features:
- Walk-In ClosetPantry
- Laundry facilities:
- Utility/Laundry Room
- Property amenities:
- PatioPorch
- Rooms:
- KitchenMudroomDining RoomFamily RoomLiving RoomBreakfast AreaPrimary Bedroom Upstairs
- Upgrade Options:
- Sun RoomCovered PatioCoffered CeilingSitting Room
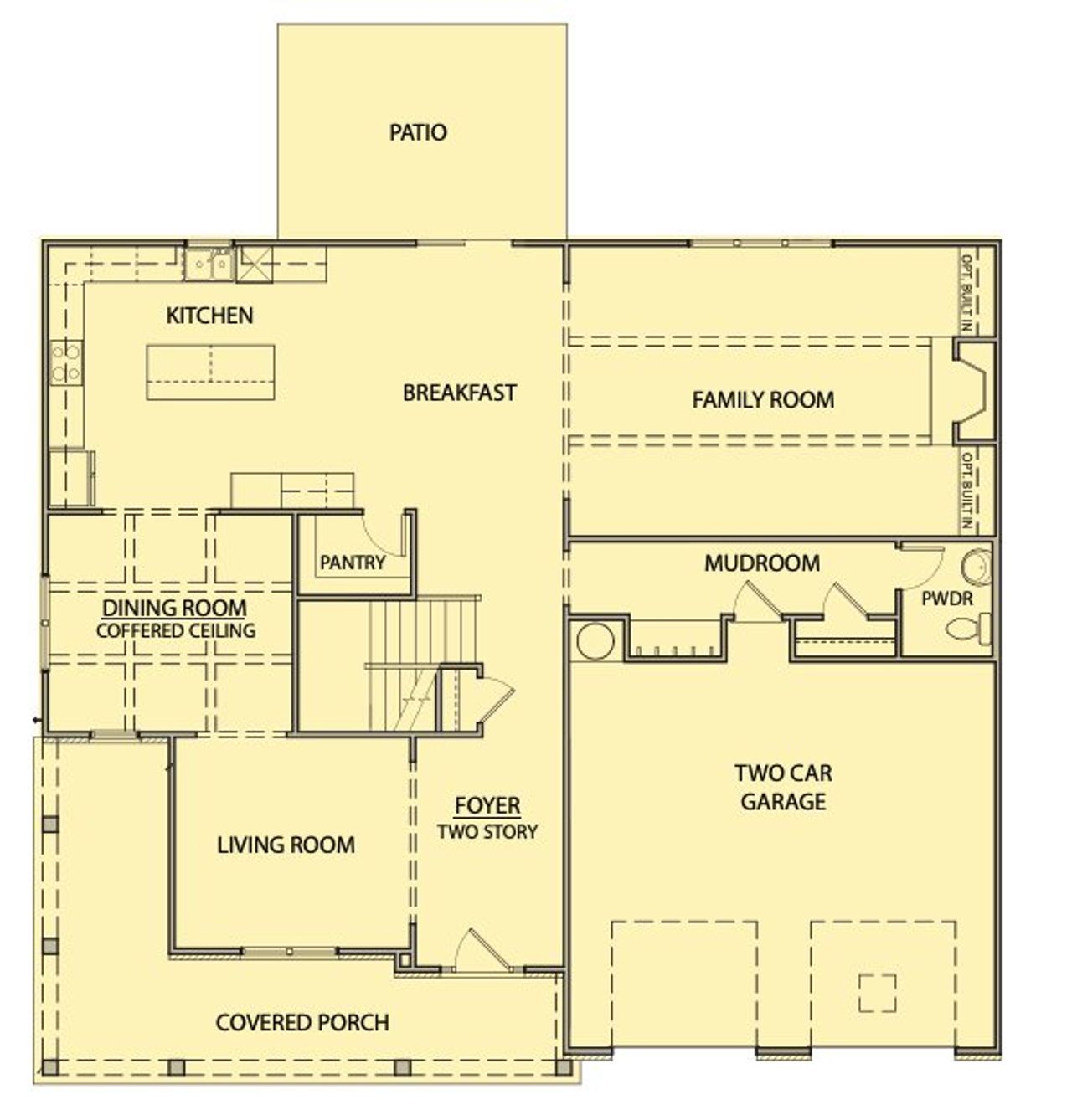
See the full plan layout
Download the floor plan PDF with room dimensions and home design details.

Instant download, no cost

Community details
Palmer Falls
by Kerley Family Homes, Douglasville, GA
View Palmer Falls details
Want to know more about what's around here?
The Somerset III floor plan is part of Palmer Falls, a new home community by Kerley Family Homes, located in Douglasville, GA. Visit the Palmer Falls community page for full neighborhood insights, including nearby schools, shopping, walk & bike-scores, commuting, air quality & natural hazards.

Financials
Nearby communities in Douglasville
Homes in Douglasville by Kerley Family Homes
Recently added communities in this area
Other Builders in Douglasville, GA
Nearby sold homes
New homes in nearby cities
More New Homes in Douglasville, GA
- Jome
- New homes search
- Georgia
- Atlanta Metropolitan Area
- Douglas County
- Douglasville
- Palmer Falls
- 3522 Providence Pl, Douglasville, GA 30135






























































