


















- 3 bd
- 2.5 ba
- 1,597 sqft
Allegiance plan in The Townes at Cross Creek by Lennar
New Homes for Sale Near 10811 Fowlers Bluff Ct, Tampa, FL 33647
About this Plan
May also be listed on the Lennar website
Information last verified by Jome: Today at 10:26 AM (April 1, 2026)
Plan details
- Name:
- Allegiance
- Property type:
- Sold
- Community:
- The Townes at Cross Creek
- Builder:
- Lennar
- Neighborhood:
- New Tampa
- Size:
- 1,597 sqft
- Stories:
- 2
- Beds:
- 3
- Baths:
- 2.5
- Garage spaces:
- 1
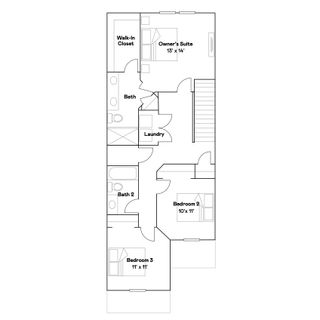
Plan features & finishes
- Garage/Parking:
- GarageAttached Garage
- Interior Features:
- Walk-In ClosetFoyerStaircases
- Laundry facilities:
- Utility/Laundry Room
- Property amenities:
- PatioPorch
- Rooms:
- KitchenPowder RoomDining RoomFamily RoomOpen Concept FloorplanPrimary Bedroom Upstairs
See the full plan layout
Download the floor plan PDF with room dimensions and home design details.

Instant download, no cost

Community details
The Townes at Cross Creek
by Lennar, Tampa, FL
View The Townes at Cross Creek details
Want to know more about what's around here?
The Allegiance floor plan is part of The Townes at Cross Creek, a new home community by Lennar, located in Tampa, FL. Visit the The Townes at Cross Creek community page for full neighborhood insights, including nearby schools, shopping, walk & bike-scores, commuting, air quality & natural hazards.

Financials
Nearby communities in Tampa
Homes in Tampa Neighborhoods
- Bayshore Beautiful
- Old Seminole Heights
- Gandy-Sun Bay South
- Davis Island
- Ballast Point
- Sunset Park
- Tampa Heights
- Lowry Park Central
- Virginia Park
- Channel District
- Bayside West
- Riverside Heights
- Downtown
- East Tampa
- Beach Park
- Northeast Macfarlane
- Ridgewood Park
- West Riverfront
- South Seminole Heights
- West Shore Palms
- Sulphur Springs
- Belmar Gardens
- Oakford Park
- Interbay
- Bon Air
- Port Tampa City
- Rattlesnake
- Seminole Heights
- Palma Ceia
- Temple Crest
- Courier City
- Forest Hills
- Swann Estates
- Palmetto Beach
- Drew Park
- New Tampa
- Tampa-Bayshore Gardens
- Northview Hills
- Ybor City
- Fairoaks
- Carver City
- Wellswood
- Grant Park
- Plaza Terrace
- Live Oaks Square
- Culbreath
- Bon Air North
- Riverbend
Homes in Tampa by Lennar
Recently added communities in this area
Other Builders in Tampa, FL
Nearby sold homes
New homes in nearby cities
More New Homes in Tampa, FL
- Jome
- New homes search
- Florida
- Tampa Bay Area
- Hillsborough County
- Tampa
- The Townes at Cross Creek
- 10811 Fowlers Bluff Ct, Tampa, FL 33647
















































