


Book your tour. Save an average of $18,473. We'll handle the rest.
We collect exclusive builder offers, book your tours, and support you from start to housewarming.
- Confirmed tours
- Get matched & compare top deals
- Expert help, no pressure
- No added fees
Estimated value based on Jome data, T&C apply

- 3 bd
- 4.5 ba
- 6,105 sqft
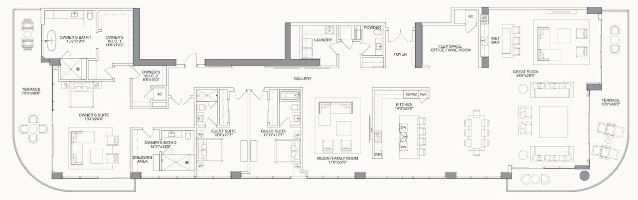
Penthouse One East Tower plan in Selene Oceanfront Residences by Kolter Urban
Visit the community to experience this floor plan
Why tour with Jome?
- No pressure toursTour at your own pace with no sales pressure
- Expert guidanceGet insights from our home buying experts
- Exclusive accessSee homes and deals not available elsewhere
Jome is featured in
Plan description
May also be listed on the Kolter Urban website
Information last verified by Jome: Thursday at 9:15 AM (March 19, 2026)
Plan details
- Name:
- Penthouse One East Tower
- Property type:
- Floor plan
- Community:
- Selene Oceanfront Residences
- Builder:
- Kolter Urban
- Size:
- 6,105 sqft
- Stories:
- 1
- Beds:
- 3
- Baths:
- 4.5
Plan features & finishes
- Interior Features:
- Walk-In ClosetShower and Tub in Primary BathFoyerPantry
- Laundry facilities:
- Utility/Laundry Room
- Property amenities:
- Terrace
- Rooms:
- Flex RoomPrimary Bedroom On MainGalleryKitchenPowder RoomMedia RoomGuest RoomFamily RoomOpen Concept FloorplanPrimary Bedroom Downstairs

Get a consultation with our New Homes Expert
- See how your home builds wealth
- Plan your home-buying roadmap
- Discover hidden gems
See the full plan layout
Download the floor plan PDF with room dimensions and home design details.

Instant download, no cost

Community details
Selene Oceanfront Residences
by Kolter Urban, Fort Lauderdale, FL
- 25 homes
- 9 plans
- 1,372 - 6,630 sqft
View Selene Oceanfront Residences details
Want to know more about what's around here?
The Penthouse One East Tower floor plan is part of Selene Oceanfront Residences, a new home community by Kolter Urban, located in Fort Lauderdale, FL. Visit the Selene Oceanfront Residences community page for full neighborhood insights, including nearby schools, shopping, walk & bike-scores, commuting, air quality & natural hazards.

Available homes in Selene Oceanfront Residences
- Home at address 151 N Seabreeze Blvd, Unit 903E, Fort Lauderdale, FL 33304

Home
$1,799,000
- 3 bd
- 3 ba
- 1,680 sqft
151 N Seabreeze Blvd, Unit 903E, Fort Lauderdale, FL 33304
- Home at address 153 N Seabreeze Blvd, Unit 1001S, Fort Lauderdale, FL 33304

Azure
$2,999,000
- 3 bd
- 4 ba
- 2,395 sqft
153 N Seabreeze Blvd, Unit 1001S, Fort Lauderdale, FL 33304
- Home at address 153 N Seabreeze Blvd, Unit 1101 S, Fort Lauderdale, FL 33304

Azure
$2,999,900
- 3 bd
- 4 ba
- 2,395 sqft
153 N Seabreeze Blvd, Unit 1101 S, Fort Lauderdale, FL 33304
- Home at address 153 N Seabreeze Blvd, Unit S-502, Fort Lauderdale, FL 33304

Home
$3,399,000
- 3 bd
- 4 ba
- 3,240 sqft
153 N Seabreeze Blvd, Unit S-502, Fort Lauderdale, FL 33304
- Home at address 151 N Seabreeze Blv, Unit E-1204, Fort Lauderdale, FL 33304

Home
$3,899,000
- 3 bd
- 5 ba
- 2,901 sqft
151 N Seabreeze Blv, Unit E-1204, Fort Lauderdale, FL 33304
- Home at address 151 N Seabreeze Blvd, Unit 1101-E, Fort Lauderdale, FL 33304

Home
$4,299,000
- 3 bd
- 4 ba
- 3,122 sqft
151 N Seabreeze Blvd, Unit 1101-E, Fort Lauderdale, FL 33304
More floor plans in Selene Oceanfront Residences
- View details for Penthouse Two East Tower

Penthouse Two East Tower
Contact for price- 3 bd
- 4.5 ba
- 5,892 sqft

Considering this plan?
Our expert will guide your tour, in-person or virtual
Need more information?
Text or call (888) 545-5198
Financials
Let us help you find your dream home
How many bedrooms are you looking for?
Similar homes nearby
Recently added communities in this area
Nearby communities in Fort Lauderdale
New homes in nearby cities
More New Homes in Fort Lauderdale, FL
- Jome
- New homes search
- Florida
- Miami Metropolitan Area
- Broward County
- Fort Lauderdale
- Selene Oceanfront Residences
- 2591 E Sunrise Blvd, Fort Lauderdale, FL 33304






























