







Book your tour. Save an average of $18,473. We'll handle the rest.
We collect exclusive builder offers, book your tours, and support you from start to housewarming.
- Confirmed tours
- Get matched & compare top deals
- Expert help, no pressure
- No added fees
Estimated value based on Jome data, T&C apply







































- 5 bd
- 4 ba
- 3,393 sqft
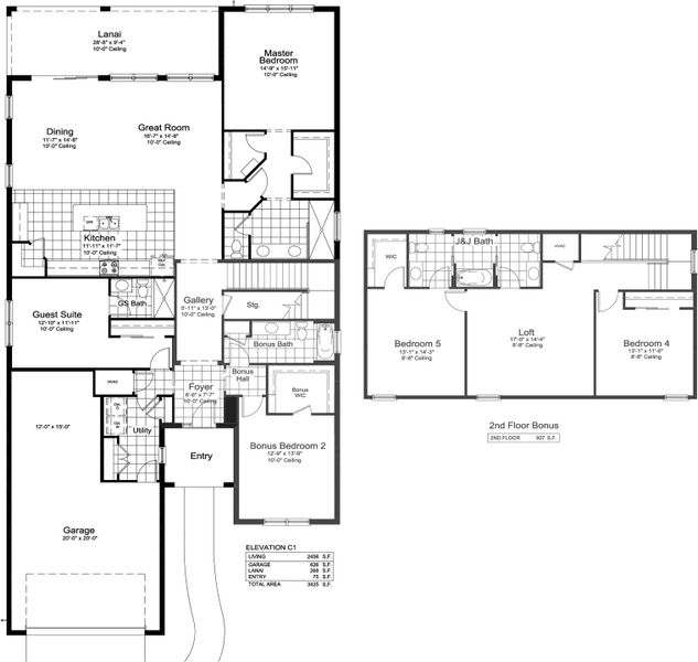
Festival plan in Grand Park by Neal Communities
Visit the community to experience this floor plan
Why tour with Jome?
- No pressure toursTour at your own pace with no sales pressure
- Expert guidanceGet insights from our home buying experts
- Exclusive accessSee homes and deals not available elsewhere
Jome is featured in
Plan description
*Base price does not include the homesite premium or design options.*
The Festival is a 3,393 sq. ft. floor plan made for cultivating new memories and quality time with your family. The foyer and stylish gallery open to the kitchen featuring walk-in pantry and large island, perfect for entertaining as you cook. Whether you cook, enjoy meals or lounge in the dining or great room areas, you will be greeted with a gorgeous lanai view!
The generously designed master suite features a recessed ceiling and an over-sized walk-in closet on one end. Nestled between the bedroom and closet is the master bath, featuring double sink vanity and private water closet. The second floor offers two bedrooms and a Jack & Jill bath connected by a customizable loft area.
May also be listed on the Neal Communities website
Information last verified by Jome: Yesterday at 5:21 PM (April 18, 2026)
Book your tour. Save an average of $18,473. We'll handle the rest.
We collect exclusive builder offers, book your tours, and support you from start to housewarming.
- Confirmed tours
- Get matched & compare top deals
- Expert help, no pressure
- No added fees
Estimated value based on Jome data, T&C apply
Plan details
- Name:
- Festival
- Property type:
- Floor plan
- Community:
- Grand Park
- Builder:
- Neal Communities
- Size:
- 3,393 sqft
- Stories:
- 2
- Beds:
- 5
- Baths:
- 4
- Garage spaces:
- 2
Plan features & finishes
- Garage/Parking:
- Garage

Get a consultation with our New Homes Expert
- See how your home builds wealth
- Plan your home-buying roadmap
- Discover hidden gems

Community details
Grand Park
by Neal Communities, Sarasota, FL
- 14 homes
- 27 plans
- 1,407 - 4,443 sqft
View Grand Park details
Want to know more about what's around here?
The Festival floor plan is part of Grand Park, a new home community by Neal Communities, located in Sarasota, FL. Visit the Grand Park community page for full neighborhood insights, including nearby schools, shopping, walk & bike-scores, commuting, air quality & natural hazards.

Available homes in Grand Park
- Home at address 10034 Crystal Isles Cir, Sarasota, FL 34241

Sea Glass
$886,990
- 5 bd
- 4.5 ba
- 3,483 sqft
10034 Crystal Isles Cir, Sarasota, FL 34241
- Home at address 6333 Lake Woodruff Ct, Sarasota, FL 34241

Santa Catalina
$1,281,990
- 5 bd
- 4 ba
- 3,677 sqft
6333 Lake Woodruff Ct, Sarasota, FL 34241
- Home at address 6321 Lake Woodruff Ct, Sarasota, FL 34241

Azure
$1,333,990
- 5 bd
- 4 ba
- 4,443 sqft
6321 Lake Woodruff Ct, Sarasota, FL 34241
More floor plans in Grand Park

Considering this plan?
Our expert will guide your tour, in-person or virtual
Need more information?
Text or call (888) 545-5198
Financials
Estimated monthly payment
Let us help you find your dream home
How many bedrooms are you looking for?
Similar homes nearby
Recently added communities in this area
Nearby communities in Sarasota
New homes in nearby cities
More New Homes in Sarasota, FL
- Jome
- New homes search
- Florida
- Sarasota County
- Sarasota
- Grand Park
- 10012 Canaveral Cir, Sarasota, FL 34241






























