







Book your tour. Save an average of $18,473. We'll handle the rest.
We collect exclusive builder offers, book your tours, and support you from start to housewarming.
- Confirmed tours
- Get matched & compare top deals
- Expert help, no pressure
- No added fees
Estimated value based on Jome data, T&C apply

































- 4 bd
- 2.5 ba
- 2,428 sqft
Heritage plan in SkySail by Neal Communities
Visit the community to experience this floor plan
Why tour with Jome?
- No pressure toursTour at your own pace with no sales pressure
- Expert guidanceGet insights from our home buying experts
- Exclusive accessSee homes and deals not available elsewhere
Jome is featured in
Plan description
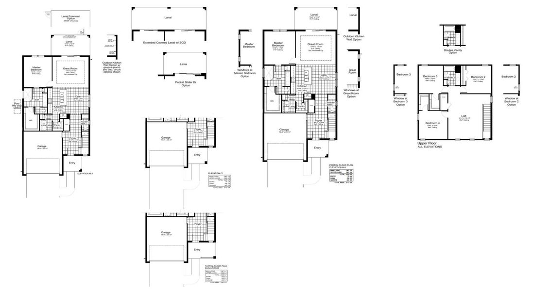
The Heritage is a 2-story, 4 bedroom, 2.5 bath single-family home featuring 2,428 sq.ft. of living space. The first floor holds a beautifully-equipped kitchen and over-sized walk-in pantry, offering plenty of space for culinary creativity. The oversized island and café area are the perfect setting to enjoy your meals or catch up with friends over coffee. The great room features sliding doors, where you can enjoy the view of your lanai in or outdoors. The master bedroom is located on the first floor, with dual sink vanities, a walk-in closet and corner shower.
Upstairs, there is a second bath, located between the second and third bedroom. Two of the bedrooms have walk-in closets, and all are anchored by a spacious loft that you can transform into an area reflecting your personal tastes. A 2-car garage and beautiful foyer complete the home.
May also be listed on the Neal Communities website
Information last verified by Jome: Today at 5:09 PM (April 18, 2026)
Book your tour. Save an average of $18,473. We'll handle the rest.
We collect exclusive builder offers, book your tours, and support you from start to housewarming.
- Confirmed tours
- Get matched & compare top deals
- Expert help, no pressure
- No added fees
Estimated value based on Jome data, T&C apply
Plan details
- Name:
- Heritage
- Property type:
- Floor plan
- Community:
- SkySail
- Builder:
- Neal Communities
- Size:
- 2,428 sqft
- Stories:
- 2
- Beds:
- 4
- Baths:
- 2.5
- Garage spaces:
- 2
Plan features & finishes
- Garage/Parking:
- Garage

Get a consultation with our New Homes Expert
- See how your home builds wealth
- Plan your home-buying roadmap
- Discover hidden gems

Community details
SkySail
by Neal Communities, Naples, FL
- 12 homes
- 26 plans
- 1,507 - 3,677 sqft
View SkySail details
Want to know more about what's around here?
The Heritage floor plan is part of SkySail, a new home community by Neal Communities, located in Naples, FL. Visit the SkySail community page for full neighborhood insights, including nearby schools, shopping, walk & bike-scores, commuting, air quality & natural hazards.

Available homes in SkySail
- Home at address 4235 Pegasus Wy, Naples, FL 34120

Lighthouse
Savings$739,349
- 4 bd
- 3 ba
- 2,601 sqft
4235 Pegasus Wy, Naples, FL 34120
- Home at address 4243 Pegasus Wy, Naples, FL 34120

Artistry
Savings$772,797
- 4 bd
- 3 ba
- 3,486 sqft
4243 Pegasus Wy, Naples, FL 34120
More floor plans in SkySail

Considering this plan?
Our expert will guide your tour, in-person or virtual
Need more information?
Text or call (888) 545-5198
Financials
Estimated monthly payment
Let us help you find your dream home
How many bedrooms are you looking for?
Similar homes nearby
Recently added communities in this area
Nearby communities in Naples
New homes in nearby cities
More New Homes in Naples, FL
- Jome
- New homes search
- Florida
- Collier County
- Naples
- SkySail
- 4056 Skysail Dr, Naples, FL 34120
































