








Book your tour. Save an average of $18,473. We'll handle the rest.
We collect exclusive builder offers, book your tours, and support you from start to housewarming.
- Confirmed tours
- Get matched & compare top deals
- Expert help, no pressure
- No added fees
Estimated value based on Jome data, T&C apply



- 3 bd
- 2 ba
- 1,928 sqft
Isla plan in Avalon Park Wesley Chapel Single Family Homes by Stanley Martin Homes
Visit the community to experience this floor plan
Why tour with Jome?
- No pressure toursTour at your own pace with no sales pressure
- Expert guidanceGet insights from our home buying experts
- Exclusive accessSee homes and deals not available elsewhere
Jome is featured in
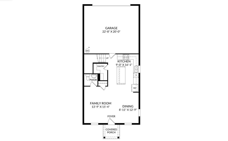
Plan description
May also be listed on the Stanley Martin Homes website
Information last verified by Jome: Today at 8:15 AM (April 22, 2026)
Plan details
- Name:
- Isla
- Property type:
- Floor plan
- Builder:
- Stanley Martin Homes
- Size:
- 1,928 sqft
- Stories:
- 2
- Beds:
- 3
- Baths:
- 2
- Half baths:
- 1
- Garage spaces:
- 2
Plan features & finishes
- Garage/Parking:
- GarageAttached Garage
- Interior Features:
- Walk-In ClosetFoyerPantryStorage
- Kitchen:
- Kitchen Island
- Laundry facilities:
- Utility/Laundry Room
- Property amenities:
- Porch
- Rooms:
- Flex RoomKitchenPowder RoomDining RoomFamily RoomOpen Concept FloorplanPrimary Bedroom Upstairs
- Upgrade Options:
- Tray CeilingGourmet KitchenAlternate Primary BathShower in Primary BathExtra Bedroom

Get a consultation with our New Homes Expert
- See how your home builds wealth
- Plan your home-buying roadmap
- Discover hidden gems
See the full plan layout
Download the floor plan PDF with room dimensions and home design details.

Instant download, no cost

Community details
Avalon Park Wesley Chapel Single Family Homes
by Stanley Martin Homes, Wesley Chapel, FL
- 8 homes
- 5 plans
- 1,496 - 2,202 sqft
View Avalon Park Wesley Chapel Single Family Homes details
Want to know more about what's around here?
The Isla floor plan is part of Avalon Park Wesley Chapel Single Family Homes, a new home community by Stanley Martin Homes, located in Wesley Chapel, FL. Visit the Avalon Park Wesley Chapel Single Family Homes community page for full neighborhood insights, including nearby schools, shopping, walk & bike-scores, commuting, air quality & natural hazards.

Available homes in Avalon Park Wesley Chapel Single Family Homes
- Home at address 4686 Inner World Ln, Wesley Chapel, FL 33545

Logan
$337,600
- 3 bd
- 2 ba
- 1,496 sqft
4686 Inner World Ln, Wesley Chapel, FL 33545
- Home at address 4712 Inner World Ln, Wesley Chapel, FL 33545

Logan
$342,595
- 3 bd
- 2 ba
- 1,496 sqft
4712 Inner World Ln, Wesley Chapel, FL 33545
- Home at address 4706 Inner World Ln, Wesley Chapel, FL 33545

Mae
$351,436
- 3 bd
- 2 ba
- 1,639 sqft
4706 Inner World Ln, Wesley Chapel, FL 33545
- Home at address 4726 Inner World Ln, Wesley Chapel, FL 33545

Mae
$356,431
- 3 bd
- 2 ba
- 1,639 sqft
4726 Inner World Ln, Wesley Chapel, FL 33545
- Home at address 4698 Inner World Ln, Wesley Chapel, FL 33545

Newcomb
$376,470
- 3 bd
- 2 ba
- 1,760 sqft
4698 Inner World Ln, Wesley Chapel, FL 33545
- Home at address 4692 Inner World Ln, Wesley Chapel, FL 33545

Overton
$403,600
- 4 bd
- 3 ba
- 2,202 sqft
4692 Inner World Ln, Wesley Chapel, FL 33545
More floor plans in Avalon Park Wesley Chapel Single Family Homes

Considering this plan?
Our expert will guide your tour, in-person or virtual
Need more information?
Text or call (888) 545-5198
Financials
Let us help you find your dream home
How many bedrooms are you looking for?
Similar homes nearby
Recently added communities in this area
Nearby communities in Wesley Chapel
New homes in nearby cities
More New Homes in Wesley Chapel, FL
- Jome
- New homes search
- Florida
- Tampa Bay Area
- Pasco County
- Wesley Chapel
- Avalon Park Wesley Chapel Single Family Homes
- 4738 Inner World Ln, Wesley Chapel, FL 33543



























