








Book your tour. Save an average of $18,473. We'll handle the rest.
We collect exclusive builder offers, book your tours, and support you from start to housewarming.
- Confirmed tours
- Get matched & compare top deals
- Expert help, no pressure
- No added fees
Estimated value based on Jome data, T&C apply






























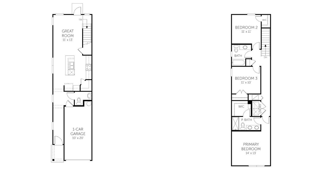
- 3 bd
- 2.5 ba
- 1,395 sqft
Julington I - Townhomes plan in Cary Landing by Dream Finders Homes
Visit the community to experience this floor plan
Why tour with Jome?
- No pressure toursTour at your own pace with no sales pressure
- Expert guidanceGet insights from our home buying experts
- Exclusive accessSee homes and deals not available elsewhere
Jome is featured in
Plan description
May also be listed on the Dream Finders Homes website
Information last verified by Jome: Yesterday at 5:22 AM (April 19, 2026)
Plan details
- Name:
- Julington I - Townhomes
- Property type:
- Floor plan
- Community:
- Cary Landing
- Builder:
- Dream Finders Homes
- Neighborhood:
- Cisco Gardens
- Size:
- 1,395 sqft
- Stories:
- 2
- Beds:
- 3
- Baths:
- 2
- Half baths:
- 1
- Garage spaces:
- 1
Plan features & finishes
- Garage/Parking:
- GarageAttached Garage
- Interior Features:
- Walk-In ClosetPantry
- Kitchen:
- Kitchen Island
- Laundry facilities:
- Utility/Laundry Room
- Rooms:
- Great RoomKitchenOpen Concept FloorplanPrimary Bedroom Upstairs

Get a consultation with our New Homes Expert
- See how your home builds wealth
- Plan your home-buying roadmap
- Discover hidden gems
See the full plan layout
Download the floor plan PDF with room dimensions and home design details.

Instant download, no cost

Community details
Cary Landing
by Dream Finders Homes, Jacksonville, FL
- 7 homes
- 2 plans
- 1,395 - 1,395 sqft
View Cary Landing details
Want to know more about what's around here?
The Julington I - Townhomes floor plan is part of Cary Landing, a new home community by Dream Finders Homes, located in Jacksonville, FL. Visit the Cary Landing community page for full neighborhood insights, including nearby schools, shopping, walk & bike-scores, commuting, air quality & natural hazards.

Homes built from this plan
Available homes in Cary Landing
- Home at address 9179 Tender Ln, Jacksonville, FL 32220

Julington I
Savings$234,490
- 3 bd
- 2.5 ba
- 1,395 sqft
9179 Tender Ln, Jacksonville, FL 32220
More floor plans in Cary Landing
- View details for Julington II - Townhomes

Julington II - Townhomes
Savings$209,990+- 2 bd
- 2.5 ba
- 1,395 sqft

Considering this plan?
Our expert will guide your tour, in-person or virtual
Need more information?
Text or call (888) 545-5198
Financials
Estimated monthly payment
Let us help you find your dream home
How many bedrooms are you looking for?



























