



Book your tour. Save an average of $18,473. We'll handle the rest.
We collect exclusive builder offers, book your tours, and support you from start to housewarming.
- Confirmed tours
- Get matched & compare top deals
- Expert help, no pressure
- No added fees
Estimated value based on Jome data, T&C apply


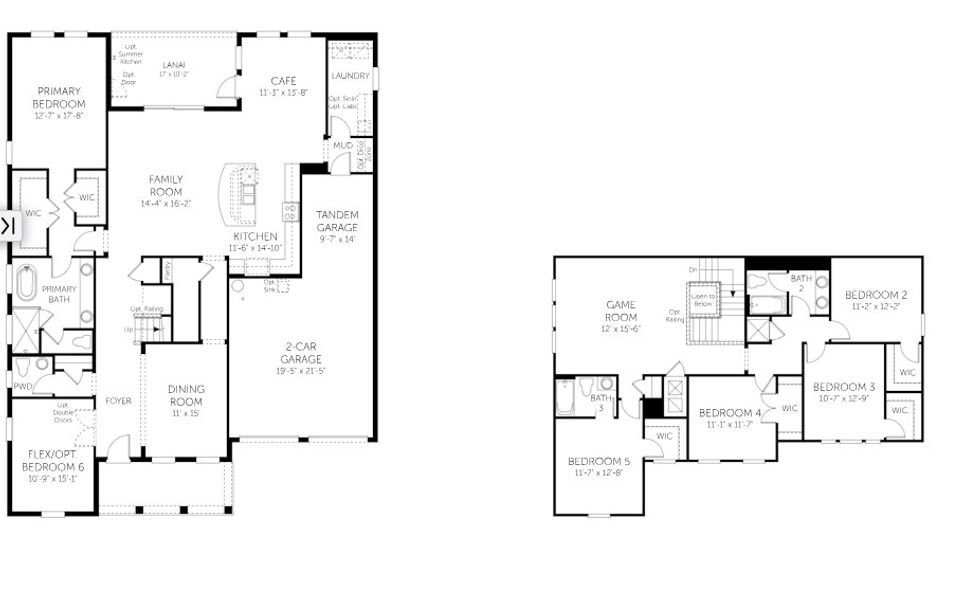
- 5 bd
- 3.5 ba
- 3,550 sqft
Ellington - 19178 plan in Avalon Woods by Dream Finders Homes
Visit the community to experience this floor plan
Why tour with Jome?
- No pressure toursTour at your own pace with no sales pressure
- Expert guidanceGet insights from our home buying experts
- Exclusive accessSee homes and deals not available elsewhere
Jome is featured in
Plan description
May also be listed on the Dream Finders Homes website
Information last verified by Jome: Today at 5:03 AM (May 31, 2026)
Plan details
- Name:
- Ellington - 19178
- Property type:
- Floor plan
- Community:
- Avalon Woods
- Builder:
- Dream Finders Homes
- Collection:
- Avalon Woods 60'
- Lot width (feet):
- 60
- Size:
- 3,550 sqft
- Stories:
- 2
- Beds:
- 5
- Baths:
- 3
- Half baths:
- 1
- Garage spaces:
- 2
Plan features & finishes
- Garage/Parking:
- GarageAttached GarageTandem Parking
- Interior Features:
- Walk-In ClosetFoyerPantry
- Kitchen:
- Kitchen Island
- Laundry facilities:
- Utility/Laundry Room
- Property amenities:
- Lanai
- Rooms:
- Flex RoomPrimary Bedroom On MainKitchenGame RoomMudroomDining RoomFamily RoomBreakfast AreaOpen Concept FloorplanPrimary Bedroom Downstairs
- Upgrade Options:
- Gourmet KitchenSliding Glass DoorsAlternate Primary BathAlternate ShowerExtra BathroomExtra BedroomExtended Lanai

Get a consultation with our New Homes Expert
- See how your home builds wealth
- Plan your home-buying roadmap
- Discover hidden gems
See the full plan layout
Download the floor plan PDF with room dimensions and home design details.

Instant download, no cost

Community details
Avalon Woods
by Dream Finders Homes, Winter Garden, FL
- 12 homes
- 16 plans
- 1,772 - 4,024 sqft
View Avalon Woods details
Want to know more about what's around here?
The Ellington - 19178 floor plan is part of Avalon Woods, a new home community by Dream Finders Homes, located in Winter Garden, FL. Visit the Avalon Woods community page for full neighborhood insights, including nearby schools, shopping, walk & bike-scores, commuting, air quality & natural hazards.

Homes built from this plan
Available homes in Avalon Woods
- Home at address 15136 Tea Tree Dr, Winter Garden, FL 34787

Tidewater
Avalon Woods 60'
$959,647
- 6 bd
- 4.5 ba
- 3,543 sqft
15136 Tea Tree Dr, Winter Garden, FL 34787
- Home at address 15280 Maritime Pine Dr, Winter Garden, FL 34787

Ellington
Avalon Woods 60'
$988,538
- 5 bd
- 3.5 ba
- 3,550 sqft
15280 Maritime Pine Dr, Winter Garden, FL 34787
More floor plans in Avalon Woods

Considering this plan?
Our expert will guide your tour, in-person or virtual
Need more information?
Text or call (888) 545-5198
Financials
Estimated monthly payment
Let us help you find your dream home
How many bedrooms are you looking for?






























