


Book your tour. Save an average of $18,473. We'll handle the rest.
We collect exclusive builder offers, book your tours, and support you from start to housewarming.
- Confirmed tours
- Get matched & compare top deals
- Expert help, no pressure
- No added fees
Estimated value based on Jome data, T&C apply



- 4 bd
- 3.5 ba
- 3,234 sqft
Brooklyn - Elite Series | 60' Wide Lots plan in Veranda Bay by ICI Homes
Visit the community to experience this floor plan
Why tour with Jome?
- No pressure toursTour at your own pace with no sales pressure
- Expert guidanceGet insights from our home buying experts
- Exclusive accessSee homes and deals not available elsewhere
Jome is featured in
Plan description
May also be listed on the ICI Homes website
Information last verified by Jome: Today at 3:58 PM (April 19, 2026)
Plan details
- Name:
- Brooklyn - Elite Series | 60' Wide Lots
- Property type:
- Floor plan
- Community:
- Veranda Bay
- Builder:
- ICI Homes
- Lot width (feet):
- 60
- Size:
- 3,234 sqft
- Stories:
- 2
- Beds:
- 4
- Baths:
- 3.5
- Garage spaces:
- 3
- HERS index:
- 64
Plan features & finishes
- Garage/Parking:
- GarageAttached Garage
- Interior Features:
- Walk-In ClosetFoyerPantryLoft
- Laundry facilities:
- Utility/Laundry Room
- Property amenities:
- Lanai
- Rooms:
- Flex RoomGreat RoomKitchenGame RoomDining RoomLiving RoomOpen Concept Floorplan
- Upgrade Options:
- Tray CeilingOffice/StudySliding Glass DoorsLaundry SinkExtra BedroomExtended LanaiPool Bath

Get a consultation with our New Homes Expert
- See how your home builds wealth
- Plan your home-buying roadmap
- Discover hidden gems
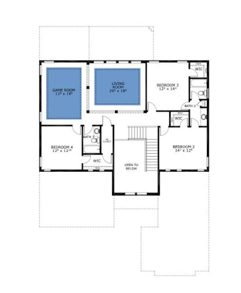
See the full plan layout
Download the floor plan PDF with room dimensions and home design details.

Instant download, no cost

Community details
Veranda Bay
by ICI Homes, Flagler Beach, FL
- 3 homes
- 18 plans
- 2,258 - 3,999 sqft
View Veranda Bay details
Community amenities
- Office/Study
Want to know more about what's around here?
The Brooklyn - Elite Series | 60' Wide Lots floor plan is part of Veranda Bay, a new home community by ICI Homes, located in Flagler Beach, FL. Visit the Veranda Bay community page for full neighborhood insights, including nearby schools, shopping, walk & bike-scores, commuting, air quality & natural hazards.

Available homes in Veranda Bay
- Home at address 29 Coronado Rd, Flagler Beach, FL 32136

Home
$1,249,000
- 4 bd
- 4 ba
- 2,813 sqft
29 Coronado Rd, Flagler Beach, FL 32136
- Home at address 85 Coronado Rd, Flagler Beach, FL 32136

Vista Costera - Classic Series | 50' Wide Lots
$1,999,990
- 4 bd
- 3.5 ba
- 3,938 sqft
85 Coronado Rd, Flagler Beach, FL 32136
More floor plans in Veranda Bay
- View details for Monica - Pinnacle Series | 80' Wide Lots

Monica - Pinnacle Series | 80' Wide Lots
Contact for price- 4 bd
- 4.5 ba
- 3,495 sqft
- View details for Palos Verdes - Elite Series | 60' Wide Lots

Palos Verdes - Elite Series | 60' Wide Lots
Contact for price- 4 bd
- 3.5 ba
- 3,196 sqft

Considering this plan?
Our expert will guide your tour, in-person or virtual
Need more information?
Text or call (888) 545-5198
Financials
Let us help you find your dream home
How many bedrooms are you looking for?
Similar homes nearby
Recently added communities in this area
Nearby communities in Flagler Beach
New homes in nearby cities
More New Homes in Flagler Beach, FL
- Jome
- New homes search
- Florida
- Jacksonville Metropolitan Area
- Flagler County
- Flagler Beach
- Veranda Bay
- 85 Coronado Rd, Flagler Beach, FL 32136





























