




- 3 bd
- 2 ba
- 1,239 sqft
LAYTON plan in LaBelle Homes by D.R. Horton
New Homes for Sale Near 4410 Lee Blvd, Lehigh Acres, FL 33971
About this Plan
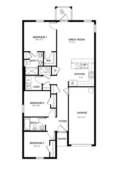
The Layton floorplan in LaBelle, FL is a one-story single-family home with three bedrooms and a one-car garage. Every inch of this 1,239 square foot home is thoughtfully utilized to enhance the home’s grand feel.
When you first enter the home, you enter a long foyer hallway with two bedrooms that share a bathroom and a separate laundry room with two closets nearby for storage. The foyer opens into the open concept main living space in the home, including the great room and the kitchen. The kitchen is appointed with quartz countertops, stainless steel appliances, shaker-style cabinets, and a peninsula perfect for bar-style dining.
The primary suite offers a peaceful sanctuary away from the rest, nestled in the back of the home. With a spacious walk-in closet and en suite bathroom with dual sink vanity and linen closet, you will truly feel right at home.
May also be listed on the D.R. Horton website
Information last verified by Jome: Monday at 12:44 AM (August 18, 2025)
Plan details
- Name:
- LAYTON
- Property status:
- Sold
- Size:
- 1,239 sqft
- Stories:
- 1
- Beds:
- 3
- Baths:
- 2
- Garage spaces:
- 1
Plan features & finishes
- Garage/Parking:
- GarageAttached Garage
- Interior Features:
- Walk-In ClosetFoyerPantry
- Kitchen:
- Stainless Steel AppliancesQuartz countertop
- Laundry facilities:
- Utility/Laundry Room
- Property amenities:
- Lanai
- Rooms:
- Primary Bedroom On MainKitchenFamily RoomOpen Concept FloorplanPrimary Bedroom Downstairs

Community details
LaBelle Homes
by D.R. Horton, Lehigh Acres, FL
- 5 homes
- 3 plans
- 1,389 - 1,828 sqft
View LaBelle Homes details
Want to know more about what's around here?
The LAYTON floor plan is part of LaBelle Homes, a new home community by D.R. Horton, located in Lehigh Acres, FL. Visit the LaBelle Homes community page for full neighborhood insights, including nearby schools, shopping, walk & bike-scores, commuting, air quality & natural hazards.

Available homes in LaBelle Homes
More floor plans in LaBelle Homes
Financials
Nearby communities in Lehigh Acres
Homes in Lehigh Acres by D.R. Horton
Recently added communities in this area
Other Builders in Lehigh Acres, FL
Nearby sold homes
New homes in nearby cities
More New Homes in Lehigh Acres, FL
- Jome
- New homes search
- Florida
- Hendry County
- Lehigh Acres
- LaBelle Homes
- 4410 Lee Blvd, Lehigh Acres, FL 33971






























































