







Book your tour. Save an average of $18,473. We'll handle the rest.
We collect exclusive builder offers, book your tours, and support you from start to housewarming.
- Confirmed tours
- Get matched & compare top deals
- Expert help, no pressure
- No added fees
Estimated value based on Jome data, T&C apply

















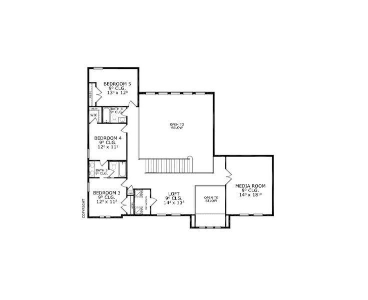
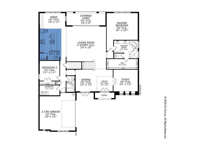
- 5 bd
- 4 ba
- 4,136 sqft
Augusta - Pinnacle Series | 80' Wide Lots plan in SilverLeaf by ICI Homes
Visit the community to experience this floor plan
Why tour with Jome?
- No pressure toursTour at your own pace with no sales pressure
- Expert guidanceGet insights from our home buying experts
- Exclusive accessSee homes and deals not available elsewhere
Jome is featured in
Plan description
May also be listed on the ICI Homes website
Information last verified by Jome: Yesterday at 5:30 PM (April 19, 2026)
Plan details
- Name:
- Augusta - Pinnacle Series | 80' Wide Lots
- Property type:
- Floor plan
- Community:
- SilverLeaf
- Builder:
- ICI Homes
- Collection:
- Courtney Grove
- Lot width (feet):
- 80
- Size:
- 4,136 sqft
- Stories:
- 2
- Beds:
- 5
- Baths:
- 4
- Garage spaces:
- 3
- HERS index:
- 56
Plan features & finishes
- Garage/Parking:
- GarageAttached Garage
- Interior Features:
- Walk-In ClosetFoyerPantryLoft
- Laundry facilities:
- Utility/Laundry Room
- Property amenities:
- Lanai
- Rooms:
- KitchenNookMedia RoomOffice/StudyDining RoomLiving RoomOpen Concept Floorplan
- Upgrade Options:
- BalconyExtended GarageExtra Car GarageOutdoor KitchenExtra Half BathBuilt-in AppliancesButler’s PantryCourtyardCovered LanaiFireplaceExtended Patio

Get a consultation with our New Homes Expert
- See how your home builds wealth
- Plan your home-buying roadmap
- Discover hidden gems
See the full plan layout
Download the floor plan PDF with room dimensions and home design details.

Instant download, no cost

Community details
SilverLeaf at SilverLeaf
by ICI Homes, St. Augustine, FL
- 4 homes
- 21 plans
- 1,872 - 4,972 sqft
View SilverLeaf details
Want to know more about what's around here?
The Augusta - Pinnacle Series | 80' Wide Lots floor plan is part of SilverLeaf, a new home community by ICI Homes, located in St. Augustine, FL. Visit the SilverLeaf community page for full neighborhood insights, including nearby schools, shopping, walk & bike-scores, commuting, air quality & natural hazards.

Available homes in SilverLeaf
- Home at address 483 Courtney Chase Dr, St. Augustine, FL 32092

Serena
Courtney Chase
$705,000
- 5 bd
- 4 ba
- 2,861 sqft
483 Courtney Chase Dr, St. Augustine, FL 32092
More floor plans in SilverLeaf
- View details for Brooke - Regency Series | 70' Wide Lots

Brooke - Regency Series | 70' Wide Lots
Courtney Grove
$894,900+- 5 bd
- 3.5 ba
- 3,610 sqft
- View details for Brooke - Pinnacle Series | 80' Wide Lots

Brooke - Pinnacle Series | 80' Wide Lots
Courtney Grove
$950,900+- 5 bd
- 3.5 ba
- 3,610 sqft

Considering this plan?
Our expert will guide your tour, in-person or virtual
Need more information?
Text or call (888) 545-5198
Financials
Estimated monthly payment
Let us help you find your dream home
How many bedrooms are you looking for?
Similar homes nearby
Recently added communities in this area
Nearby communities in St. Augustine
New homes in nearby cities
More New Homes in St. Augustine, FL
- Jome
- New homes search
- Florida
- Jacksonville Metropolitan Area
- St. Johns County
- St. Augustine
- SilverLeaf
- Courtney Grove
- 26 Night Owl Ct, St. Augustine, FL 32092



















