



Book your tour. Save an average of $18,473. We'll handle the rest.
- Confirmed tours
- Get matched & compare top deals
- Expert help, no pressure
- No added fees
Estimated value based on Jome data, T&C apply
- 4 bd
- 2.5 ba
- 2,146 sqft
The Avery plan in Southern Hills Plantation by Spire Homes
Visit the community to experience this floor plan
Why tour with Jome?
- No pressure toursTour at your own pace with no sales pressure
- Expert guidanceGet insights from our home buying experts
- Exclusive accessSee homes and deals not available elsewhere
Jome is featured in
Plan description
May also be listed on the Spire Homes website
Information last verified by Jome: Thursday at 12:34 PM (November 20, 2025)
Plan highlights
Plan details
- Name:
- The Avery
- Property status:
- Floor plan
- Size:
- 2,146 sqft
- Stories:
- 1
- Beds:
- 4
- Baths:
- 2.5
- Garage spaces:
- 3
Plan features & finishes
- Garage/Parking:
- GarageAttached Garage
- Interior Features:
- Walk-In ClosetFoyerPantry
- Kitchen:
- Kitchen Island
- Laundry facilities:
- Utility/Laundry Room
- Property amenities:
- Lanai
- Rooms:
- Primary Bedroom On MainKitchenDining RoomFamily RoomOpen Concept FloorplanPrimary Bedroom Downstairs
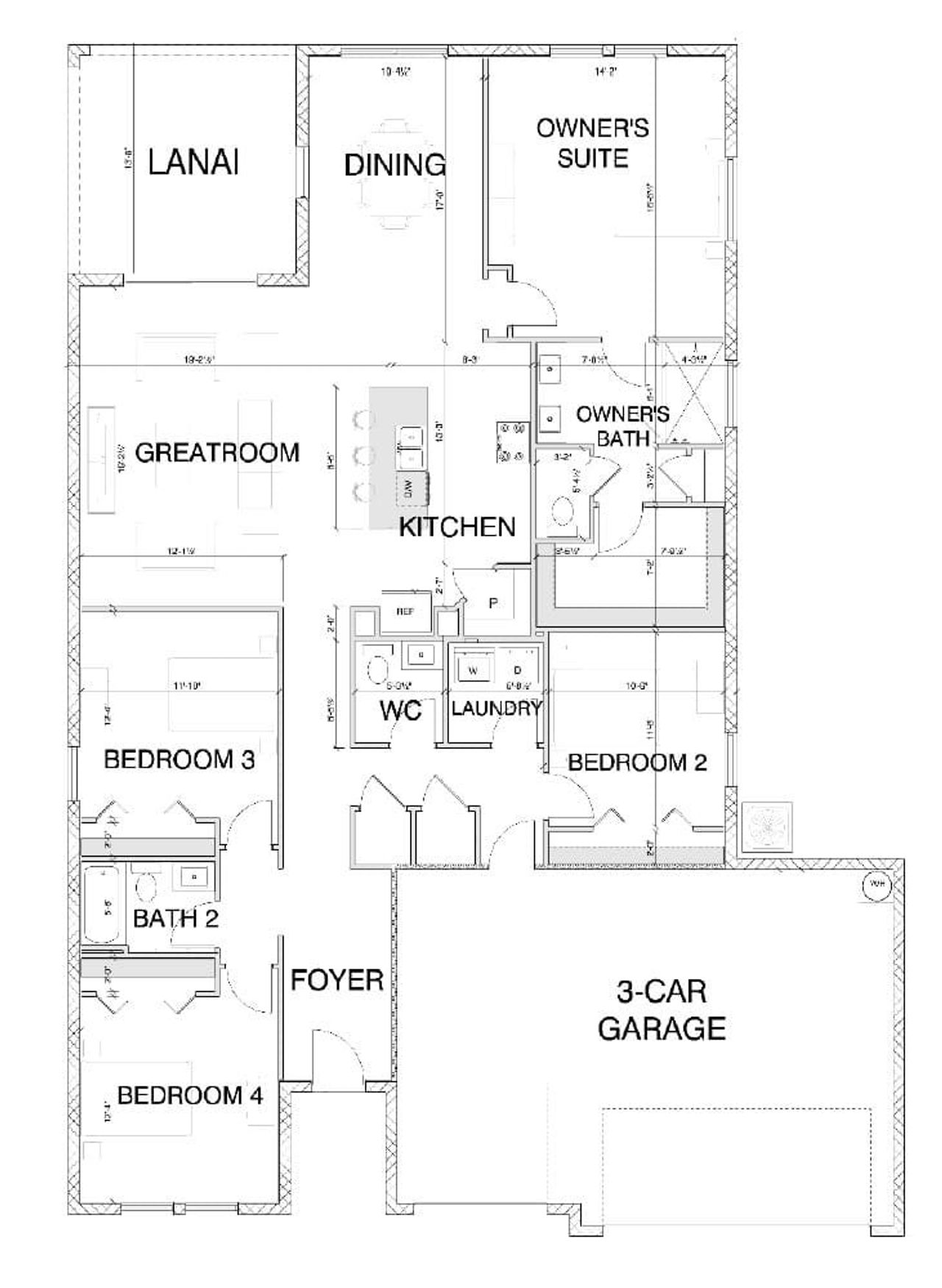
See the full plan layout
Download the floor plan PDF with room dimensions and home design details.

Instant download, no cost

Community details
Southern Hills Plantation at Southern Hills
by Spire Homes, Brooksville, FL
- 8 homes
- 8 plans
- 1,903 - 3,036 sqft
View Southern Hills Plantation details
Want to know more about what's around here?
The The Avery floor plan is part of Southern Hills Plantation, a new home community by Spire Homes, located in Brooksville, FL. Visit the Southern Hills Plantation community page for full neighborhood insights, including nearby schools, shopping, walk & bike-scores, commuting, air quality & natural hazards.

Available homes in Southern Hills Plantation
More floor plans in Southern Hills Plantation

Considering this plan?
Our expert will guide your tour, in-person or virtual
Need more information?
Text or call (888) 486-2818




































