








Book your tour. Save an average of $18,473. We'll handle the rest.
We collect exclusive builder offers, book your tours, and support you from start to housewarming.
- Confirmed tours
- Get matched & compare top deals
- Expert help, no pressure
- No added fees
Estimated value based on Jome data, T&C apply





















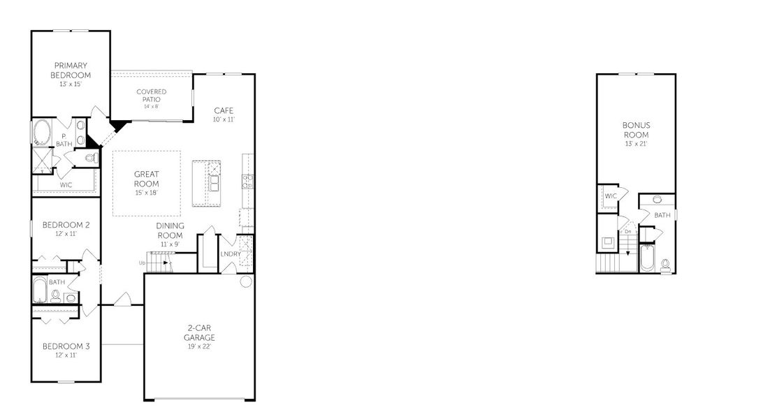
- 4 bd
- 3 ba
- 2,190 sqft
Camden w/ Bonus - 50' Homesites plan in Hyland Trail by Dream Finders Homes
Visit the community to experience this floor plan
Why tour with Jome?
- No pressure toursTour at your own pace with no sales pressure
- Expert guidanceGet insights from our home buying experts
- Exclusive accessSee homes and deals not available elsewhere
Jome is featured in
Plan description
May also be listed on the Dream Finders Homes website
Information last verified by Jome: Today at 5:02 AM (April 15, 2026)
Plan details
- Name:
- Camden w/ Bonus - 50' Homesites
- Property type:
- Floor plan
- Community:
- Hyland Trail
- Builder:
- Dream Finders Homes
- Collection:
- Hyland Trail 50'
- Lot width (feet):
- 50
- Size:
- 2,190 sqft
- Stories:
- 2
- Beds:
- 4
- Baths:
- 3
- Garage spaces:
- 2
Plan features & finishes
- Garage/Parking:
- GarageAttached Garage
- Interior Features:
- Walk-In ClosetPantry
- Kitchen:
- Kitchen Island
- Laundry facilities:
- Utility/Laundry Room
- Property amenities:
- PatioPorch
- Rooms:
- Bonus RoomPrimary Bedroom On MainKitchenDining RoomFamily RoomBreakfast AreaOpen Concept FloorplanPrimary Bedroom Downstairs
- Upgrade Options:
- Bay WindowsGourmet KitchenSliding Glass DoorsAlternate Primary BathGarage BayDouble Doors

Get a consultation with our New Homes Expert
- See how your home builds wealth
- Plan your home-buying roadmap
- Discover hidden gems
See the full plan layout
Download the floor plan PDF with room dimensions and home design details.

Instant download, no cost

Community details
Hyland Trail at Hyland Trail
by Dream Finders Homes, Green Cove Springs, FL
- 10 homes
- 19 plans
- 1,710 - 3,518 sqft
View Hyland Trail details
Want to know more about what's around here?
The Camden w/ Bonus - 50' Homesites floor plan is part of Hyland Trail, a new home community by Dream Finders Homes, located in Green Cove Springs, FL. Visit the Hyland Trail community page for full neighborhood insights, including nearby schools, shopping, walk & bike-scores, commuting, air quality & natural hazards.

Homes built from this plan
Available homes in Hyland Trail
- Home at address 3699 Zydeco, Green Cove Springs, FL 32043

Edison
SavingsHyland Trail 50'
$381,490
- 4 bd
- 2 ba
- 1,914 sqft
3699 Zydeco, Green Cove Springs, FL 32043
- Home at address 3312 Willowleaf Ln, Green Cove Springs, FL 32043

Camden
SavingsHyland Trail 50'
$397,490
- 4 bd
- 3 ba
- 2,190 sqft
3312 Willowleaf Ln, Green Cove Springs, FL 32043
- Home at address 3624 Zydeco, Green Cove Springs, FL 32043

Driftwood
SavingsHyland Trail 50'
$402,490
- 4 bd
- 4 ba
- 2,423 sqft
3624 Zydeco, Green Cove Springs, FL 32043
- Home at address 3501 Americana Dr, Green Cove Springs, FL 32043

Edison II
SavingsHyland Trail 50'
$409,990
- 5 bd
- 3 ba
- 2,289 sqft
3501 Americana Dr, Green Cove Springs, FL 32043
- Home at address 3322 Willowleaf Ln, Green Cove Springs, FL 32043

Fleming II
SavingsHyland Trail 60'
$421,990
- 5 bd
- 4 ba
- 2,681 sqft
3322 Willowleaf Ln, Green Cove Springs, FL 32043
- Home at address 3439 Americana Dr, Green Cove Springs, FL 32043

St Johns
SavingsHyland Trail 50'
$462,218
- 5 bd
- 3.5 ba
- 2,956 sqft
3439 Americana Dr, Green Cove Springs, FL 32043
More floor plans in Hyland Trail
- View details for Newport - 50' Homesites

Newport - 50' Homesites
SavingsHyland Trail 50'
$345,990+- 4 bd
- 2 ba
- 1,880 sqft
- View details for Edison - 50' Homesites

Edison - 50' Homesites
SavingsHyland Trail 50'
$349,990+- 4 bd
- 2 ba
- 1,908 sqft

Considering this plan?
Our expert will guide your tour, in-person or virtual
Need more information?
Text or call (888) 545-5198
Financials
Estimated monthly payment
Let us help you find your dream home
How many bedrooms are you looking for?
Similar homes nearby
Recently added communities in this area
Nearby communities in Green Cove Springs
New homes in nearby cities
More New Homes in Green Cove Springs, FL
- Jome
- New homes search
- Florida
- Jacksonville Metropolitan Area
- Clay County
- Green Cove Springs
- Hyland Trail
- Hyland Trail 50'
- 3510 Zydeco Lp, Green Cove Springs, FL 32043






























