

Book your tour. Save an average of $18,473. We'll handle the rest.
We collect exclusive builder offers, book your tours, and support you from start to housewarming.
- Confirmed tours
- Get matched & compare top deals
- Expert help, no pressure
- No added fees
Estimated value based on Jome data, T&C apply
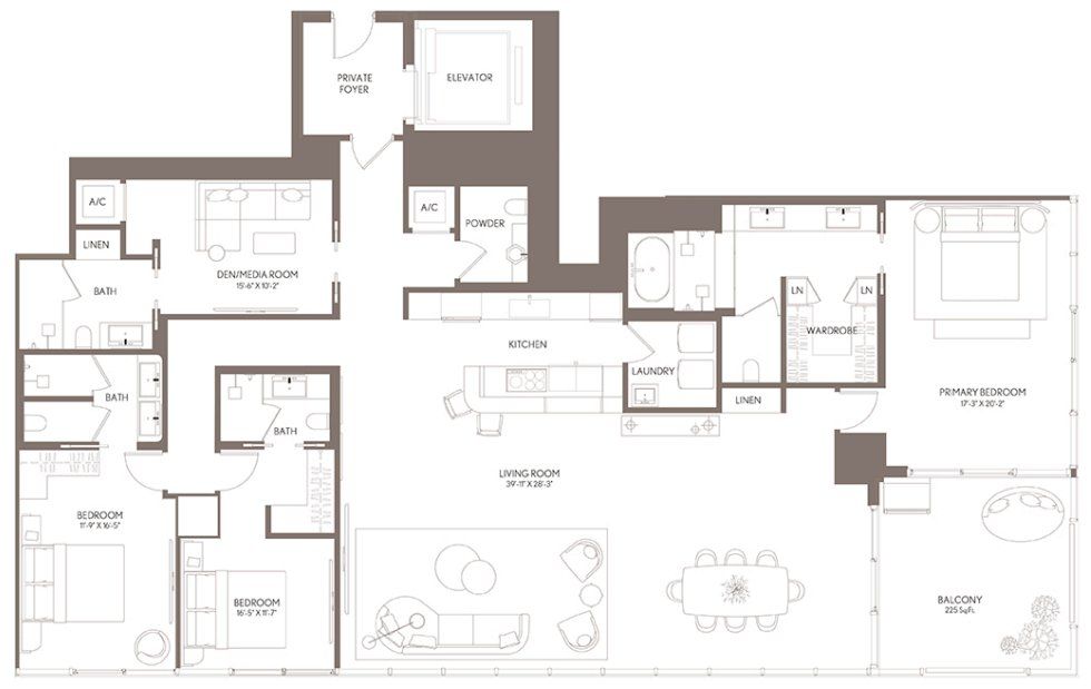
- 3 bd
- 4.5 ba
- 3,069 sqft
Residence 02 LVL 60-68 plan in Waldorf Astoria Residences Miami by Property Markets Group
Visit the community to experience this floor plan
Why tour with Jome?
- No pressure toursTour at your own pace with no sales pressure
- Expert guidanceGet insights from our home buying experts
- Exclusive accessSee homes and deals not available elsewhere
Jome is featured in
Plan description
May also be listed on the Property Markets Group website
Information last verified by Jome: Wednesday at 3:20 PM (February 25, 2026)
Book your tour. Save an average of $18,473. We'll handle the rest.
We collect exclusive builder offers, book your tours, and support you from start to housewarming.
- Confirmed tours
- Get matched & compare top deals
- Expert help, no pressure
- No added fees
Estimated value based on Jome data, T&C apply
Plan details
- Name:
- Residence 02 LVL 60-68
- Property status:
- Floor plan
- Size:
- 3,069 sqft
- Stories:
- 1
- Beds:
- 3
- Baths:
- 4.5
- Garage spaces:
- 2
Plan features & finishes
- Garage/Parking:
- ParkingGarage
- Interior Features:
- Walk-In ClosetFoyer
- Laundry facilities:
- Utility/Laundry Room
- Property amenities:
- BalconyElevator
- Rooms:
- Primary Bedroom On MainDen RoomPowder RoomLiving RoomPrimary Bedroom Downstairs

Get a consultation with our New Homes Expert
- See how your home builds wealth
- Plan your home-buying roadmap
- Discover hidden gems

Community details
Waldorf Astoria Residences Miami
by Property Markets Group, Miami, FL
- 10 homes
- 25 plans
- 516 - 12,302 sqft
View Waldorf Astoria Residences Miami details
Want to know more about what's around here?
The Residence 02 LVL 60-68 floor plan is part of Waldorf Astoria Residences Miami, a new home community by Property Markets Group, located in Miami, FL. Visit the Waldorf Astoria Residences Miami community page for full neighborhood insights, including nearby schools, shopping, walk & bike-scores, commuting, air quality & natural hazards.

Available homes in Waldorf Astoria Residences Miami
- Home at address 300 Biscayne Blvd, Unit 7501, Miami, FL 33131

Residence 01 LVL 75
$6,655,200
- 3 bd
- 3.5 ba
- 2,502 sqft
300 Biscayne Blvd, Unit 7501, Miami, FL 33131
- Home at address 300 N Biscayne Blvd, Unit 7803, Miami, FL 33131

Home
$7,657,854
- 3 bd
- 3.5 ba
- 2,838 sqft
300 N Biscayne Blvd, Unit 7803, Miami, FL 33131
- Home at address 300 N Biscayne Blvd, Unit 8502, Miami, FL 33132

Home
$10,701,000
- 4 bd
- 4.5 ba
- 3,542 sqft
300 N Biscayne Blvd, Unit 8502, Miami, FL 33132
- Home at address 300 N Biscayne Blvd, Unit 8702, Miami, FL 33132

Home
$10,789,093
- 4 bd
- 4.5 ba
- 3,795 sqft
300 N Biscayne Blvd, Unit 8702, Miami, FL 33132
- Home at address 300 N Biscayne Blvd, Unit PH 6, Miami, FL 33132

Residence 06
$50,000,000
- 6 bd
- 9.5 ba
- 2,454 sqft
300 N Biscayne Blvd, Unit PH 6, Miami, FL 33132
- Home at address 300 N Biscayne Blvd, Unit PH, Miami, FL 33131

Home
$50,000,000
- 6 bd
- 10 ba
- 12,302 sqft
300 N Biscayne Blvd, Unit PH, Miami, FL 33131
More floor plans in Waldorf Astoria Residences Miami

Considering this plan?
Our expert will guide your tour, in-person or virtual
Need more information?
Text or call (888) 488-9243
Financials
Let us help you find your dream home
How many bedrooms are you looking for?
Similar homes nearby
Recently added communities in this area
Nearby communities in Miami
New homes in nearby cities
More New Homes in Miami, FL
- Jome
- New homes search
- Florida
- Miami Metropolitan Area
- Miami-Dade County
- Miami
- Waldorf Astoria Residences Miami
- 300 Biscayne Blvd, Miami, FL 33131




























