














Book your tour. Save an average of $18,473. We'll handle the rest.
- Confirmed tours
- Get matched & compare top deals
- Expert help, no pressure
- No added fees
Estimated value based on Jome data, T&C apply







- 6 bd
- 10 ba
- 12,302 sqft
300 N Biscayne Blvd, Unit PH, Miami, FL 33131
Why tour with Jome?
- No pressure toursTour at your own pace with no sales pressure
- Expert guidanceGet insights from our home buying experts
- Exclusive accessSee homes and deals not available elsewhere
Jome is featured in
- Condo
- Under construction
- $4064.38/sqft
- $3,996/monthly HOA
Home description
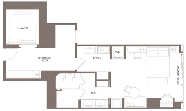
A Legacy Penthouse. Nestled atop Miami's most iconic tower sits the limited penthouse collection at Waldorf Astoria. These residences are completely adorned with the most pristine and luxurious touches synonymous with Waldorf Astoria's legacy. Every detail has been reimagined for a home that exceeds even the highest of expectations. PLEASE SEE ATTACHMENTS FOR FLOORPLAN AND BROCHURE!
PMG Residential LLC, MLS A11657466
May also be listed on the Property Markets Group website
Information last verified by Jome: Today at 12:04 AM (December 19, 2025)
Home highlights
Authentic Cuban‑American hub with live music, murals, cafés and street festivals in Miami’s cultural core.
Book your tour. Save an average of $18,473. We'll handle the rest.
We collect exclusive builder offers, book your tours, and support you from start to housewarming.
- Confirmed tours
- Get matched & compare top deals
- Expert help, no pressure
- No added fees
Estimated value based on Jome data, T&C apply
Home details
- Property status:
- Under construction
- Neighborhood:
- Downtown
- Size:
- 12,302 sqft
- Stories:
- 2
- Beds:
- 6
- Baths:
- 10
- Garage spaces:
- 5
- Facing direction:
- Northeast
Construction details
- Builder Name:
- Property Markets Group
- Year Built:
- 2028
Home features & finishes
- Construction Materials:
- Concrete
- Cooling:
- Central Air
- Flooring:
- Ceramic FlooringWood FlooringMarble Flooring
- Garage/Parking:
- Assigned parkingGarageValet Parking
- Interior Features:
- Walk-In ClosetFoyerLibraryStorageSeparate ShowerDouble Vanity
- Kitchen:
- DishwasherMicrowave OvenRefrigeratorKitchen Range
- Laundry facilities:
- DryerWasherUtility/Laundry Room
- Property amenities:
- BalconyElevator
- Rooms:
- Primary Bedroom On MainDen RoomOffice/StudyDining RoomFamily RoomBreakfast AreaPrimary Bedroom Downstairs
- Security system:
- Fire Sprinkler SystemSmoke Detector

Get a consultation with our New Homes Expert
- See how your home builds wealth
- Plan your home-buying roadmap
- Discover hidden gems
Utility information
- Heating:
- Central Heating
- Utilities:
- Other

Community details
Waldorf Astoria Residences Miami
by Property Markets Group, Miami, FL
- 10 homes
- 25 plans
- 516 - 12,302 sqft
View Waldorf Astoria Residences Miami details
Community amenities
- Waterfront View
More homes in Waldorf Astoria Residences Miami
Floor plans in Waldorf Astoria Residences Miami
About the builder - Property Markets Group
Neighborhood
Home address
- City:
- Miami
- County:
- Miami-Dade
- Zip Code:
- 33131
Schools in Dade County School District
- Grades 09-12Chartermater academy bethany0.5 mi25 ne 2 streetna
- Grades 06-12Privateworlded international school0.5 mi848 brickell avena
- Grades PK-KGPrivatetiniciti preschool0.7 mi1221 brickell avena
GreatSchools’ Summary Rating calculation is based on 4 of the school’s themed ratings, including test scores, student/academic progress, college readiness, and equity. This information should only be used as a reference. Jome is not affiliated with GreatSchools and does not endorse or guarantee this information. Please reach out to schools directly to verify all information and enrollment eligibility. Data provided by GreatSchools.org © 2025
Places of interest
Getting around
34 nearby routes: 29 bus, 5 rail, 0 otherAir quality
Noise level
A Soundscore™ rating is a number between 50 (very loud) and 100 (very quiet) that tells you how loud a location is due to environmental noise.
Natural hazards risk
Climate hazards can impact homes and communities, with risks varying by location. These scores reflect the potential impact of natural disasters and climate-related risks on Miami-Dade County
Provided by FEMA

Considering this home?
Our expert will guide your tour, in-person or virtual
Need more information?
Text or call (888) 486-2818
Financials
Estimated monthly payment
Let us help you find your dream home
How many bedrooms are you looking for?
Similar homes nearby
Recently added communities in this area
Nearby communities in Miami
New homes in nearby cities
More New Homes in Miami, FL
PMG Residential LLC, MLS A11657466
IDX information is provided exclusively for personal, non-commercial use, and may not be used for any purpose other than to identify prospective properties consumers may be interested in purchasing. Information is deemed reliable but not guaranteed.
Read moreLast checked Dec 19, 6:20 pm
- Jome
- New homes search
- Florida
- Miami Metropolitan Area
- Miami-Dade County
- Miami
- Waldorf Astoria Residences Miami
- 300 N Biscayne Blvd, Unit PH, Miami, FL 33131

































