














Book your tour. Save an average of $18,473. We'll handle the rest.
We collect exclusive builder offers, book your tours, and support you from start to housewarming.
- Confirmed tours
- Get matched & compare top deals
- Expert help, no pressure
- No added fees
Estimated value based on Jome data, T&C apply


















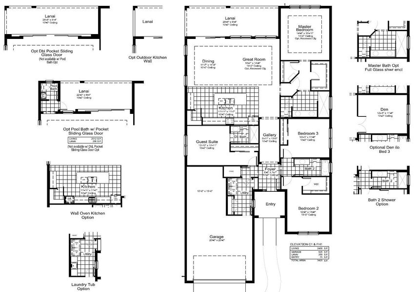
- 4 bd
- 4 ba
- 2,456 sqft
Harvest 3 plan in Canoe Creek by Neal Communities
Visit the community to experience this floor plan
Why tour with Jome?
- No pressure toursTour at your own pace with no sales pressure
- Expert guidanceGet insights from our home buying experts
- Exclusive accessSee homes and deals not available elsewhere
Jome is featured in
Plan description
May also be listed on the Neal Communities website
Information last verified by Jome: Sunday at 4:28 PM (February 15, 2026)
Book your tour. Save an average of $18,473. We'll handle the rest.
We collect exclusive builder offers, book your tours, and support you from start to housewarming.
- Confirmed tours
- Get matched & compare top deals
- Expert help, no pressure
- No added fees
Estimated value based on Jome data, T&C apply
Plan details
- Name:
- Harvest 3
- Property status:
- Floor plan
- Size:
- 2,456 sqft
- Stories:
- 2
- Beds:
- 4
- Baths:
- 4
- Garage spaces:
- 3
Plan features & finishes
- Garage/Parking:
- GarageAttached Garage
- Interior Features:
- Walk-In Closet
- Laundry facilities:
- Utility/Laundry Room
- Property amenities:
- BasementPatio
- Rooms:
- Primary Bedroom On MainKitchenGuest RoomDining RoomFamily RoomLiving RoomBreakfast AreaPrimary Bedroom Downstairs

Get a consultation with our New Homes Expert
- See how your home builds wealth
- Plan your home-buying roadmap
- Discover hidden gems

Community details
Canoe Creek
by Neal Communities, Parrish, FL
- 4 homes
- 12 plans
- 1,407 - 2,956 sqft
View Canoe Creek details
Want to know more about what's around here?
The Harvest 3 floor plan is part of Canoe Creek, a new home community by Neal Communities, located in Parrish, FL. Visit the Canoe Creek community page for full neighborhood insights, including nearby schools, shopping, walk & bike-scores, commuting, air quality & natural hazards.

Homes built from this plan
Available homes in Canoe Creek
- Home at address 4739 Willow Bend Ave, Parrish, FL 34219

Home
$349,900
- 2 bd
- 2 ba
- 1,439 sqft
4739 Willow Bend Ave, Parrish, FL 34219
- Home at address 14560 Skipping Stone Lp, Parrish, FL 34219

Dream 2
$475,990
- 3 bd
- 2 ba
- 1,860 sqft
14560 Skipping Stone Lp, Parrish, FL 34219
- Home at address 14526 Paddlers Xing, Parrish, FL 34219

Home
$520,000
- 3 bd
- 2 ba
- 1,904 sqft
14526 Paddlers Xing, Parrish, FL 34219
- Home at address 14312 Skipping Stone Lp, Parrish, FL 34219

Eventide 4
$549,990
- 2 bd
- 2 ba
- 1,904 sqft
14312 Skipping Stone Lp, Parrish, FL 34219
More floor plans in Canoe Creek

Considering this plan?
Our expert will guide your tour, in-person or virtual
Need more information?
Text or call (888) 488-9243
Financials
Estimated monthly payment
Let us help you find your dream home
How many bedrooms are you looking for?
Similar homes nearby
Recently added communities in this area
Nearby communities in Parrish
New homes in nearby cities
More New Homes in Parrish, FL
- Jome
- New homes search
- Florida
- Tampa Bay Area
- Manatee County
- Parrish
- Canoe Creek
- 13427 Old Creek Ct, Parrish, FL 34219






























