








Book your tour. Save an average of $18,473. We'll handle the rest.
We collect exclusive builder offers, book your tours, and support you from start to housewarming.
- Confirmed tours
- Get matched & compare top deals
- Expert help, no pressure
- No added fees
Estimated value based on Jome data, T&C apply

















- 4 bd
- 3 ba
- 2,190 sqft
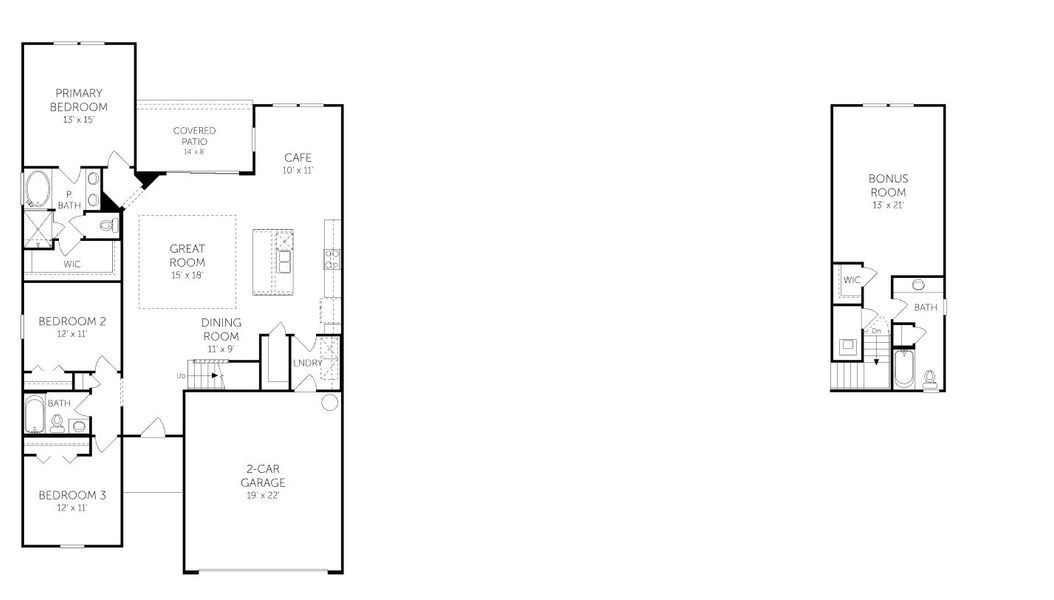
Camden w/ Bonus - 19219 plan in Wilford Preserve by Dream Finders Homes
Visit the community to experience this floor plan
Why tour with Jome?
- No pressure toursTour at your own pace with no sales pressure
- Expert guidanceGet insights from our home buying experts
- Exclusive accessSee homes and deals not available elsewhere
Jome is featured in
Plan description
May also be listed on the Dream Finders Homes website
Information last verified by Jome: Today at 5:03 AM (May 30, 2026)
Plan highlights
Plan details
- Name:
- Camden w/ Bonus - 19219
- Property type:
- Floor plan
- Community:
- Wilford Preserve
- Builder:
- Dream Finders Homes
- Collection:
- Wilford Preserve 50'
- Lot width (feet):
- 50
- Size:
- 2,190 sqft
- Stories:
- 2
- Beds:
- 4
- Baths:
- 3
- Garage spaces:
- 2
Plan features & finishes
- Garage/Parking:
- GarageAttached Garage
- Interior Features:
- Ceiling-HighWalk-In ClosetPantry
- Kitchen:
- Kitchen Island
- Laundry facilities:
- DryerWasherUtility/Laundry Room
- Property amenities:
- PatioSmart Home System
- Rooms:
- Bonus RoomPrimary Bedroom On MainKitchenDining RoomBreakfast AreaOpen Concept FloorplanPrimary Bedroom Downstairs
- Upgrade Options:
- Bay WindowsGourmet KitchenSliding Glass DoorsAlternate Primary BathGarage BayDouble Doors

Get a consultation with our New Homes Expert
- See how your home builds wealth
- Plan your home-buying roadmap
- Discover hidden gems
Utility information
- Utilities:
- Natural Gas on Property
See the full plan layout
Download the floor plan PDF with room dimensions and home design details.

Instant download, no cost

Community details
Wilford Preserve
by Dream Finders Homes, Orange Park, FL
- 7 homes
- 16 plans
- 1,716 - 3,518 sqft
View Wilford Preserve details
Want to know more about what's around here?
The Camden w/ Bonus - 19219 floor plan is part of Wilford Preserve, a new home community by Dream Finders Homes, located in Orange Park, FL. Visit the Wilford Preserve community page for full neighborhood insights, including nearby schools, shopping, walk & bike-scores, commuting, air quality & natural hazards.

Available homes in Wilford Preserve
- Home at address 3157 Gadwall Rd, Orange Park, FL 32073

Camden w/ Bonus
Wilford Preserve 50'
$432,990
- 4 bd
- 3 ba
- 2,190 sqft
3157 Gadwall Rd, Orange Park, FL 32073
- Home at address 3547 Cynthia Ln, Orange Park, FL 32073

Avalon
Wilford Preserve 60'
$509,990
- 4 bd
- 3 ba
- 2,493 sqft
3547 Cynthia Ln, Orange Park, FL 32073
- Home at address 3399 Woodie Run, Orange Park, FL 32073

Fleming II w/ Bonus
Wilford Preserve 60'
$523,990
- 5 bd
- 4 ba
- 2,681 sqft
3399 Woodie Run, Orange Park, FL 32073
- Home at address 3167 Gadwall Rd, Orange Park, FL 32073

St. Johns
Wilford Preserve 50'
$524,990
- 5 bd
- 3.5 ba
- 2,956 sqft
3167 Gadwall Rd, Orange Park, FL 32073
- Home at address 3154 Gadwall Rd, Orange Park, FL 32073

Wellington
Wilford Preserve 50'
$529,990
- 5 bd
- 3.5 ba
- 3,518 sqft
3154 Gadwall Rd, Orange Park, FL 32073
- Home at address 3531 Cynthia Ln, Orange Park, FL 32073

Boca II
Wilford Preserve 60'
$579,990
- 6 bd
- 4 ba
- 3,285 sqft
3531 Cynthia Ln, Orange Park, FL 32073
More floor plans in Wilford Preserve
- View details for Driftwood - 19219

Driftwood - 19219
Wilford Preserve 50'
$379,990+- 5 bd
- 2.5 ba
- 2,423 sqft

Considering this plan?
Our expert will guide your tour, in-person or virtual
Need more information?
Text or call (888) 545-5198
Financials
Estimated monthly payment
Let us help you find your dream home
How many bedrooms are you looking for?
Similar homes nearby
Recently added communities in this area
Nearby communities in Orange Park
New homes in nearby cities
More New Homes in Orange Park, FL
- Jome
- New homes search
- Florida
- Jacksonville Metropolitan Area
- Clay County
- Orange Park
- Wilford Preserve
- Wilford Preserve 50'
- 2639 Firethorn Ave, Orange Park, FL 32073
































