








Book your tour. Save an average of $18,473. We'll handle the rest.
We collect exclusive builder offers, book your tours, and support you from start to housewarming.
- Confirmed tours
- Get matched & compare top deals
- Expert help, no pressure
- No added fees
Estimated value based on Jome data, T&C apply





















- 4 bd
- 3.5 ba
- 4,980 sqft
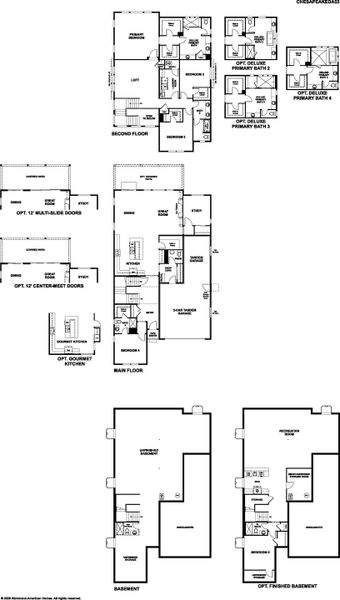
Chesapeake plan in Tanterra by Richmond American Homes
Visit the community to experience this floor plan
Why tour with Jome?
- No pressure toursTour at your own pace with no sales pressure
- Expert guidanceGet insights from our home buying experts
- Exclusive accessSee homes and deals not available elsewhere
Jome is featured in
Plan description
May also be listed on the Richmond American Homes website
Information last verified by Jome: Today at 5:00 PM (May 30, 2026)
Book your tour. Save an average of $18,473. We'll handle the rest.
We collect exclusive builder offers, book your tours, and support you from start to housewarming.
- Confirmed tours
- Get matched & compare top deals
- Expert help, no pressure
- No added fees
Estimated value based on Jome data, T&C apply
Plan details
- Name:
- Chesapeake
- Property type:
- Floor plan
- Community:
- Tanterra
- Builder:
- Richmond American Homes
- Size:
- 4,980 sqft
- Stories:
- 2
- Beds:
- 4
- Baths:
- 3
- Half baths:
- 1
- Garage spaces:
- 3
Plan features & finishes
- Garage/Parking:
- GarageAttached GarageTandem Parking
- Interior Features:
- Walk-In ClosetPantryLoft
- Kitchen:
- Kitchen Island
- Laundry facilities:
- Utility/Laundry Room
- Rooms:
- KitchenPowder RoomDining RoomOpen Concept FloorplanPrimary Bedroom DownstairsPrimary Bedroom Upstairs
- Upgrade Options:
- Gourmet KitchenCovered PatioAlternate Primary BathMulti-Slide Doors

Get a consultation with our New Homes Expert
- See how your home builds wealth
- Plan your home-buying roadmap
- Discover hidden gems

Community details
Tanterra at Tanterra
by Richmond American Homes, Parker, CO
- 1 home
- 5 plans
- 3,560 - 4,980 sqft
View Tanterra details
Want to know more about what's around here?
The Chesapeake floor plan is part of Tanterra, a new home community by Richmond American Homes, located in Parker, CO. Visit the Tanterra community page for full neighborhood insights, including nearby schools, shopping, walk & bike-scores, commuting, air quality & natural hazards.

Homes built from this plan
More floor plans in Tanterra

Considering this plan?
Our expert will guide your tour, in-person or virtual
Need more information?
Text or call (888) 545-5198
Financials
Estimated monthly payment
Let us help you find your dream home
How many bedrooms are you looking for?
Similar homes nearby
Recently added communities in this area
Nearby communities in Parker
New homes in nearby cities
More New Homes in Parker, CO
- Jome
- New homes search
- Colorado
- Denver Metropolitan Area
- Douglas County
- Parker
- Tanterra
- 16883 Mighty Eagle Ave, Parker, CO 80134





















