














Book your tour. Save an average of $18,473. We'll handle the rest.
We collect exclusive builder offers, book your tours, and support you from start to housewarming.
- Confirmed tours
- Get matched & compare top deals
- Expert help, no pressure
- No added fees
Estimated value based on Jome data, T&C apply

















- 3 bd
- 2.5 ba
- 2,448 sqft
Willow - Single Family Homes plan in Wolf Creek Run by Dream Finders Homes
Visit the community to experience this floor plan
Why tour with Jome?
- No pressure toursTour at your own pace with no sales pressure
- Expert guidanceGet insights from our home buying experts
- Exclusive accessSee homes and deals not available elsewhere
Jome is featured in
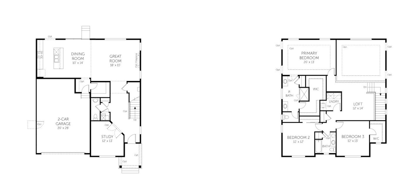
Plan description
May also be listed on the Dream Finders Homes website
Information last verified by Jome: Today at 5:03 AM (February 28, 2026)
Plan details
- Name:
- Willow - Single Family Homes
- Property status:
- Floor plan
- Size:
- 2,448 sqft
- Stories:
- 2
- Beds:
- 3
- Baths:
- 2
- Half baths:
- 1
- Garage spaces:
- 2
Plan features & finishes
- Garage/Parking:
- GarageAttached Garage
- Interior Features:
- Walk-In ClosetFoyerPantryLoft
- Kitchen:
- Kitchen Island
- Laundry facilities:
- Utility/Laundry Room
- Property amenities:
- PatioPorch
- Rooms:
- Great RoomKitchenPowder RoomOffice/StudyDining RoomOpen Concept FloorplanPrimary Bedroom Upstairs
- Upgrade Options:
- BasementFreestanding TubGourmet KitchenCovered PatioSliding Glass DoorsExtra Car GarageExtra BathroomLoftExtra BedroomShower

Get a consultation with our New Homes Expert
- See how your home builds wealth
- Plan your home-buying roadmap
- Discover hidden gems
See the full plan layout
Download the floor plan PDF with room dimensions and home design details.

Instant download, no cost

Community details
Wolf Creek Run
by Dream Finders Homes, Strasburg, CO
- 8 homes
- 8 plans
- 1,700 - 2,944 sqft
View Wolf Creek Run details
Want to know more about what's around here?
The Willow - Single Family Homes floor plan is part of Wolf Creek Run, a new home community by Dream Finders Homes, located in Strasburg, CO. Visit the Wolf Creek Run community page for full neighborhood insights, including nearby schools, shopping, walk & bike-scores, commuting, air quality & natural hazards.

Available homes in Wolf Creek Run
- Home at address 55015 E 28Th Pl, Strasburg, CO 80136

Alpine
$444,990
- 3 bd
- 1 ba
- 1,700 sqft
55015 E 28Th Pl, Strasburg, CO 80136
- Home at address 5490 E 27Th Ave, Strasburg, CO 80136

Home
$459,990
- 3 bd
- 2 ba
- 1,894 sqft
5490 E 27Th Ave, Strasburg, CO 80136
- Home at address 54960 E 27Th Ave, Strasburg, CO 80136

Silverthorne
$459,990
- 3 bd
- 2 ba
- 1,894 sqft
54960 E 27Th Ave, Strasburg, CO 80136
- Home at address 54950 E 28Th Pl, Strasburg, CO 80136

Silverthorne
$469,990
- 3 bd
- 1 ba
- 1,894 sqft
54950 E 28Th Pl, Strasburg, CO 80136
- Home at address 54955 E 28Th Pl, Strasburg, CO 80136

Rainier
$476,990
- 3 bd
- 2.5 ba
- 2,253 sqft
54955 E 28Th Pl, Strasburg, CO 80136
- Home at address 55025 E 28Th Pl, Strasburg, CO 80136

Sierra
$504,989
- 4 bd
- 2.5 ba
- 2,476 sqft
55025 E 28Th Pl, Strasburg, CO 80136
More floor plans in Wolf Creek Run
- View details for Alpine - Single Family Homes

Alpine - Single Family Homes
$439,990+- 3 bd
- 2 ba
- 1,700 sqft
- View details for Silverthorne - Single Family Homes

Silverthorne - Single Family Homes
$449,990+- 3 bd
- 2 ba
- 1,894 sqft

Considering this plan?
Our expert will guide your tour, in-person or virtual
Need more information?
Text or call (888) 488-9243
Financials
Estimated monthly payment
Let us help you find your dream home
How many bedrooms are you looking for?
Similar homes nearby
Recently added communities in this area
Nearby communities in Strasburg
New homes in nearby cities
More New Homes in Strasburg, CO
- Jome
- New homes search
- Colorado
- Denver Metropolitan Area
- Adams County
- Strasburg
- Wolf Creek Run
- 55043 E 27Th Ave, Strasburg, CO 80136






























