



Book your tour. Save an average of $18,473. We'll handle the rest.
We collect exclusive builder offers, book your tours, and support you from start to housewarming.
- Confirmed tours
- Get matched & compare top deals
- Expert help, no pressure
- No added fees
Estimated value based on Jome data, T&C apply
- 3 bd
- 2.5 ba
- 1,951 sqft
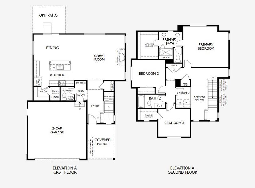
Starwood plan in Cherry Meadows by Risewell Homes
Visit the community to experience this floor plan
Why tour with Jome?
- No pressure toursTour at your own pace with no sales pressure
- Expert guidanceGet insights from our home buying experts
- Exclusive accessSee homes and deals not available elsewhere
Jome is featured in
Plan description
May also be listed on the Risewell Homes website
Information last verified by Jome: Yesterday at 4:47 PM (April 18, 2026)
Plan details
- Name:
- Starwood
- Property type:
- Floor plan
- Community:
- Cherry Meadows
- Builder:
- Risewell Homes
- Size:
- 1,951 sqft
- Stories:
- 2
- Beds:
- 3
- Baths:
- 2.5
- Garage spaces:
- 2
Plan features & finishes
- Garage/Parking:
- GarageAttached Garage
- Interior Features:
- Walk-In ClosetPantry
- Kitchen:
- Kitchen Island
- Laundry facilities:
- Utility/Laundry Room
- Property amenities:
- Porch
- Rooms:
- KitchenPowder RoomMudroomDining RoomFamily RoomOpen Concept FloorplanPrimary Bedroom Upstairs
- Upgrade Options:
- Covered Patio

Get a consultation with our New Homes Expert
- See how your home builds wealth
- Plan your home-buying roadmap
- Discover hidden gems
See the full plan layout
Download the floor plan PDF with room dimensions and home design details.

Instant download, no cost

Community details
Cherry Meadows
by Risewell Homes, Brighton, CO
- 5 homes
- 8 plans
- 1,473 - 2,937 sqft
View Cherry Meadows details
Want to know more about what's around here?
The Starwood floor plan is part of Cherry Meadows, a new home community by Risewell Homes, located in Brighton, CO. Visit the Cherry Meadows community page for full neighborhood insights, including nearby schools, shopping, walk & bike-scores, commuting, air quality & natural hazards.

Homes built from this plan
Available homes in Cherry Meadows
- Home at address 1768 Jennifer St, Brighton, CO 80601

Keystone II
$583,530
- 3 bd
- 1.5 ba
- 1,988 sqft
1768 Jennifer St, Brighton, CO 80601
- Home at address 1782 Jennifer St, Brighton, CO 80601

Telluride
$595,130
- 3 bd
- 2.5 ba
- 2,271 sqft
1782 Jennifer St, Brighton, CO 80601
- Home at address 1726 Jennifer St, Brighton, CO 80601

Jefferson
$615,750
- 3 bd
- 1.5 ba
- 2,235 sqft
1726 Jennifer St, Brighton, CO 80601
- Home at address 1776 Windler St, Brighton, CO 80601

Gunnison
$668,885
- 3 bd
- 2.5 ba
- 2,917 sqft
1776 Windler St, Brighton, CO 80601
More floor plans in Cherry Meadows

Considering this plan?
Our expert will guide your tour, in-person or virtual
Need more information?
Text or call (888) 545-5198
Financials
Estimated monthly payment
Let us help you find your dream home
How many bedrooms are you looking for?
Similar homes nearby
Recently added communities in this area
Nearby communities in Brighton
New homes in nearby cities
More New Homes in Brighton, CO
- Jome
- New homes search
- Colorado
- Denver Metropolitan Area
- Adams County
- Brighton
- Cherry Meadows
- 1751 Zeno St, Brighton, CO 80601



































