






Book your tour. Save an average of $18,473. We'll handle the rest.
We collect exclusive builder offers, book your tours, and support you from start to housewarming.
- Confirmed tours
- Get matched & compare top deals
- Expert help, no pressure
- No added fees
Estimated value based on Jome data, T&C apply



- 5 bd
- 3 ba
- 3,339 sqft
Aspen plan in Country Club Reserve – Fort Collins by View Homes
Visit the community to experience this floor plan
Why tour with Jome?
- No pressure toursTour at your own pace with no sales pressure
- Expert guidanceGet insights from our home buying experts
- Exclusive accessSee homes and deals not available elsewhere
Jome is featured in
Plan description
May also be listed on the View Homes website
Information last verified by Jome: Yesterday at 4:11 PM (April 18, 2026)
Plan details
- Name:
- Aspen
- Property type:
- Floor plan
- Community:
- Country Club Reserve – Fort Collins
- Builder:
- View Homes
- Size:
- 3,339 sqft
- Stories:
- 1
- Beds:
- 5
- Baths:
- 3
- Garage spaces:
- 2
Plan features & finishes
- Garage/Parking:
- GarageAttached Garage
- Interior Features:
- Walk-In ClosetFoyerPantry
- Kitchen:
- Kitchen Island
- Laundry facilities:
- Utility/Laundry Room
- Property amenities:
- BasementPatioPorch
- Rooms:
- Primary Bedroom On MainKitchenDining RoomFamily RoomOpen Concept FloorplanPrimary Bedroom Downstairs
- Upgrade Options:
- Basement

Get a consultation with our New Homes Expert
- See how your home builds wealth
- Plan your home-buying roadmap
- Discover hidden gems
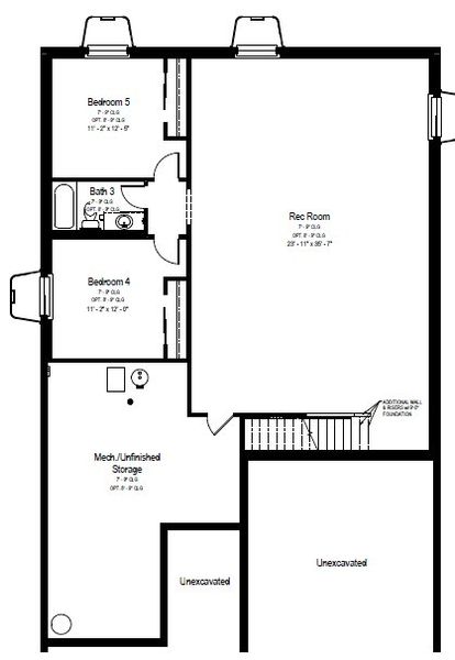
See the full plan layout
Download the floor plan PDF with room dimensions and home design details.

Instant download, no cost

Community details
Country Club Reserve – Fort Collins
by View Homes, Fort Collins, CO
- 3 homes
- 7 plans
- 1,666 - 3,956 sqft
View Country Club Reserve – Fort Collins details
Want to know more about what's around here?
The Aspen floor plan is part of Country Club Reserve – Fort Collins, a new home community by View Homes, located in Fort Collins, CO. Visit the Country Club Reserve – Fort Collins community page for full neighborhood insights, including nearby schools, shopping, walk & bike-scores, commuting, air quality & natural hazards.

Homes built from this plan
Available homes in Country Club Reserve – Fort Collins
- Home at address 1609 Baltusrol Ct, Fort Collins, CO 80524

Nantucket
Savings$849,966
- 6 bd
- 4.5 ba
- 3,956 sqft
1609 Baltusrol Ct, Fort Collins, CO 80524
More floor plans in Country Club Reserve – Fort Collins

Considering this plan?
Our expert will guide your tour, in-person or virtual
Need more information?
Text or call (888) 545-5198
Financials
Estimated monthly payment
Let us help you find your dream home
How many bedrooms are you looking for?
Similar homes nearby
Recently added communities in this area
Nearby communities in Fort Collins
New homes in nearby cities
More New Homes in Fort Collins, CO
- Jome
- New homes search
- Colorado
- Denver Metropolitan Area
- Larimer County
- Fort Collins
- Country Club Reserve – Fort Collins
- 3527 Bethpage Dr, Fort Collins, CO 80524
































