









Book your tour. Save an average of $18,473. We'll handle the rest.
We collect exclusive builder offers, book your tours, and support you from start to housewarming.
- Confirmed tours
- Get matched & compare top deals
- Expert help, no pressure
- No added fees
Estimated value based on Jome data, T&C apply





















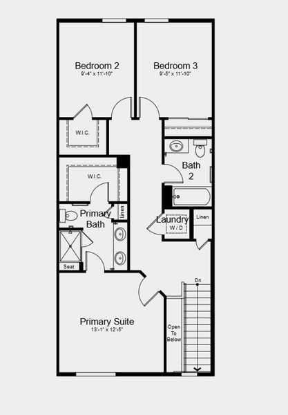
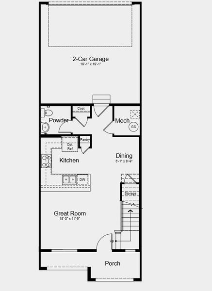
- 3 bd
- 2.5 ba
- 1,371 sqft
Discovery plan in Parterre by Taylor Morrison
Visit the community to experience this floor plan
Why tour with Jome?
- No pressure toursTour at your own pace with no sales pressure
- Expert guidanceGet insights from our home buying experts
- Exclusive accessSee homes and deals not available elsewhere
Jome is featured in
Plan description
May also be listed on the Taylor Morrison website
Information last verified by Jome: Today at 12:45 AM (April 21, 2026)
Plan details
- Name:
- Discovery
- Property type:
- Floor plan
- Community:
- Parterre
- Builder:
- Taylor Morrison
- Collection:
- Parterre Townhomes - The Westerly
- Size:
- 1,371 sqft
- Stories:
- 2
- Beds:
- 3
- Baths:
- 2.5
- Garage spaces:
- 2
Plan features & finishes
- Garage/Parking:
- GarageAttached Garage
- Interior Features:
- Walk-In ClosetStaircases
- Laundry facilities:
- Utility/Laundry Room
- Property amenities:
- FireplacePorch
- Rooms:
- KitchenPowder RoomGuest RoomDining RoomFamily RoomOpen Concept FloorplanPrimary Bedroom Upstairs
- Upgrade Options:
- Powder Room

Get a consultation with our New Homes Expert
- See how your home builds wealth
- Plan your home-buying roadmap
- Discover hidden gems
See the full plan layout
Download the floor plan PDF with room dimensions and home design details.

Instant download, no cost

Community details
Parterre at Parterre
by Taylor Morrison, Thornton, CO
- 9 homes
- 23 plans
- 1,248 - 3,794 sqft
View Parterre details
Want to know more about what's around here?
The Discovery floor plan is part of Parterre, a new home community by Taylor Morrison, located in Thornton, CO. Visit the Parterre community page for full neighborhood insights, including nearby schools, shopping, walk & bike-scores, commuting, air quality & natural hazards.

Homes built from this plan
Available homes in Parterre
- Home at address 6820 Parterre Pkwy N, Unit 5, Thornton, CO 80602

Frontier
SavingsParterre Townhomes - The Westerly
$441,899
- 3 bd
- 2.5 ba
- 1,420 sqft
6820 Parterre Pkwy N, Unit 5, Thornton, CO 80602
- Home at address 6820 Parterre Pkwy N, Unit 1, Thornton, CO 80602

Frontier
SavingsParterre Townhomes - The Westerly
$453,799
- 3 bd
- 2.5 ba
- 1,420 sqft
6820 Parterre Pkwy N, Unit 1, Thornton, CO 80602
- Home at address 6721 E 148Th Dr, Unit 4, Thornton, CO 80602

Frontier
SavingsParterre Townhomes - The Westerly
$454,990
- 3 bd
- 2.5 ba
- 1,420 sqft
6721 E 148Th Dr, Unit 4, Thornton, CO 80602
- Home at address 6820 Parterre Pkwy N, Unit 6, Thornton, CO 80602

Independence
SavingsParterre Townhomes - The Westerly
$457,099
- 3 bd
- 2.5 ba
- 1,611 sqft
6820 Parterre Pkwy N, Unit 6, Thornton, CO 80602
- Home at address 14839 Arbor Blvd W, Thornton, CO 80602

Stella Plus
SavingsParterre Horizon
$573,899
- 4 bd
- 2.5 ba
- 2,122 sqft
14839 Arbor Blvd W, Thornton, CO 80602
- Home at address 14872 Arbor Blvd W, Thornton, CO 80602

Stella
SavingsParterre Horizon
$597,649
- 4 bd
- 2.5 ba
- 1,951 sqft
14872 Arbor Blvd W, Thornton, CO 80602
More floor plans in Parterre
- View details for Frontier

Frontier
SavingsParterre Townhomes - The Westerly
$429,990+- 3 bd
- 2.5 ba
- 1,420 sqft
- View details for Independence

Independence
SavingsParterre Townhomes - The Westerly
$448,990+- 3 bd
- 2.5 ba
- 1,611 sqft

Considering this plan?
Our expert will guide your tour, in-person or virtual
Need more information?
Text or call (888) 545-5198
Financials
Estimated monthly payment
Let us help you find your dream home
How many bedrooms are you looking for?
Similar homes nearby
Recently added communities in this area
Nearby communities in Thornton
New homes in nearby cities
More New Homes in Thornton, CO
- Jome
- New homes search
- Colorado
- Denver Metropolitan Area
- Adams County
- Thornton
- Parterre
- Parterre Townhomes - The Westerly
- 14885 Arbor Blvd W, Thornton, CO 80602


































