

Book your tour. Save an average of $18,473. We'll handle the rest.
We collect exclusive builder offers, book your tours, and support you from start to housewarming.
- Confirmed tours
- Get matched & compare top deals
- Expert help, no pressure
- No added fees
Estimated value based on Jome data, T&C apply
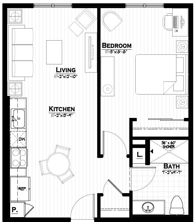
- 1 bd
- 1 ba
- 647 sqft
Sunflower plan in Trailhead by Metropolitan Homes
Visit the community to experience this floor plan
Why tour with Jome?
- No pressure toursTour at your own pace with no sales pressure
- Expert guidanceGet insights from our home buying experts
- Exclusive accessSee homes and deals not available elsewhere
Jome is featured in
Plan description
May also be listed on the Metropolitan Homes website
Information last verified by Jome: Friday at 1:18 PM (November 28, 2025)
Plan details
- Name:
- Sunflower
- Property type:
- Floor plan
- Community:
- Trailhead
- Builder:
- Metropolitan Homes
- Size:
- 647 sqft
- Stories:
- 1
- Beds:
- 1
- Baths:
- 1
Plan features & finishes
- Interior Features:
- Walk-In ClosetPantry
- Laundry facilities:
- Utility/Laundry Room
- Rooms:
- Primary Bedroom On MainKitchenLiving RoomOpen Concept FloorplanPrimary Bedroom Downstairs

Get a consultation with our New Homes Expert
- See how your home builds wealth
- Plan your home-buying roadmap
- Discover hidden gems
See the full plan layout
Download the floor plan PDF with room dimensions and home design details.

Instant download, no cost

Community details
Trailhead
by Metropolitan Homes, Littleton, CO
- 7 plans
- 488 - 1,018 sqft
View Trailhead details
Want to know more about what's around here?
The Sunflower floor plan is part of Trailhead, a new home community by Metropolitan Homes, located in Littleton, CO. Visit the Trailhead community page for full neighborhood insights, including nearby schools, shopping, walk & bike-scores, commuting, air quality & natural hazards.

More floor plans in Trailhead

Considering this plan?
Our expert will guide your tour, in-person or virtual
Need more information?
Text or call (888) 488-9243
Financials
Let us help you find your dream home
How many bedrooms are you looking for?
Similar homes nearby
Recently added communities in this area
Nearby communities in Littleton
New homes in nearby cities
More New Homes in Littleton, CO
- Jome
- New homes search
- Colorado
- Denver Metropolitan Area
- Jefferson County
- Littleton
- Trailhead
- 12983 W Ida Ave, Littleton, CO 80127






























