













Book your tour. Save an average of $18,473. We'll handle the rest.
We collect exclusive builder offers, book your tours, and support you from start to housewarming.
- Confirmed tours
- Get matched & compare top deals
- Expert help, no pressure
- No added fees
Estimated value based on Jome data, T&C apply





- 4 bd
- 2.5 ba
- 3,100 sqft
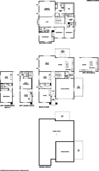
Ammolite plan in Brighton Crossings by Richmond American Homes
Visit the community to experience this floor plan
Why tour with Jome?
- No pressure toursTour at your own pace with no sales pressure
- Expert guidanceGet insights from our home buying experts
- Exclusive accessSee homes and deals not available elsewhere
Jome is featured in
Plan description
May also be listed on the Richmond American Homes website
Information last verified by Jome: Today at 5:00 PM (February 27, 2026)
Book your tour. Save an average of $18,473. We'll handle the rest.
We collect exclusive builder offers, book your tours, and support you from start to housewarming.
- Confirmed tours
- Get matched & compare top deals
- Expert help, no pressure
- No added fees
Estimated value based on Jome data, T&C apply
Plan details
- Name:
- Ammolite
- Property status:
- Floor plan
- Size:
- 3,100 sqft
- Stories:
- 2
- Beds:
- 4
- Baths:
- 2
- Half baths:
- 1
- Garage spaces:
- 2
Plan features & finishes
- Garage/Parking:
- GarageAttached Garage
- Interior Features:
- Walk-In ClosetPantryStaircasesLoft
- Kitchen:
- Kitchen Island
- Laundry facilities:
- Utility/Laundry Room
- Property amenities:
- Porch
- Rooms:
- Flex RoomKitchenPowder RoomOffice/StudyMudroomDining RoomFamily RoomOpen Concept FloorplanPrimary Bedroom Upstairs

Get a consultation with our New Homes Expert
- See how your home builds wealth
- Plan your home-buying roadmap
- Discover hidden gems

Community details
Brighton Crossings at Brighton Crossings
by Richmond American Homes, Brighton, CO
- 5 homes
- 10 plans
- 1,745 - 3,100 sqft
View Brighton Crossings details
Want to know more about what's around here?
The Ammolite floor plan is part of Brighton Crossings, a new home community by Richmond American Homes, located in Brighton, CO. Visit the Brighton Crossings community page for full neighborhood insights, including nearby schools, shopping, walk & bike-scores, commuting, air quality & natural hazards.

Available homes in Brighton Crossings
- Home at address 4668 Hatcher Dr, Brighton, CO 80601

Alexandrite
$515,000
- 4 bd
- 1.5 ba
- 1,748 sqft
4668 Hatcher Dr, Brighton, CO 80601
- Home at address 376 Lake Granby Ave, Brighton, CO 80601

Palmetto
$612,950
- 4 bd
- 3.5 ba
- 2,700 sqft
376 Lake Granby Ave, Brighton, CO 80601
More floor plans in Brighton Crossings

Considering this plan?
Our expert will guide your tour, in-person or virtual
Need more information?
Text or call (888) 488-9243
Financials
Estimated monthly payment
Let us help you find your dream home
How many bedrooms are you looking for?
Similar homes nearby
Recently added communities in this area
Nearby communities in Brighton
New homes in nearby cities
More New Homes in Brighton, CO
- Jome
- New homes search
- Colorado
- Denver Metropolitan Area
- Adams County
- Brighton
- Brighton Crossings
- 104 Wooten Ave, Brighton, CO 80601






























