

Book your tour. Save an average of $18,473. We'll handle the rest.
We collect exclusive builder offers, book your tours, and support you from start to housewarming.
- Confirmed tours
- Get matched & compare top deals
- Expert help, no pressure
- No added fees
Estimated value based on Jome data, T&C apply
- 1 bd
- 1.5 ba
- 1,124 sqft
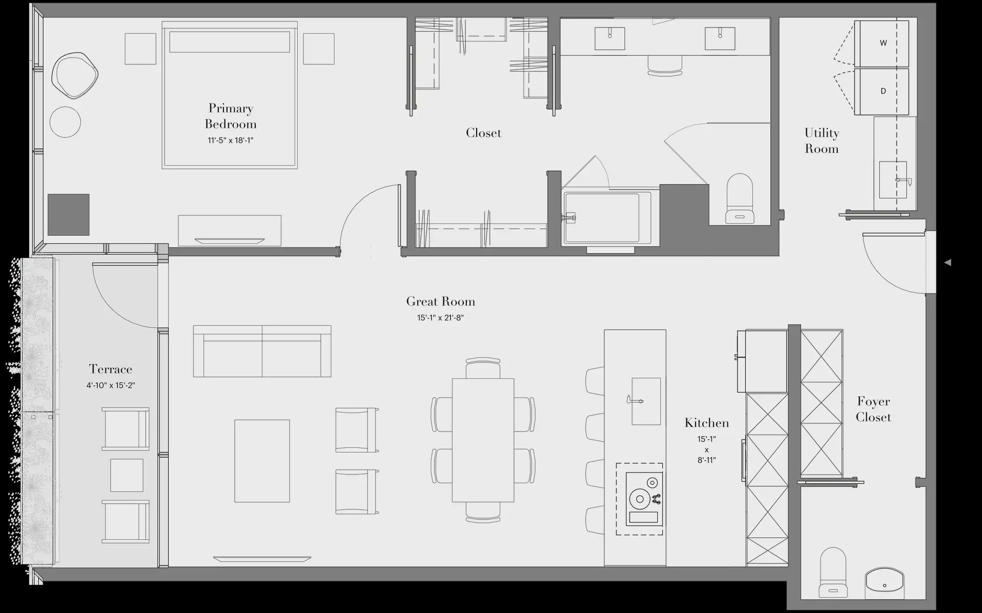
1B-04 plan in Optima McDowell Mountain by Optima Homes
Visit the community to experience this floor plan
Why tour with Jome?
- No pressure toursTour at your own pace with no sales pressure
- Expert guidanceGet insights from our home buying experts
- Exclusive accessSee homes and deals not available elsewhere
Jome is featured in
Plan description
May also be listed on the Optima Homes website
Information last verified by Jome: Thursday at 12:30 PM (January 15, 2026)
Plan details
- Name:
- 1B-04
- Property type:
- Floor plan
- Community:
- Optima McDowell Mountain
- Builder:
- Optima Homes
- Size:
- 1,124 sqft
- Stories:
- 1
- Beds:
- 1
- Baths:
- 1.5
Plan features & finishes
- Interior Features:
- Foyer
- Laundry facilities:
- Utility/Laundry Room
- Property amenities:
- Terrace
- Rooms:
- Primary Bedroom On MainKitchenFamily RoomOpen Concept FloorplanPrimary Bedroom Downstairs

Get a consultation with our New Homes Expert
- See how your home builds wealth
- Plan your home-buying roadmap
- Discover hidden gems
See the full plan layout
Download the floor plan PDF with room dimensions and home design details.

Instant download, no cost

Community details
Optima McDowell Mountain
by Optima Homes, Scottsdale, AZ
- 3 homes
- 28 plans
- 729 - 2,218 sqft
View Optima McDowell Mountain details
Want to know more about what's around here?
The 1B-04 floor plan is part of Optima McDowell Mountain, a new home community by Optima Homes, located in Scottsdale, AZ. Visit the Optima McDowell Mountain community page for full neighborhood insights, including nearby schools, shopping, walk & bike-scores, commuting, air quality & natural hazards.

Available homes in Optima McDowell Mountain
- Home at address 7230 E Mayo Blvd, Unit 5013, Scottsdale, AZ 85255

Home
$1,470,000
- 2 bd
- 2.5 ba
- 1,543 sqft
7230 E Mayo Blvd, Unit 5013, Scottsdale, AZ 85255
- Home at address 7230 E Mayo Blvd, Unit 5006, Scottsdale, AZ 85255

Home
$1,650,000
- 3 bd
- 3 ba
- 1,781 sqft
7230 E Mayo Blvd, Unit 5006, Scottsdale, AZ 85255
- Home at address 7230 E Mayo Blvd, Unit 5015, Scottsdale, AZ 85255

Home
$1,809,000
- 3 bd
- 2.5 ba
- 2,046 sqft
7230 E Mayo Blvd, Unit 5015, Scottsdale, AZ 85255
More floor plans in Optima McDowell Mountain

Considering this plan?
Our expert will guide your tour, in-person or virtual
Need more information?
Text or call (888) 545-5198
Financials
Let us help you find your dream home
How many bedrooms are you looking for?
Similar homes nearby
Recently added communities in this area
Nearby communities in Scottsdale
New homes in nearby cities
More New Homes in Scottsdale, AZ
- Jome
- New homes search
- Arizona
- Phoenix Metropolitan Area
- Maricopa County
- Scottsdale
- Optima McDowell Mountain
- 7230 E Mayo Blvd, Scottsdale, AZ 85255
































