



Book your tour. Save an average of $18,473. We'll handle the rest.
We collect exclusive builder offers, book your tours, and support you from start to housewarming.
- Confirmed tours
- Get matched & compare top deals
- Expert help, no pressure
- No added fees
Estimated value based on Jome data, T&C apply


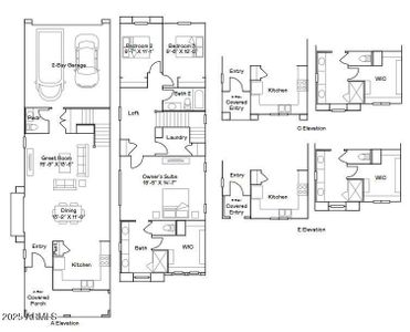
- 3 bd
- 2.5 ba
- 2,116 sqft
Leo plan in Rialta by Risewell Homes
Visit the community to experience this floor plan
Why tour with Jome?
- No pressure toursTour at your own pace with no sales pressure
- Expert guidanceGet insights from our home buying experts
- Exclusive accessSee homes and deals not available elsewhere
Jome is featured in
Plan description
May also be listed on the Landsea Homes website
Information last verified by Jome: Yesterday at 8:21 PM (April 18, 2026)
Plan details
- Name:
- Leo
- Property type:
- Floor plan
- Community:
- Rialta
- Builder:
- Risewell Homes
- Size:
- 2,116 sqft
- Stories:
- 2
- Beds:
- 3
- Baths:
- 2.5
- Garage spaces:
- 2
Plan features & finishes
- Garage/Parking:
- GarageAttached Garage
- Interior Features:
- Walk-In ClosetFoyerPantryStaircasesLoft
- Kitchen:
- Kitchen Island
- Laundry facilities:
- Utility/Laundry Room
- Property amenities:
- PatioPorch
- Rooms:
- Primary Bedroom On MainKitchenPowder RoomOffice/StudyDining RoomFamily RoomOpen Concept FloorplanPrimary Bedroom Downstairs

Get a consultation with our New Homes Expert
- See how your home builds wealth
- Plan your home-buying roadmap
- Discover hidden gems
See the full plan layout
Download the floor plan PDF with room dimensions and home design details.

Instant download, no cost

Community details
Rialta
by Risewell Homes, Mesa, AZ
- 8 homes
- 5 plans
- 1,404 - 2,683 sqft
View Rialta details
Want to know more about what's around here?
The Leo floor plan is part of Rialta, a new home community by Risewell Homes, located in Mesa, AZ. Visit the Rialta community page for full neighborhood insights, including nearby schools, shopping, walk & bike-scores, commuting, air quality & natural hazards.

Homes built from this plan
Available homes in Rialta
- Home at address 8924 E Covina St, Mesa, AZ 85207

Libra
$559,990
- 4 bd
- 3 ba
- 2,329 sqft
8924 E Covina St, Mesa, AZ 85207
- Home at address 8929 E Covina St, Mesa, AZ 85207

Virgo
$599,990
- 4 bd
- 2.5 ba
- 2,683 sqft
8929 E Covina St, Mesa, AZ 85207
- Home at address 8932 E Covina St, Mesa, AZ 85207

Libra
$599,990
- 4 bd
- 3.5 ba
- 2,329 sqft
8932 E Covina St, Mesa, AZ 85207
- Home at address 8920 E Covina St, Mesa, AZ 85207

Virgo
$599,990
- 5 bd
- 3 ba
- 2,683 sqft
8920 E Covina St, Mesa, AZ 85207
- Home at address 8936 E Covina St, Mesa, AZ 85207

Virgo
$609,990
- 4 bd
- 2.5 ba
- 2,683 sqft
8936 E Covina St, Mesa, AZ 85207
More floor plans in Rialta

Considering this plan?
Our expert will guide your tour, in-person or virtual
Need more information?
Text or call (888) 545-5198
Financials
Estimated monthly payment
Let us help you find your dream home
How many bedrooms are you looking for?
Similar homes nearby
Recently added communities in this area
Nearby communities in Mesa
New homes in nearby cities
More New Homes in Mesa, AZ
- Jome
- New homes search
- Arizona
- Phoenix Metropolitan Area
- Maricopa County
- Mesa
- Rialta
- 8931 E Caballero St, Mesa, AZ 85207





























