








Book your tour. Save an average of $18,473. We'll handle the rest.
We collect exclusive builder offers, book your tours, and support you from start to housewarming.
- Confirmed tours
- Get matched & compare top deals
- Expert help, no pressure
- No added fees
Estimated value based on Jome data, T&C apply

































- 3 bd
- 2.5 ba
- 2,457 sqft
Avalon plan in Manor at Legacy Place by K. Hovnanian® Homes
Visit the community to experience this floor plan
Why tour with Jome?
- No pressure toursTour at your own pace with no sales pressure
- Expert guidanceGet insights from our home buying experts
- Exclusive accessSee homes and deals not available elsewhere
Jome is featured in
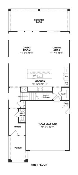
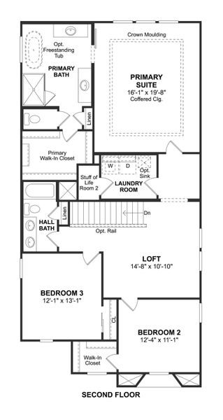
Plan description
May also be listed on the K. Hovnanian® Homes website
Information last verified by Jome: Yesterday at 6:08 PM (April 20, 2026)
Plan details
- Name:
- Avalon
- Property type:
- Floor plan
- Community:
- Manor at Legacy Place
- Builder:
- K. Hovnanian® Homes
- Size:
- 2,457 sqft
- Stories:
- 2
- Beds:
- 3
- Baths:
- 2.5
- Garage spaces:
- 2
Plan features & finishes
- Garage/Parking:
- GarageAttached Garage
- Interior Features:
- Walk-In ClosetFoyerPantryLoft
- Kitchen:
- Kitchen Island
- Laundry facilities:
- Utility/Laundry Room
- Property amenities:
- PatioPorch
- Rooms:
- KitchenDining RoomFamily RoomPrimary Bedroom Upstairs

Get a consultation with our New Homes Expert
- See how your home builds wealth
- Plan your home-buying roadmap
- Discover hidden gems
See the full plan layout
Download the floor plan PDF with room dimensions and home design details.

Instant download, no cost

Community details
Manor at Legacy Place
by K. Hovnanian® Homes, Peoria, AZ
- 8 homes
- 3 plans
- 2,349 - 2,762 sqft
View Manor at Legacy Place details
Want to know more about what's around here?
The Avalon floor plan is part of Manor at Legacy Place, a new home community by K. Hovnanian® Homes, located in Peoria, AZ. Visit the Manor at Legacy Place community page for full neighborhood insights, including nearby schools, shopping, walk & bike-scores, commuting, air quality & natural hazards.

Homes built from this plan
Available homes in Manor at Legacy Place
- Home at address 8172 N 80Th Ln, Peoria, AZ 85345

Hampton
$509,990
- 5 bd
- 3.5 ba
- 2,762 sqft
8172 N 80Th Ln, Peoria, AZ 85345
- Home at address 8096 N 80Th Ln, Peoria, AZ 85345

Prairie Willow
$549,990
- 5 bd
- 3 ba
- 2,349 sqft
8096 N 80Th Ln, Peoria, AZ 85345
- Home at address 8043 W Harmont Dr, Peoria, AZ 85345

Hampton
$559,990
- 5 bd
- 3.5 ba
- 2,762 sqft
8043 W Harmont Dr, Peoria, AZ 85345
- Home at address 8036 W Harmont Dr, Peoria, AZ 85345

Hampton
$577,990
- 5 bd
- 3.5 ba
- 2,762 sqft
8036 W Harmont Dr, Peoria, AZ 85345
- Home at address 8160 N 80Th Ln, Peoria, AZ 85345

Hampton
$578,990
- 5 bd
- 3.5 ba
- 2,762 sqft
8160 N 80Th Ln, Peoria, AZ 85345
- Home at address 8039 W Harmont Dr, Peoria, AZ 85345

Hampton
$581,990
- 5 bd
- 3.5 ba
- 2,762 sqft
8039 W Harmont Dr, Peoria, AZ 85345
More floor plans in Manor at Legacy Place

Considering this plan?
Our expert will guide your tour, in-person or virtual
Need more information?
Text or call (888) 545-5198
Financials
Estimated monthly payment
Let us help you find your dream home
How many bedrooms are you looking for?
Similar homes nearby
Recently added communities in this area
Nearby communities in Peoria
New homes in nearby cities
More New Homes in Peoria, AZ
- Jome
- New homes search
- Arizona
- Phoenix Metropolitan Area
- Maricopa County
- Peoria
- Manor at Legacy Place
- 79Th Ave & Northern Ave, Peoria, AZ 85345






























