



Book your tour. Save an average of $18,473. We'll handle the rest.
We collect exclusive builder offers, book your tours, and support you from start to housewarming.
- Confirmed tours
- Get matched & compare top deals
- Expert help, no pressure
- No added fees
Estimated value based on Jome data, T&C apply


- 3 bd
- 2.5 ba
- 1,598 sqft
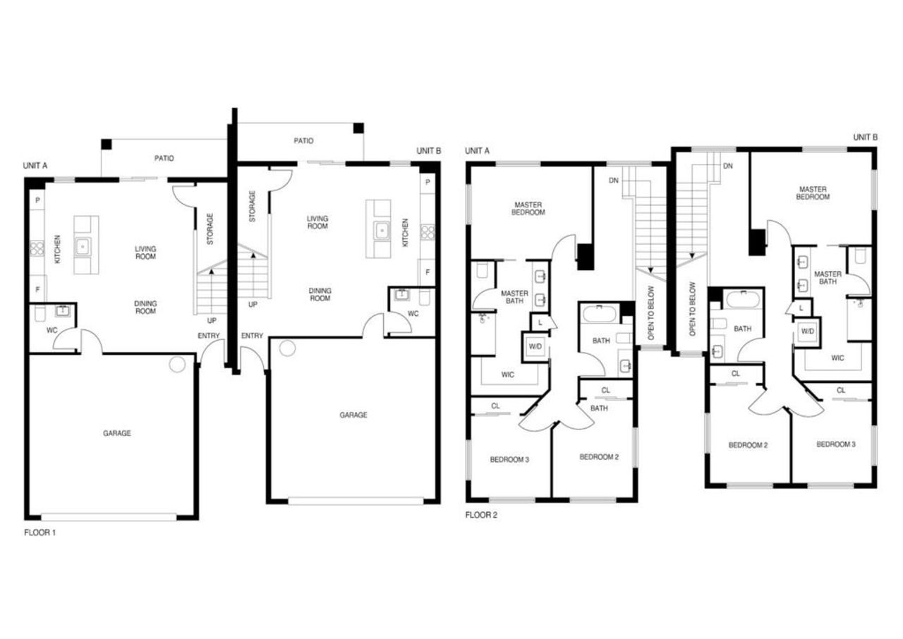
Tide plan in 8th Place Duplexes by Ascend Communities
Visit the community to experience this floor plan
Why tour with Jome?
- No pressure toursTour at your own pace with no sales pressure
- Expert guidanceGet insights from our home buying experts
- Exclusive accessSee homes and deals not available elsewhere
Jome is featured in
Plan description
May also be listed on the Ascend Communities website
Information last verified by Jome: Today at 9:39 AM (April 16, 2026)
Plan details
- Name:
- Tide
- Property type:
- Floor plan
- Community:
- 8th Place Duplexes
- Builder:
- Ascend Communities
- Size:
- 1,598 sqft
- Stories:
- 2
- Beds:
- 3
- Baths:
- 2.5
- Garage spaces:
- 2
Plan features & finishes
- Garage/Parking:
- GarageAttached Garage
- Interior Features:
- Walk-In ClosetFoyerStorageStaircases
- Laundry facilities:
- Utility/Laundry Room
- Property amenities:
- Patio
- Rooms:
- KitchenPowder RoomDining RoomLiving RoomOpen Concept FloorplanPrimary Bedroom Upstairs

Get a consultation with our New Homes Expert
- See how your home builds wealth
- Plan your home-buying roadmap
- Discover hidden gems
See the full plan layout
Download the floor plan PDF with room dimensions and home design details.

Instant download, no cost

Community details
8th Place Duplexes
by Ascend Communities, Phoenix, AZ
- 3 plans
- 1,597 - 1,604 sqft
View 8th Place Duplexes details
Want to know more about what's around here?
The Tide floor plan is part of 8th Place Duplexes, a new home community by Ascend Communities, located in Phoenix, AZ. Visit the 8th Place Duplexes community page for full neighborhood insights, including nearby schools, shopping, walk & bike-scores, commuting, air quality & natural hazards.

More floor plans in 8th Place Duplexes

Considering this plan?
Our expert will guide your tour, in-person or virtual
Need more information?
Text or call (888) 545-5198
Financials
Let us help you find your dream home
How many bedrooms are you looking for?
Similar homes nearby
Recently added communities in this area
Nearby communities in Phoenix
New homes in nearby cities
More New Homes in Phoenix, AZ
- Jome
- New homes search
- Arizona
- Phoenix Metropolitan Area
- Maricopa County
- Phoenix
- 8th Place Duplexes
- 6401 S 8Th Pl, Phoenix, AZ 85042



























